Executive house consent in a quiet village, ready for construction.
Plot extends to approximately 1 acre
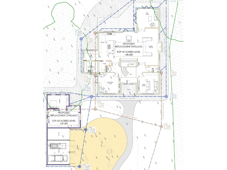
Planning permission granted (ref 22/01695/FUL) for ~5,000sqft house
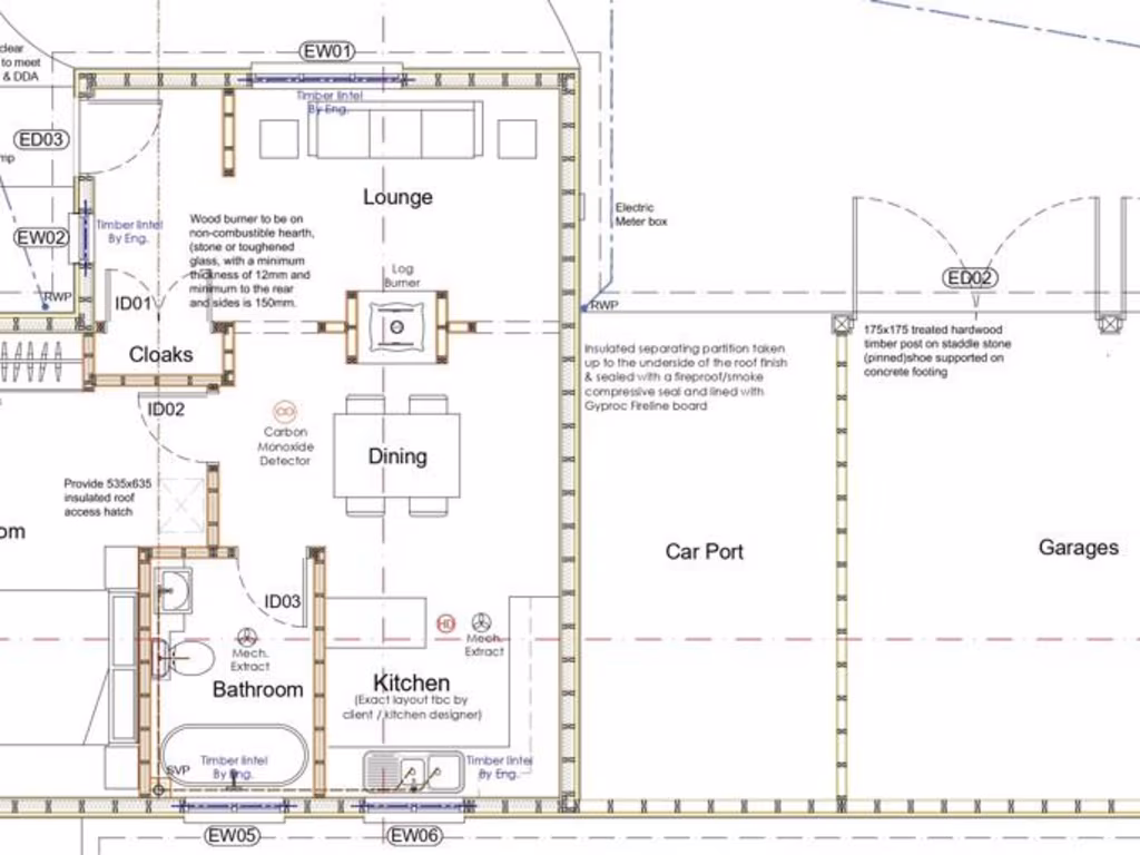
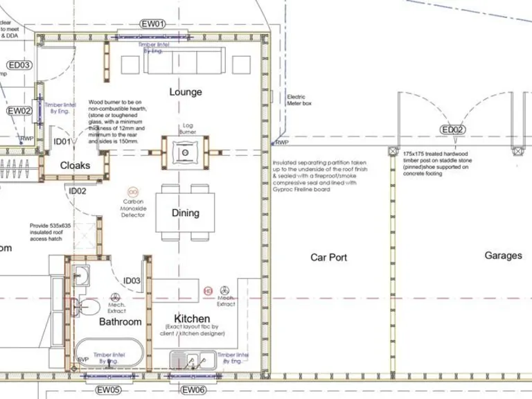
Consent includes c.700sqft annexe and ~600sqft garage
Mains services available in road except gas
Freehold title; no flood risk and low local crime
Village location; Colchester a short drive away
Undeveloped plot — requires full build and construction costs
Technical reports available from current owner to support development
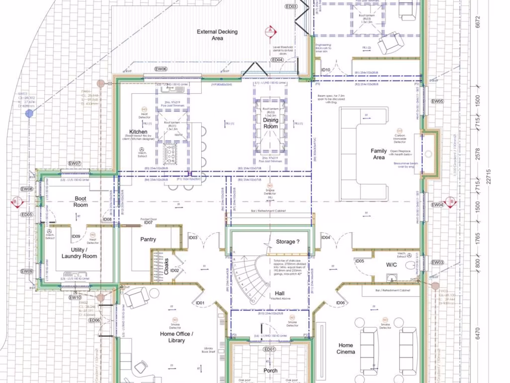
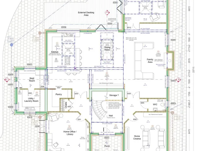
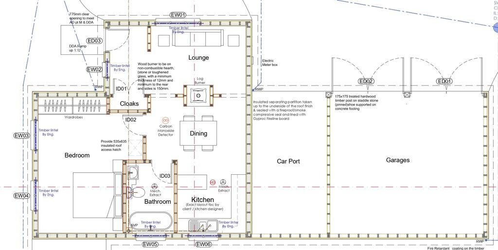
Set on approximately one acre in the village of Thorrington, this substantial building plot comes with full planning permission (Tendring District Council ref: 22/01695/FUL) for an executive-style family house of about 5,000 sqft, a c.700 sqft annexe and a garage approaching 600 sqft. The consented layout includes flexible living spaces — open-plan kitchen/dining/family areas, a cinema room, home office, and four double en-suite bedrooms with a master dressing room — designed for family living and entertaining.
All mains services are understood to be available in Station Road except gas; the plot is freehold and has no flood risk. The village location offers a quiet, low-crime setting with excellent mobile signal and fast broadband, while Colchester and nearby towns are a short drive away for wider amenities, schools and commuter links. Existing technical reports and building-regulation notes are available from the current owner to assist with the build process.
This plot suits buyers who want a turnkey planning solution rather than a speculative site: the consented scheme reduces planning uncertainty but the property is currently undeveloped and will require a full build programme and associated costs. Buyers should budget for construction, landscaping and any local connection works. The package offers a rare opportunity to deliver a large, contemporary country home in a sought-after village setting.
Land for sale in Land Adjacent to Cross Farm, Station Road, Thorrington, Colchester, CO7 — £600,000 • 1 bed • 1 bath • 1928 ft²
Plot for sale in Finch Way, Parsons Heath, Colchester, Essex, CO4 — £250,000 • 1 bed • 1 bath • 2500 ft²
Land for sale in Land Adjacent To Gu Brath, Coggeshall Road, Earls Colne, Colchester, Essex, CO6 — £250,000 • 1 bed • 1 bath • 7841 ft²
Plot for sale in Hunters Chase, Ardleigh, CO7 — £300,000 • 1 bed • 1 bath
Plot for sale in Colchester Road, Braiswick, CO4 — £700,000 • 4 bed • 4 bath • 4200 ft²
Land for sale in Rectory Meadow, Bradwell, Braintree, Essex, CM77 — £1,900,000 • 1 bed • 1 bath


























