Large garden apartment with period charm and excellent transport links for central London life.
Generous 1,168 sq ft two-bedroom lower-ground apartment
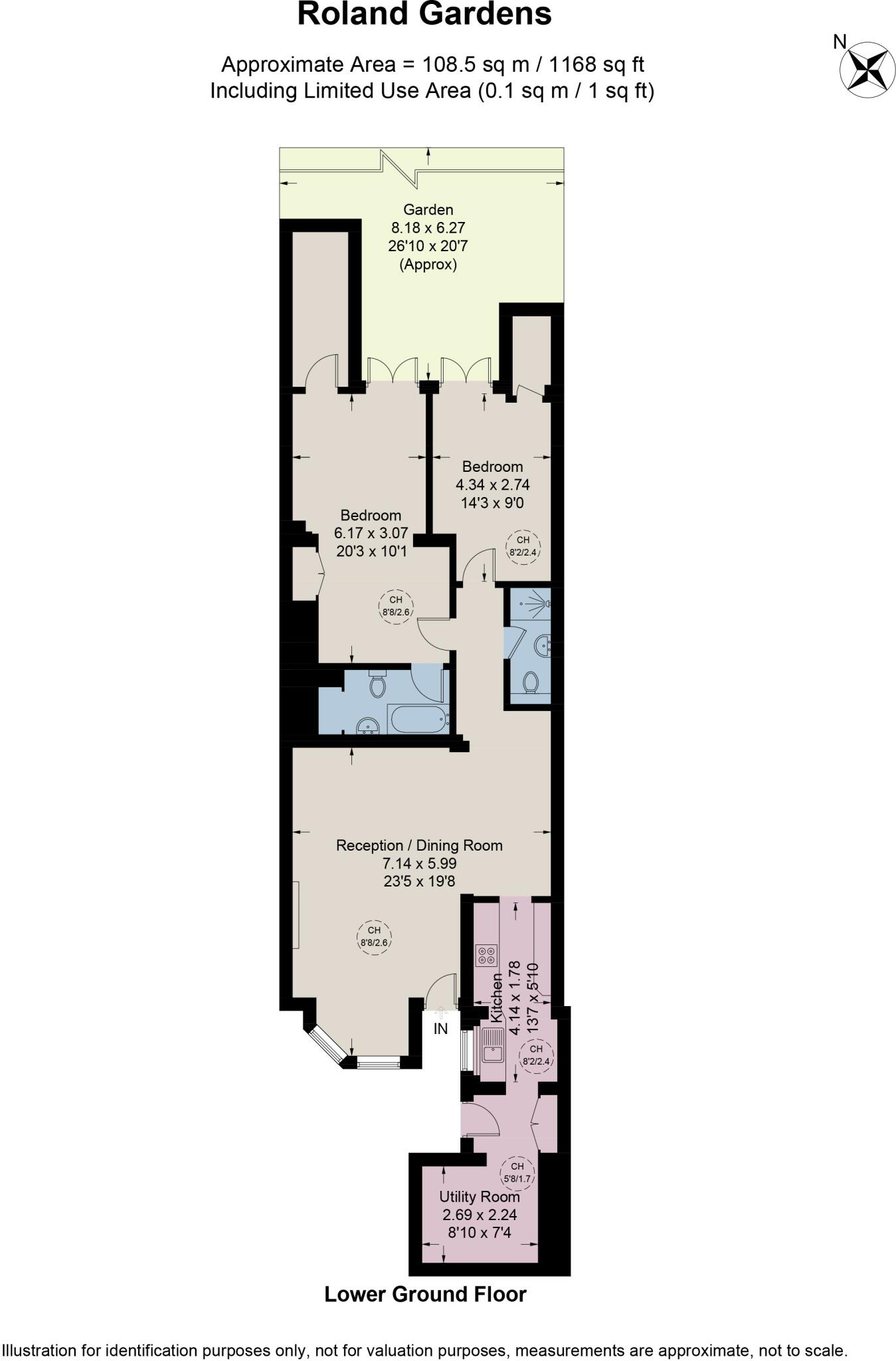
Set on a desirable South Kensington street, this lower-ground two-bedroom apartment offers 1,168 sq ft of well-proportioned living with a private rear garden. Housed in a red-brick Victorian terrace, the flat combines high ceilings and sash-window character with contemporary open-plan living spaces and modern fittings.
Layout benefits include a large reception/dining room ideal for entertaining, two double bedrooms, two bathrooms and a separate utility/plant area. Ownership is a share of freehold with an exceptionally long lease (994 years), supporting long-term value and straightforward ownership.
Practical considerations are clear: the building is a period construction with solid brick walls (no assumed cavity insulation) and average service charges of £2,146. Council tax is described as quite expensive. As a lower-ground unit, the footprint is long and narrow; while generous for the area, buyers should check light levels and ventilation in person.
This apartment suits buyers seeking central-London living close to museums, parks and excellent transport links, or investors targeting strong rental demand. The property is presented in good order and offers potential to personalise while benefitting from a rare private garden in this location.
2 bedroom flat for sale in Roland Gardens,
South Kensington, SW7 — £1,100,000 • 2 bed • 1 bath • 972 ft²
2 bedroom flat for sale in Roland Gardens,
South Kensington, SW7 — £1,450,000 • 2 bed • 1 bath • 1078 ft²
2 bedroom flat for sale in Roland Gardens, London, SW7 — £1,800,000 • 2 bed • 2 bath • 1200 ft²
3 bedroom flat for sale in Roland Gardens, South Kensington, London, SW7 — £1,200,000 • 3 bed • 2 bath • 1435 ft²
3 bedroom flat for sale in Roland Gardens,
South Kensington, SW7 — £1,200,000 • 3 bed • 2 bath • 1360 ft²
2 bedroom flat for sale in Lexham Gardens, Kensington And Chelsea, London, W8 — £2,085,000 • 2 bed • 2 bath • 1604 ft²


























































































