Town-centre five-bedroom home with garden and parking for two.
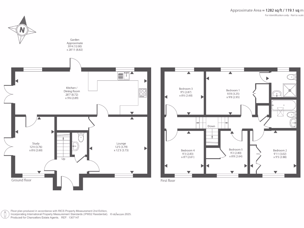
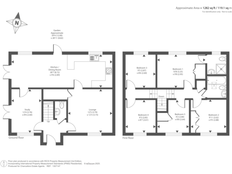
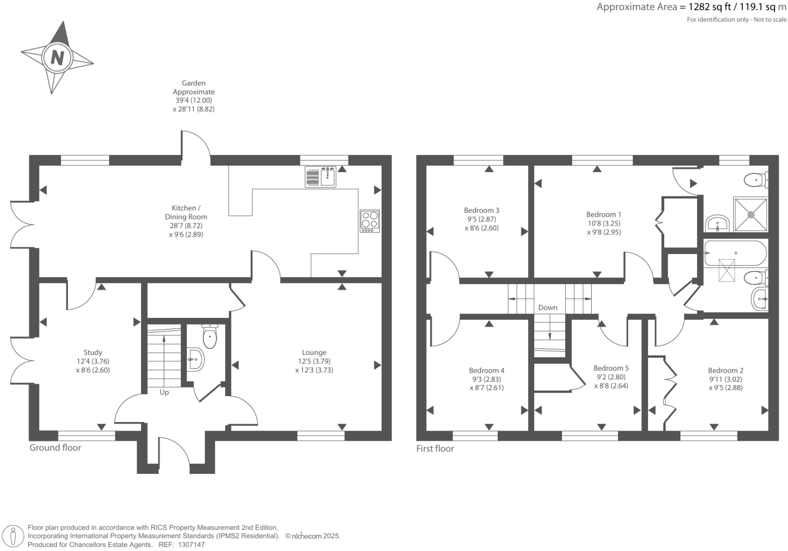
Five bedrooms with master ensuite and two reception rooms
This modern five-bedroom end-terrace in central Witney offers practical family living with handy town-centre access. Built in the early 2000s, the house has double glazing, mains gas central heating and a well-presented interior including a master ensuite, two reception rooms and an open-plan kitchen/diner. A wrap-around garden, bespoke garden shed and off-street parking for two cars add useful outdoor and storage space.
The location works well for families: several Good-rated primary and secondary schools are nearby and major bus routes are within easy walking distance. Broadband and mobile signal are both strong, supporting home working and family connectivity. The property is freehold and presents straightforward layout and scope to personalise rooms to your needs.
Buyers should note material negatives honestly: the listing records the local area as relatively deprived and crime levels are very high — factors to investigate in person and with local authorities. Council tax is above average. Overall size is described as small for a five-bedroom home, so room proportions and storage should be checked at viewing.
This house will suit a family seeking town-centre convenience, a modern build and outside space, while buyers prepared to manage the area’s social challenges and the property’s compact layout will find genuine practical value here.
5 bedroom town house for sale in Woodford Mill, Mill Street, Witney, Oxfordshire, OX28 — £470,000 • 5 bed • 2 bath • 1772 ft²
3 bedroom end of terrace house for sale in Hailey Road, Witney, OX28 — £365,000 • 3 bed • 2 bath • 1181 ft²
4 bedroom end of terrace house for sale in Grangers Place, Witney, OX28 — £560,000 • 4 bed • 3 bath • 2839 ft²
3 bedroom terraced house for sale in Witney, Oxfordshire, OX28 — £350,000 • 3 bed • 1 bath • 819 ft²
4 bedroom terraced house for sale in Waine Rush View, Witney, OX28 — £375,000 • 4 bed • 2 bath • 1228 ft²
5 bedroom end of terrace house for sale in Collier Crescent, Witney, Oxfordshire, OX28 — £550,000 • 5 bed • 3 bath • 1579 ft²






















































































































