**Standout Features:**
- One bedroom, first-floor retirement apartment in Woolmans Lodge
- Great location near town center with excellent transport links
- No forward chain
- Fully fitted kitchen with integrated appliances
- Access to communal gardens, Owners Lounge, and off-street parking
- On-site Lodge Manager and 24-hour Careline system for safety
- Beautifully landscaped gardens and a guest suite for visitors
- Long lease: 997 years remaining
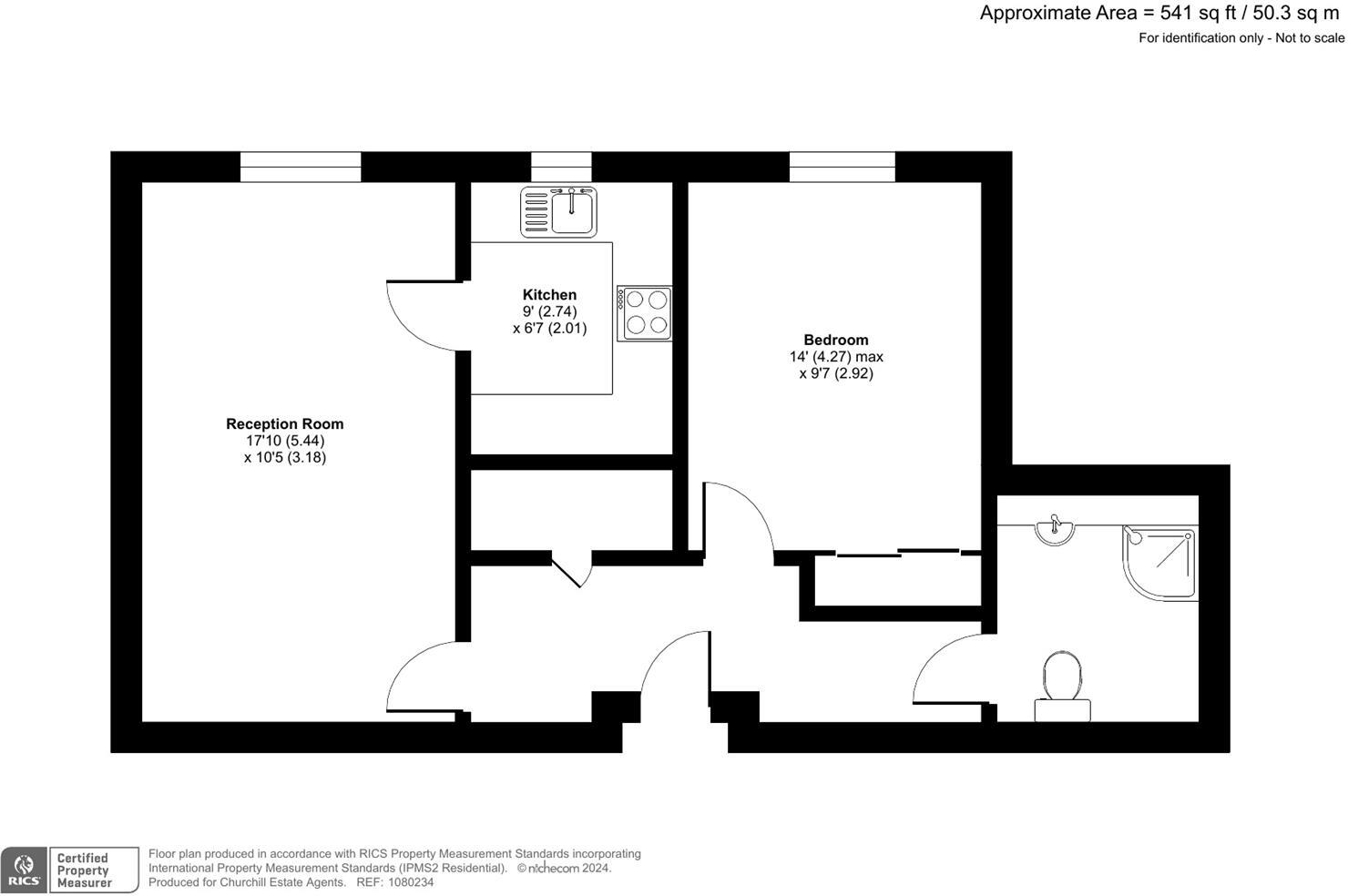
Nestled in the sought-after suburb of Shirley, this inviting one-bedroom retirement apartment at Woolmans Lodge offers the perfect blend of comfort and convenience. With an average size of 541 square feet, the well-maintained living space features a bright living room with ample room for dining and leisure, a contemporary kitchen equipped with built-in appliances, and a generously sized bedroom with built-in mirrored wardrobes. The apartment overlooks serene communal gardens, enhancing its tranquil appeal.
Residents benefit from a range of amenities, including a supportive Lodge Manager available five days a week and a vigilant 24-hour Careline system, ensuring peace of mind. Enjoy the vibrant local community with a variety of shops, eateries, parks, and easy access to public transport to Birmingham and Stratford-upon-Avon. The absence of a forward chain and the attractive price of £160,000 make this property an excellent opportunity for independent living at an affordable cost. Seize the chance to make this lovely apartment your new home and embrace a fulfilling retirement lifestyle today!
1 bedroom retirement property for sale in Woolmans Lodge, Shirley, Solihull, B90 — £225,000 • 1 bed • 1 bath • 634 ft²
1 bedroom retirement property for sale in Woolmans Lodge, Shirley, Solihull, B90 — £199,995 • 1 bed • 1 bath • 346 ft²
1 bedroom retirement property for sale in Woolmans Lodge, Shirley, Solihull, B90 — £142,500 • 1 bed • 1 bath • 411 ft²
1 bedroom retirement property for sale in Woolmans Lodge, Shirley, Solihull, B90 — £205,000 • 1 bed • 1 bath • 730 ft²
2 bedroom retirement property for sale in Woolmans Lodge, Shirley, Solihull, B90 — £230,000 • 2 bed • 1 bath • 732 ft²
1 bedroom retirement property for sale in Woolmans Lodge, Solihull Road, Shirley, B90 — £115,000 • 1 bed • 1 bath • 442 ft²


































































