**Standout Features:**
- One-bedroom ground floor retirement apartment with direct patio access
- Fully fitted contemporary kitchen with integrated appliances
- Located in the desirable Shirley suburb, close to shops and amenities
- Onsite Lodge Manager available 5 days a week
- 24-hour Careline system for added safety and security
- Landscaped gardens and private parking for owners
- Guest Suite available for visitors, plus access to suites at all Churchill Living locations
**Summary:**
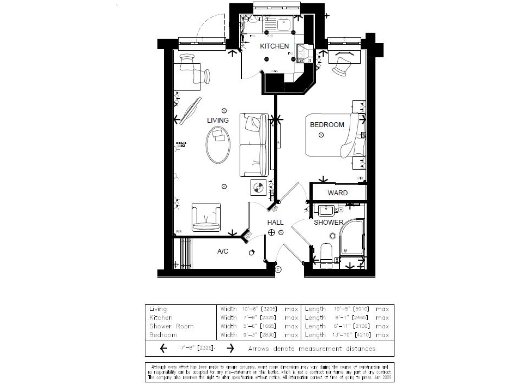
Discover the comfort and community of Woolmans Lodge with this charming one-bedroom ground floor retirement apartment, perfect for those seeking a secure and independent lifestyle. This well-maintained residence features a light-filled living room with an electric fireplace, a modern kitchen equipped with built-in appliances, and a spacious bedroom with a mirrored wardrobe. Step outside to enjoy a private patio overlooking the beautifully landscaped gardens – an ideal setting for relaxation or gathering with friends.
Situated in the vibrant suburb of Shirley, just a stroll from local shops, eateries, and convenient transport links, this property offers both accessibility and tranquility. Enjoy peace of mind with the Lodge Manager on hand and a 24-hour Careline for emergencies. Although the apartment is compact, its thoughtful design creates a warm and inviting atmosphere, perfect for easy maintenance.
As a retirement property, at least one owner must be over 60 years old, providing a close-knit community feel. With future flexibility for personal touches and renovations, this apartment is a wonderful opportunity for those ready to embrace retirement living. Don’t miss out on this exclusive offering—schedule a viewing today and envision your new life at Woolmans Lodge!
1 bedroom retirement property for sale in Woolmans Lodge, Shirley, Solihull, B90 — £225,000 • 1 bed • 1 bath • 634 ft²
1 bedroom retirement property for sale in Woolmans Lodge, Shirley, Solihull, B90 — £160,000 • 1 bed • 1 bath • 541 ft²
1 bedroom retirement property for sale in Woolmans Lodge, Shirley, Solihull, B90 — £142,500 • 1 bed • 1 bath • 411 ft²
1 bedroom retirement property for sale in Woolmans Lodge, Shirley, Solihull, B90 — £205,000 • 1 bed • 1 bath • 730 ft²
2 bedroom retirement property for sale in Woolmans Lodge, Shirley, Solihull, B90 — £230,000 • 2 bed • 1 bath • 732 ft²
1 bedroom retirement property for sale in Woolmans Lodge, Solihull Road, Shirley, B90 — £115,000 • 1 bed • 1 bath • 442 ft²






























































