Outline consent for a new three-bedroom detached property—prime for development.
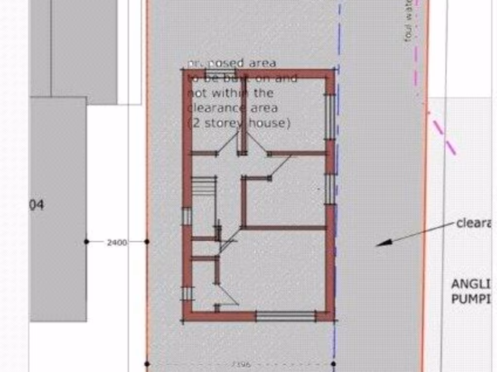
Outline planning for three-bedroom detached dwelling (ref H16-0411-23)
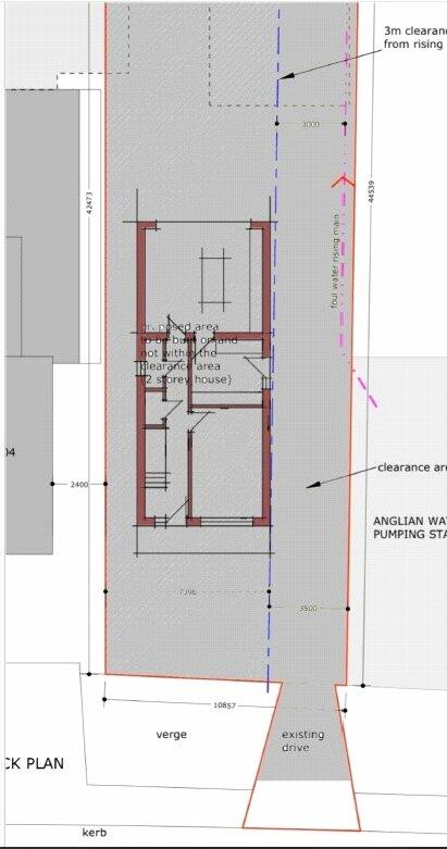
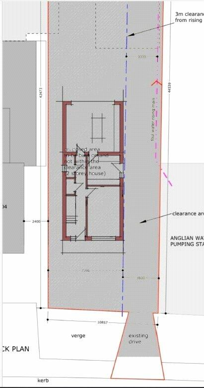
Separate 400m² plot accessed from Pennygate
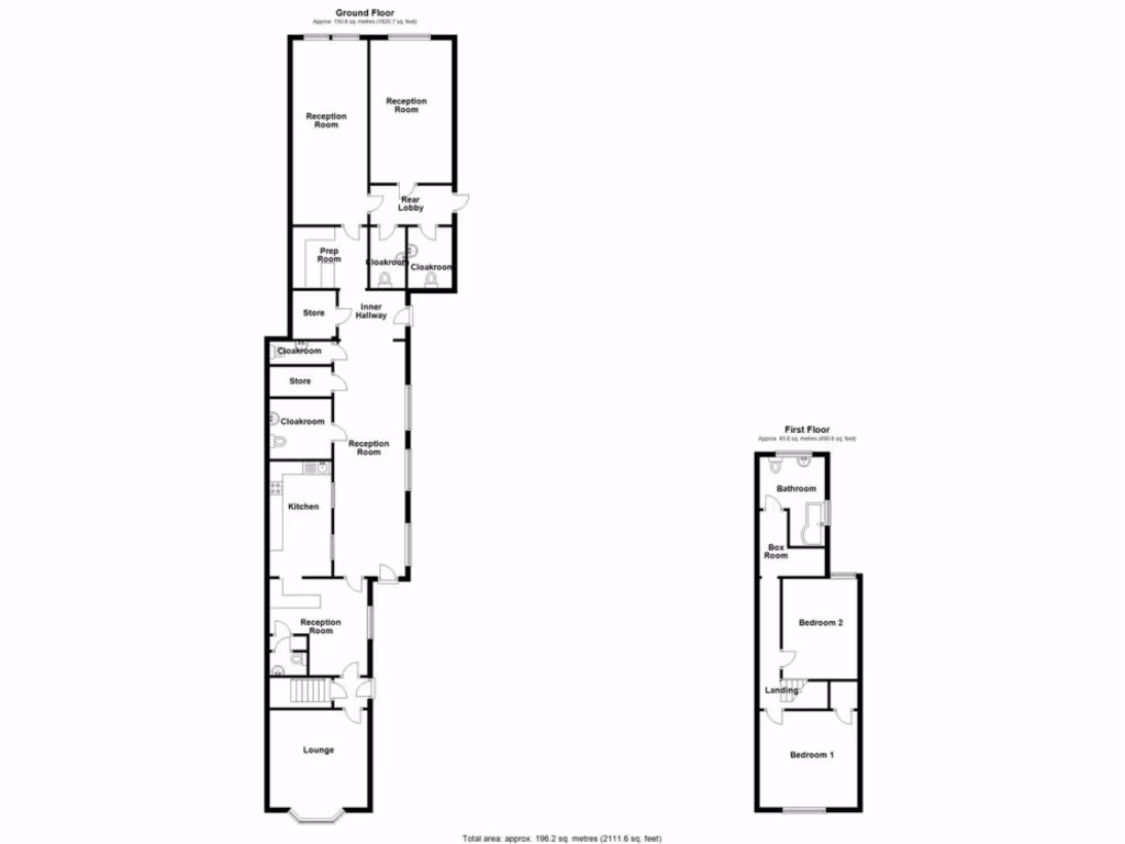
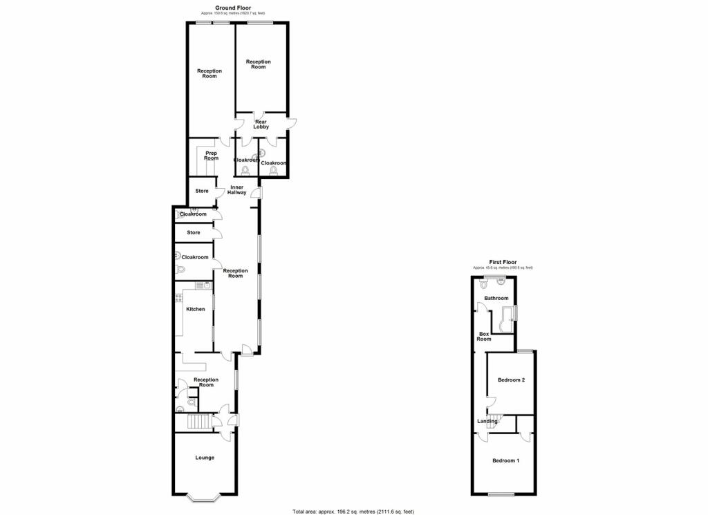
Extended Victorian semi with flexible reception space
Garage plus low-maintenance courtyard garden with decking
Solid brick walls likely uninsulated; thermal upgrades advised
Double glazing installed pre-2002; heating via mains gas boiler
Medium flood risk for the area — consider resilience measures
Sold freehold and chain free; refurbishment required
This offering combines an extended Victorian semi-detached house and a separate building plot with outline planning for a three-bedroom detached dwelling. The main house provides flexible, spacious accommodation across two floors and has potential for refurbishment or conversion to increase its value. The separate plot (approx. 400 m²) is accessed from Pennygate and benefits from outline planning permission (South Holland ref H16-0411-23).
The house retains period character with a bay-fronted lounge and multiple reception rooms, while practical features include mains gas central heating, a garage and a low-maintenance courtyard garden with decking. The property is sold freehold and chain free, making it practical for a purchaser ready to start works. Broadband speeds are fast and the location places the town centre, train station and several well-regarded schools within easy reach.
Important considerations: the property dates from c.1900–1929 with solid brick walls likely uninsulated and double glazing installed before 2002, so thermal upgrades are advisable. Flooding risk is rated medium for the area. The house will need refurbishment work to modernise services and improve energy performance; the plot requires detailed compliance with the granted outline consent before development.
This package will suit an investor or developer seeking a two-part project: immediate refurbishment and rental or resale of the house, plus development of the adjacent plot under an existing outline permission. For a buyer prioritising move-in-ready accommodation, expect to factor renovation costs and resilience measures against medium flood risk into your budget.
2 bedroom semi-detached house for sale in Pennygate, Spalding, PE11 — £109,950 • 2 bed • 1 bath • 947 ft²
4 bedroom detached house for sale in Chepstow Close, Spalding, PE11 — £300,000 • 4 bed • 2 bath • 1109 ft²
3 bedroom detached house for sale in Station Road, Gedney Hill, PE12 — £450,000 • 3 bed • 1 bath • 980 ft²
6 bedroom detached house for sale in Winsover Road, Spalding, PE11 — £280,000 • 6 bed • 2 bath • 3200 ft²
Plot for sale in Penny Hill Road, Holbeach, Spalding, PE12 — £400,000 • 1 bed • 1 bath
Plot for sale in Low Road, Spalding, PE12 — £550,000 • 1 bed • 1 bath • 1723 ft²






























































































