**Standout Features:**
- Modern top-floor apartment with integrated appliances
- Private balcony with expansive views
- 245 years remaining on the lease and a 5-year new build warranty
- Secure entry and lift access
- Ideal for professionals, couples, or investors
- Excellent transport links and local amenities
**Potential Downsides:**
- Average room sizes may limit extensive decoration options
- Service charge of £1,680 per year
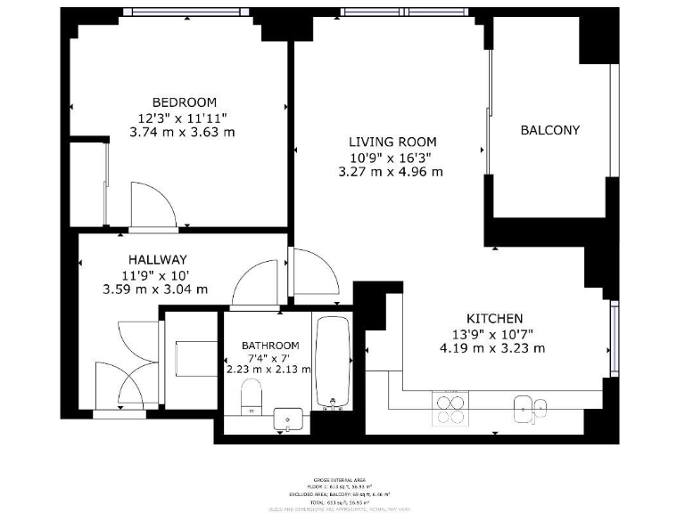
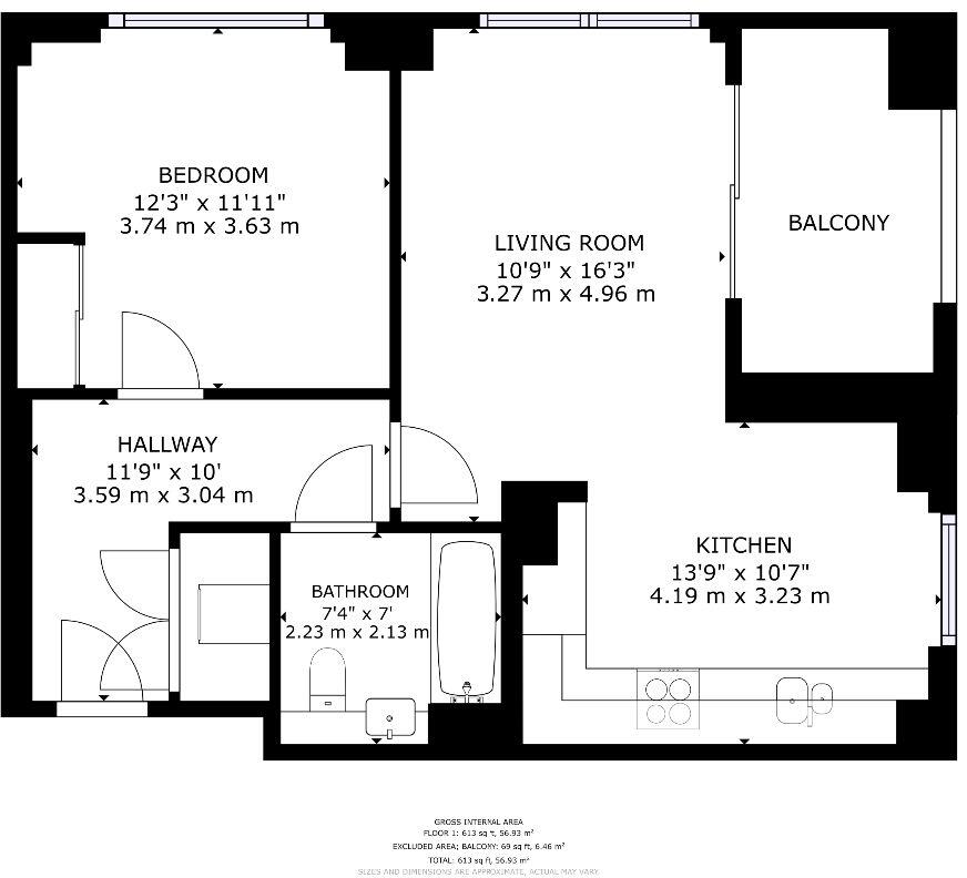
Welcome to Peregrine Point, an inviting urban retreat in the heart of Enfield, EN3. This stylish one-bedroom apartment boasts a sleek, fully fitted kitchen with integrated modern appliances and a contemporary bathroom outfitted with high-quality fixtures. Enjoy the luxury of abundant natural light flooding through generous windows, and take in stunning views from your private balcony. With lift access and a secure entry system, this apartment combines convenience with comfort, making it perfect for young professionals or couples seeking a vibrant lifestyle.
Situated within a lively neighborhood undergoing regeneration, residents can relish easy access to excellent transport links, with Ponders End Train Station just a short walk away, connecting you to Central London in under 25 minutes. The area is also family-friendly, boasting several well-rated schools within walking distance. Enjoy local shops and cafes for everyday needs, complemented by larger retail options nearby. With fast broadband and low crime rates contributing to a safe community feel, this property is a rare find that seamlessly blends modern living with urban accessibility. Don’t miss this opportunity for a stylish and secure urban lifestyle in a growing area—schedule a viewing today!
1 bedroom flat for sale in Peregrine Point, Enfield, EN3 — £280,000 • 1 bed • 1 bath • 531 ft²
2 bedroom flat for sale in Alma Road, london, EN3 — £375,000 • 2 bed • 2 bath • 784 ft²
3 bedroom flat for sale in Alma Road, Enfield, EN3 — £395,000 • 3 bed • 2 bath • 963 ft²
2 bedroom flat for sale in Penegrine Point, Alma Road, Enfield, EN3 — £375,000 • 2 bed • 1 bath • 793 ft²
2 bedroom apartment for sale in Peregrine Point, Alma Road, EN3 — £350,000 • 2 bed • 1 bath • 790 ft²
2 bedroom flat for sale in Alma Road, Enfield, EN3 — £375,000 • 2 bed • 2 bath • 782 ft²






























































