Rare self-build plot with approved plans near schools and transport links.
Large plot with approved planning for a three-bedroom detached house; planning subject to solicitor checks
Self-build opportunity ideal for bespoke design or investor redevelopment
No flood risk; fast broadband and average mobile signal on site
Affluent, comfortable suburban neighbourhood with strong local demand
Excellent transport links and nearby amenities, including station and buses
Multiple “Good” rated primary and secondary schools within easy reach
Tenure currently unknown; buyer should verify legal/title details
Requires full build works, utility connections and development costs
A rare large parcel of land in a sought-after West Kingsdown location, offered with approved planning (subject to solicitor verification) for a three-bedroom detached home. The plot suits a self-builder or investor targeting strong local demand and potential capital growth. Fast broadband, good transport links and multiple nearby “Good” rated primary and secondary schools add practical value.
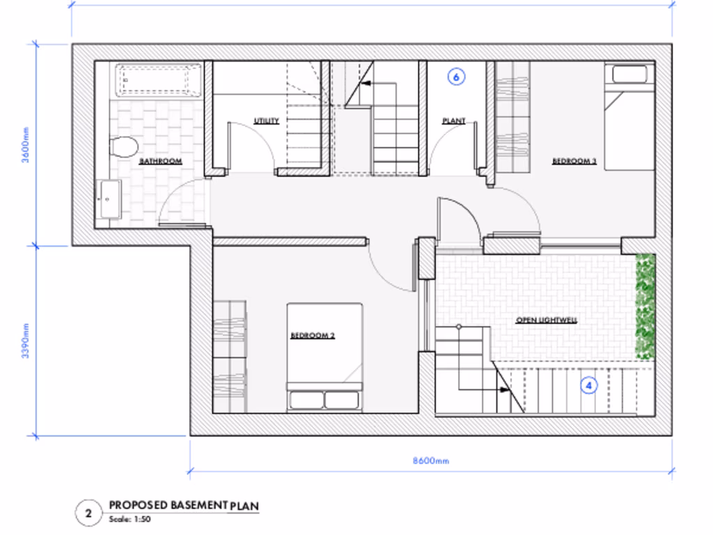
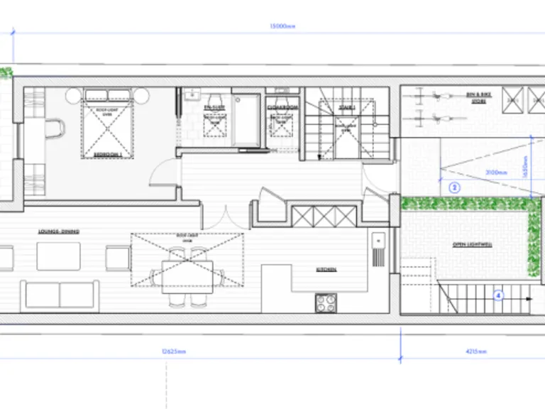
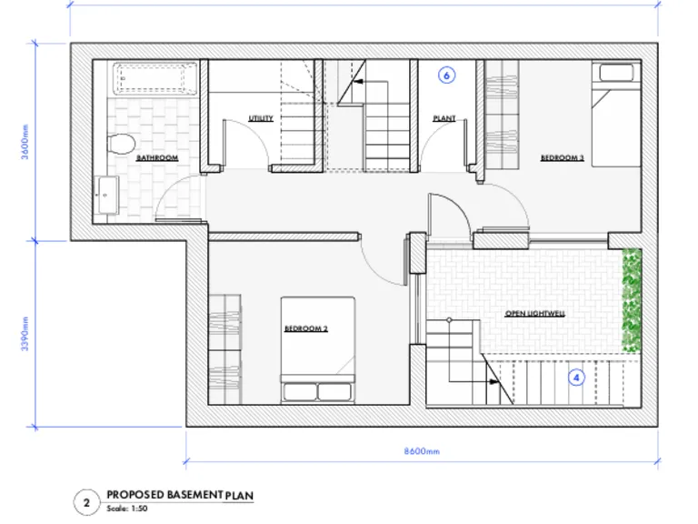
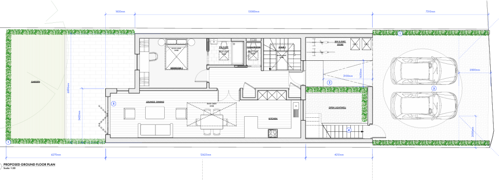
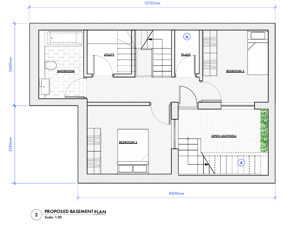
Planning documents are available for review and the site carries no flood risk. The approved scheme shows a modern, flat-roof design with large windows and an open-plan layout; the plot provides scope to deliver a bespoke family home or an alternative contemporary design, subject to planning checks. Tenure is currently unspecified and should be clarified before commitment.
Buyers should allow for the full costs and programme of a self-build: construction, site works, utility connections and any additional planning or solicitor queries. This is a long-lead development opportunity best suited to someone prepared to manage or commission a build to realise the site’s potential.
Land for sale in London Road, West Kingsdown, Sevenoaks, TN15 — £269,000 • 1 bed • 1 bath
Land for sale in London Road, West Kingsdown, Sevenoaks, Kent, TN15 — £1,200,000 • 1 bed • 1 bath • 2326 ft²
Plot for sale in Farningham Hill Road, DA4 0JR, DA4 — £350,000 • 4 bed • 1 bath • 1658 ft²
Land for sale in Brasted Hill Road, Brasted, Westerham, TN16 1NJ, TN16 — £600,000 • 1 bed • 1 bath • 3200 ft²
3 bedroom detached house for sale in London Road, West Kingsdown, Kent, TN15 — £575,000 • 3 bed • 1 bath • 882 ft²
Land for sale in Plot 1 - Green Street Green Road, Dartford, Kent, DA2 — £299,000 • 1 bed • 1 bath • 3789 ft²














