Substantial plot with granted bungalow consent — renovation project and income potential..
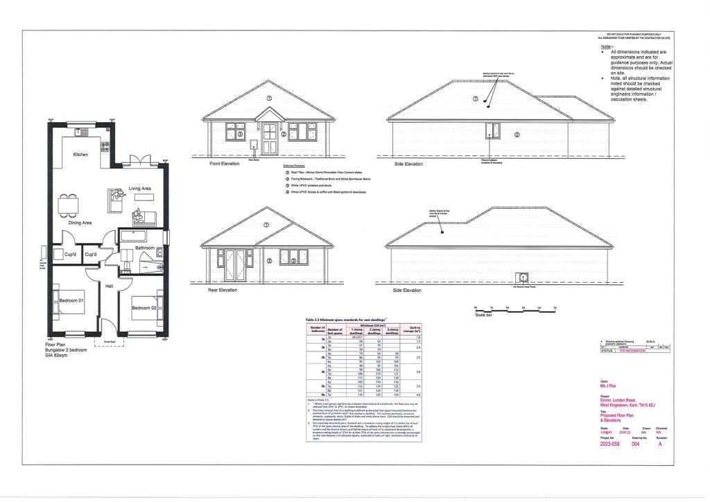
Planning permission for separate 2-bed bungalow (≈882 sq ft) in rear garden
A rare development opportunity in West Kingsdown: this 1930s detached three-bedroom house sits on a large plot with planning permission granted for a separate two-bedroom bungalow (approx. 882 sq ft) with private rear access. The plot can accommodate both dwellings with off-street parking for each, making it suitable for multi-generational living, rental income or resale after completion.
The main house requires renovation throughout — cosmetic and some structural/upgrading work will be needed to bring it to modern standards. The property has solid brick walls with assumed no insulation, older double glazing (pre-2002) and electric boiler heating; buyers should allow budget for insulation, heating and possible services upgrades. Council tax is above average.
For investors or buyers seeking added value, the granted planning permission significantly reduces approval risk for an annex or separate dwelling (subject to final consents and conditions). The location benefits from fast broadband, excellent mobile signal and easy access to M20 and M25 links, making it attractive for commuters. Local schools are well-rated and village amenities are nearby.
This is a hands-on opportunity: the upside comes from creating two usable homes on one substantial plot, but the sale price reflects the work required. All measurements and services should be independently verified by interested parties before purchase.
3 bedroom detached house for sale in London Road, West Kingsdown, Kent, TN15 — £380,000 • 3 bed • 1 bath • 882 ft²
1 bedroom semi-detached bungalow for sale in Mitchem Close, West Kingsdown, Sevenoaks, Kent, TN15 — £395,000 • 1 bed • 1 bath • 527 ft²
2 bedroom semi-detached bungalow for sale in Neal Road, West Kingsdown, Sevenoaks, Kent, TN15 — £375,000 • 2 bed • 1 bath • 652 ft²
3 bedroom semi-detached bungalow for sale in Hever Avenue, West Kingsdown, Sevenoaks, Kent, TN15 — £500,000 • 3 bed • 2 bath • 582 ft²
3 bedroom chalet for sale in Rushetts Road, West Kingsdown, Sevenoaks, Kent, TN15 — £495,000 • 3 bed • 1 bath • 1066 ft²
4 bedroom bungalow for sale in Millfield Road, West Kingsdown, Sevenoaks, Kent, TN15 — £675,000 • 4 bed • 2 bath • 1402 ft²


































































































