0.45-acre plot with full permission for an energy-efficient four-bedroom family home.
Full planning permission for a 1,658 sqft four-bedroom house (ref 24/02792/FUL)
Very large private plot — circa 0.45 acres with mature garden and driveway
Design by Smart Architecture; thermally efficient modern construction planned
Quiet, leafy hamlet location close to Farningham village and local amenities
Tenure currently unspecified — buyers must verify legal status
Very slow broadband speeds — may limit home working without upgrades
Approved plans show one bathroom upstairs; may need changes for family needs
No flooding risk; affluent area with strong local schools and transport links
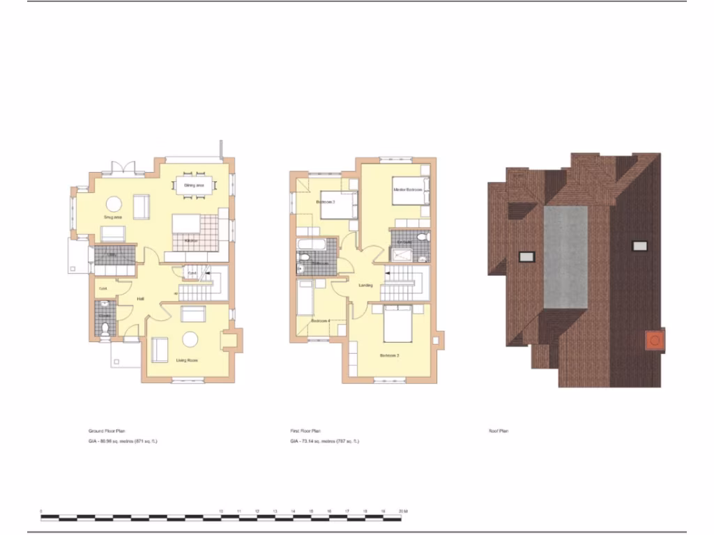
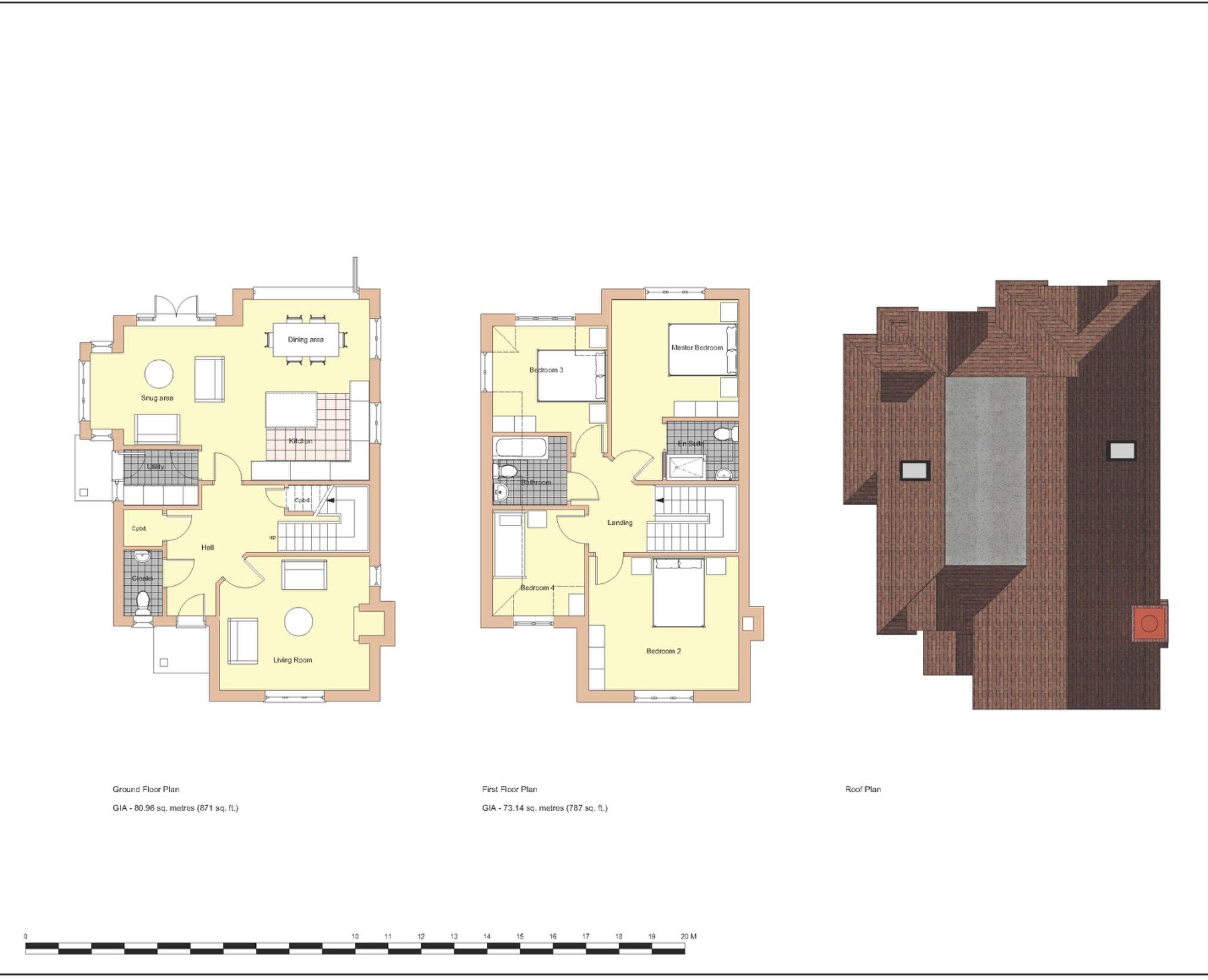
Set within a mature, private garden just off Farningham Hill Road, this 0.45-acre plot comes with full planning permission for a thermally efficient 1,658 sqft four-bedroom home (ref 24/02792/FUL). The design by Smart Architecture combines a traditional exterior to suit the village setting with modern energy performance, creating scope for a comfortable, low-running-cost family house.
The proposed layout provides an open-plan ground floor ideal for family life and entertaining, with four bedrooms upstairs including a master with en-suite. The site offers generous outdoor space, a long driveway and a secluded, rural feel while remaining close to Farningham village amenities and good state and independent schools, plus rail links to London from nearby Eynsford and Swanley.
Practical considerations are clear: tenure is currently unspecified and broadband speeds in the area are very slow, which may affect remote working plans. The approved design shows only one bathroom upstairs, so buyers who need additional facilities should factor that into their build specification or budget for alterations. Buyers should verify boundaries and site measurements; plot figures are guidance only.
This plot will suit buyers looking to commission a low-energy family home or an investor seeking a permitted development in a highly desirable, affluent rural setting. The planning package reduces project risk, but buyers should obtain independent surveys and quotes for the build and utilities before committing.
Land for sale in Canada Farm Road, South Darenth, Dartford, Kent, DA4 — £475,000 • 1 bed • 1 bath • 2000 ft²
Land for sale in Plot 1 - Green Street Green Road, Dartford, Kent, DA2 — £299,000 • 1 bed • 1 bath • 3789 ft²
Land for sale in Brasted Hill Road, Brasted, Westerham, TN16 1NJ, TN16 — £600,000 • 1 bed • 1 bath • 3200 ft²
5 bedroom detached house for sale in Ashen Grove Road, Otford Hills, TN15 — £1,350,000 • 5 bed • 3 bath • 2066 ft²
Plot for sale in Self Build Plot in Ivy Hatch, TN15 — £1,250,000 • 1 bed • 1 bath • 4210 ft²
5 bedroom detached house for sale in Shoreham Road, Otford, Sevenoaks, Kent, TN14 — £850,000 • 5 bed • 3 bath • 3993 ft²






















