Move-in ready three-bed with sunny garden and generous driveway near top schools.
Three bedrooms with modern fitted kitchen and family bathroom
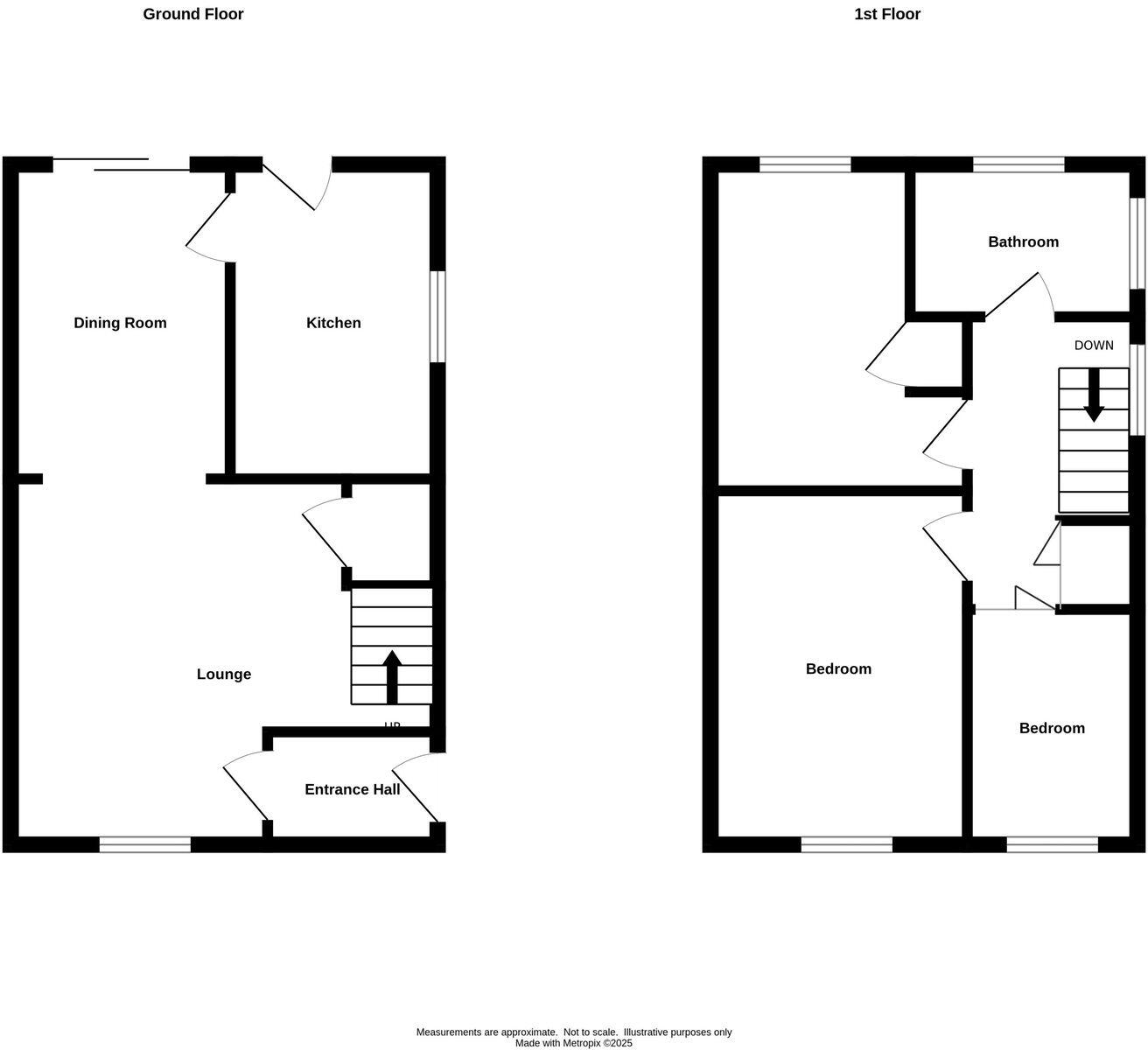
Set on a quiet cul de sac within the Crestwood Park area, this well-presented three-bedroom semi offers an attractive, move-in ready layout for growing families or first-time buyers. The ground floor features a large lounge with a separate dining area and a modern fitted kitchen, while upstairs provides two good double bedrooms and a smaller third bedroom suitable as a child’s room or study. The property benefits from gas central heating, UPVC double glazing and solar panels on the tiled roof.
Outside, the wide block-paved driveway provides generous off-street parking and gated side access, with a detached garage to the rear and a sunny, landscaped garden with patio and lawn. Local schools, shops and bus routes are within easy reach; council tax is band B and the EPC rating is currently C (72), reflecting reasonable energy efficiency with scope to improve further.
Buyers should note the tenure is currently leasehold and is stated to convert to freehold on completion — confirm paperwork and timelines before exchange. The third bedroom is small and there is a single family bathroom, so larger families may find space limited. Overall this is an average-sized, well-maintained suburban home offering practical living, parking and outdoor space in a quiet, sought-after street.
3 bedroom semi-detached house for sale in KINGSWINFORD, Tunstall Road, DY6 — £230,950 • 3 bed • 1 bath • 732 ft²
3 bedroom semi-detached house for sale in Surrey Drive, Kingswinford, DY6 8HR, DY6 — £250,000 • 3 bed • 1 bath • 863 ft²
3 bedroom semi-detached house for sale in KINGSWINFORD, Blenheim Road, DY6 — £235,000 • 3 bed • 1 bath • 870 ft²
3 bedroom semi-detached house for sale in KINGSWINFORD, Burrows Road, DY6 — £235,000 • 3 bed • 1 bath • 689 ft²
3 bedroom semi-detached house for sale in KINGSWINFORD, Rangeways Road, DY6 — £265,000 • 3 bed • 1 bath • 1068 ft²
3 bedroom semi-detached house for sale in Corbyns Hall Road, Pensnett, Brierley Hill, DY5 4QU, DY5 — £240,000 • 3 bed • 1 bath • 883 ft²






































































