**Standout Features:**
- Prime 1-acre development site in Llandaff, Cardiff
- Full planning permission for two options: 23 apartments or 5 detached houses
- Surrounded by top-rated schools and amenities
- Connected to mains services (gas, drainage, water, and electric)
- Close to the Taff Trail and public transport
**Potential Concerns:**
- Existing detached bungalow is derelict and may require demolition
- Proximity to railway might result in noise considerations
- The area has high levels of deprivation, which could affect marketability
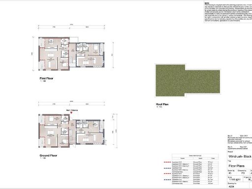
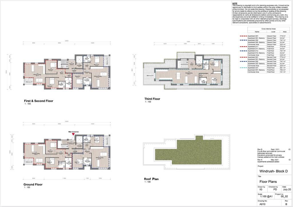
Unlock the potential of this exceptional 1-acre development site in Llandaff, Cardiff, where your vision can truly come to life. With full planning permission granted for either 23 self-contained apartments across four blocks or 5 spacious detached houses (2700-3150 sq.ft.), this prime location promises lucrative opportunities for developers. The site is conveniently nestled amidst well-regarded schools, local shops, cafes, and excellent transport links, making it an attractive option for future residents.
Embrace the chance to transform this currently derelict bungalow site into a thriving residential hub, surrounded by scenic green spaces including the nearby Taff Trail. While the proximity to the railway offers easy commuting options, it may come with some noise considerations. The existing utilities simplify the redevelopment process, making it ready for your next project. Don’t miss the opportunity to secure this highly sought-after land in a vibrant neighborhood—act now and bring your vision to reality!
Land for sale in Mackintosh Place, Cardiff, CF24 — £250,000 • 1 bed • 1 bath • 23087 ft²
Land for sale in Cowbridge Road West, Cardiff, CF5 — £249,950 • 1 bed • 1 bath • 1453 ft²
Land for sale in Llancayo Street, Bargoed, CF81 — £120,000 • 1 bed • 1 bath • 2300 ft²
Residential development for sale in Residential Development Land Off Mill Road, Tongwynlais, CF15 — £375,000 • 1 bed • 1 bath • 2300 ft²
Land for sale in 750 Newport Road, Cardiff, CF3 4FF, CF3 — £100,000 • 1 bed • 1 bath • 8668 ft²
Residential development for sale in Development Opportunity at Mill Road, Tongwynlais, Cardiff, CF15 — £525,000 • 1 bed • 1 bath • 2300 ft²






































































