Ready-planned urban site near university amenities, ideal for rental developers.
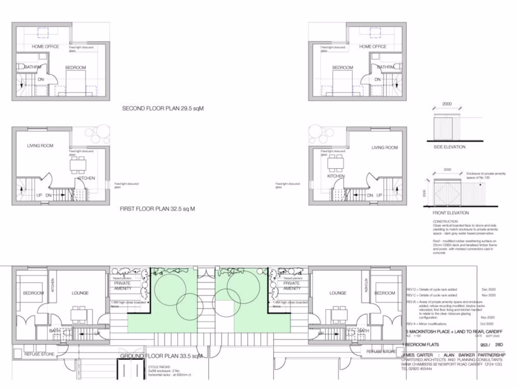
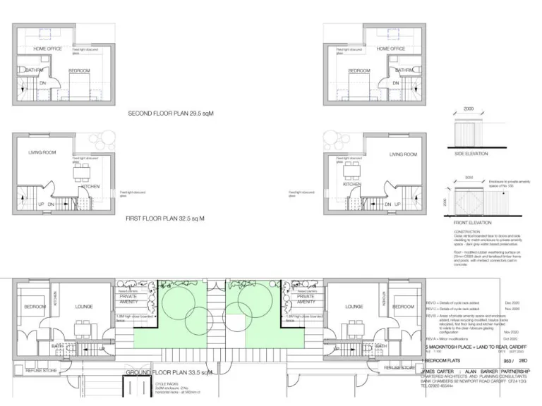
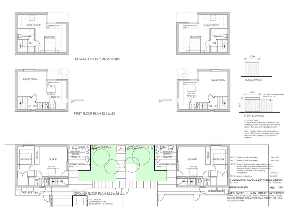
Full planning permission for 4 x 1-bed units (planning no. 20/00822/MNR)
Freehold sale; 0.53-acre / very large plot in Roath
Each unit designed with private outdoor space
Access via pedestrian route at 135 Mackintosh Place only
No services have been tested; buyer to verify connections
High local crime and very deprived area may affect rents
Situated in student-dominant neighbourhood with strong rental demand
Prior site had utilities present before demolition (untested)
A substantial freehold parcel in Roath offering full planning consent for four one-bedroom units. The 0.53-acre site includes permission (20/00822/MNR) for 2 x 1-bed flats and 2 x 1-bed maisonettes, each with outdoor space and pedestrian access via 135 Mackintosh Place. The scale and location make it a straightforward development for a small-scale specialist or investor targeting rental demand in a student-heavy neighbourhood.
The plot is extremely large and positioned within a cosmopolitan, predominantly student area close to city-centre amenities, transport links and local shops. Prior services (gas, electricity, water, sewer) were present before demolition, but no services have been tested for this sale. The freehold is included, simplifying title and transfer for developers.
Buyers should note material considerations plainly: the immediate area records high crime and very high deprivation indices, which will influence rental values and lettability. Access is pedestrian; there is no confirmed services testing, and development will require on-site construction and management. These factors reduce acquisition risk but require realistic budgeting for build costs, security measures and tenant management.
For the right buyer—particularly investors, small developers or buy-to-let specialists focusing on student rentals—this site offers clear planning-driven value. The contemporary elevation plans and large plot offer flexibility for efficient, cost-effective housing units that meet local demand, while the freehold and confirmed planning permission significantly reduce early entitlements risk.
Land for sale in Cowbridge Road West, Cardiff, CF5 — £249,950 • 1 bed • 1 bath • 1453 ft²
Land for sale in Pwllmelin Road, Llandaff, CF5 — £850,000 • 1 bed • 1 bath • 3150 ft²
Land for sale in Atlantic Wharf, Cardiff, CF10 — £449,950 • 1 bed • 1 bath • 7922 ft²
Land for sale in Land Off Mill Road, Tongwynlais, Cardiff, CF15 — £375,000 • 1 bed • 1 bath • 2300 ft²
Residential development for sale in Development Opportunity at Mill Road, Tongwynlais, Cardiff, CF15 — £375,000 • 1 bed • 1 bath • 2300 ft²
Land for sale in Ravensbrook, Morganstown, Cardiff, CF15 — £500,000 • 1 bed • 1 bath • 1750 ft²


















































