Classic Victorian home near Burton Road, ideal for growing families.
Bay-fronted living room with feature fireplace and large dining room
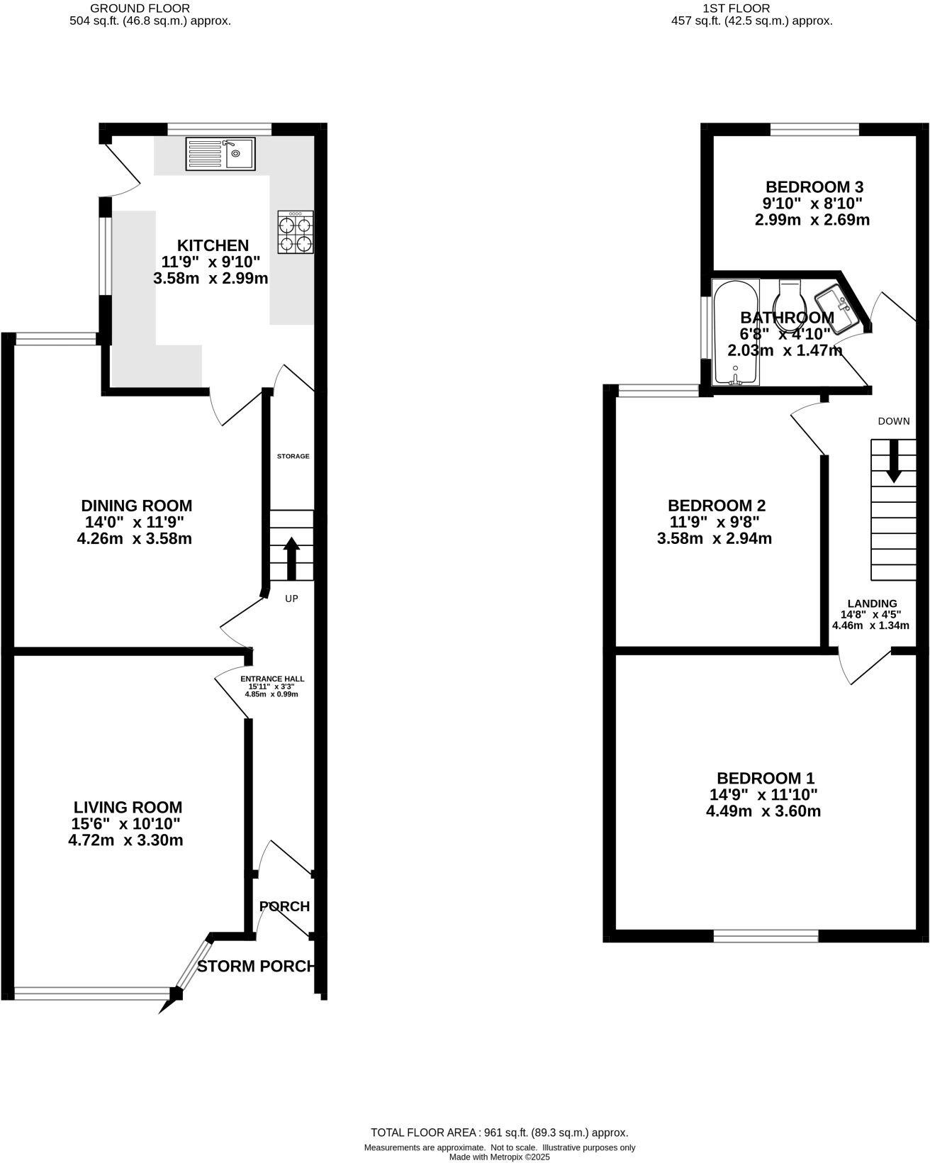
This well-presented Victorian mid-terrace offers classic period character with contemporary living in the heart of West Didsbury. Two generous reception rooms, a modern fitted kitchen and three good-sized double bedrooms provide comfortable, flexible space for family life.
Set on a quiet, leafy cul-de-sac just moments from Burton Road and local Metrolink, the house enjoys excellent local amenities, good schools and easy city-centre access. A westerly-facing rear garden and tidy front patio deliver outdoor space for evening sun and low-maintenance planting.
Practical details suit everyday ownership: freehold tenure, mains gas boiler and radiators, double glazing, and an affordable council tax band. The property is built of solid brick (c.1900–1929) and is an average-sized terrace of about 961 sq ft, so it feels substantial without being oversized.
Buyers should note a single family bathroom and a small rear plot. The solid-wall construction likely lacks cavity insulation and could benefit from energy-efficiency upgrades in future. Overall this home is move-in ready but offers clear scope to tailor finishes and improve thermal performance over time.
3 bedroom terraced house for sale in Disley Avenue, West Didsbury, M20 — £450,000 • 3 bed • 1 bath • 931 ft²
3 bedroom end of terrace house for sale in Arley Avenue, West Didsbury, M20 — £570,000 • 3 bed • 2 bath • 1488 ft²
3 bedroom terraced house for sale in Arley Avenue, West Didsbury, M20 — £465,000 • 3 bed • 1 bath • 1172 ft²
3 bedroom terraced house for sale in The Beeches Mews, West Didsbury, M20 — £450,000 • 3 bed • 1 bath • 1251 ft²
4 bedroom terraced house for sale in Bamford Road, Didsbury, M20 — £525,000 • 4 bed • 2 bath • 1346 ft²
3 bedroom end of terrace house for sale in Westbourne Grove, West Didsbury, Manchester, M20 — £675,000 • 3 bed • 2 bath • 1388 ft²


















































































