Compact, commuter-friendly two-bedroom home with private garden and ensuites.
Victorian bay-fronted mid-terrace in sought-after West Reading road
Set on a sought-after West Reading road, this Victorian bay-fronted terrace offers a compact, well-presented home for first-time buyers or couples. The house provides two separate reception rooms and a refitted kitchen with appliances, so daily living is comfortable from move-in.
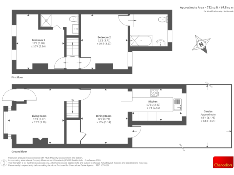
Both double bedrooms have their own ensuite bathrooms — an uncommon convenience in a property of this size — and the enclosed rear garden gives private outdoor space for plants or a small seating area. The home totals about 752 sq ft and is offered with no onward chain, making a prompt sale straightforward.
Built c.1900–1929 with solid brick walls, the property retains period character such as bay windows and a fireplace in the living room. However, the walls are assumed uninsulated, so upgrading insulation or heating efficiency should be considered to reduce running costs. The plot is small and room sizes are average, so this is best suited to buyers who prioritise location and low-maintenance space rather than extensive gardens or large rooms.
Practical local factors: Reading West and mainline stations are within easy reach for commuters, broadband and mobile signal are strong, council tax is described as affordable, and there is a wide range of nearby amenities. Nearby primary schools have Good Ofsted ratings; local secondary provision is mixed.
2 bedroom terraced house for sale in Tilehurst Road, Reading, RG1 — £325,000 • 2 bed • 1 bath • 902 ft²
2 bedroom terraced house for sale in Shaftesbury Road, Reading, RG30 — £300,000 • 2 bed • 2 bath • 969 ft²
2 bedroom terraced house for sale in Grovelands Road, Reading, Berkshire, RG30 — £345,000 • 2 bed • 2 bath • 1021 ft²
2 bedroom terraced house for sale in Connaught Road, Reading, United Kingdom, RG30 — £330,000 • 2 bed • 1 bath • 801 ft²
2 bedroom terraced house for sale in West Reading, Berkshire, RG30 — £350,000 • 2 bed • 2 bath • 952 ft²
3 bedroom terraced house for sale in Edinburgh Road, Reading, RG30 — £375,000 • 3 bed • 1 bath • 1045 ft²






















































































