Compact, characterful house near station ideal for first move or rental income.
Two double bedrooms with a shower room off the main bedroom
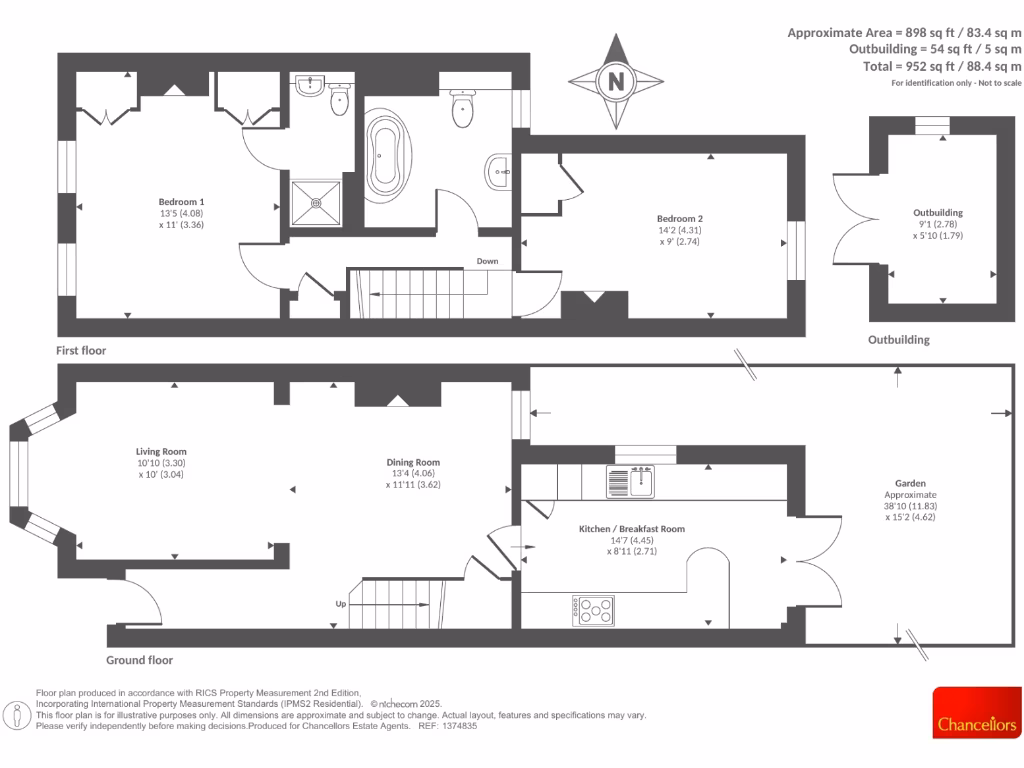
This mid-terrace Victorian house offers two double bedrooms, high ceilings and period character in West Reading. The layout includes a living room, separate dining room, a modern refitted kitchen and a refitted family bathroom, plus an ensuite-style shower room off the main bedroom. French doors open to a low‑maintenance rear patio garden — practical for a first home or buy-to-let.
Located about 0.5 miles from Reading West station, the property is handily placed for commuting and local amenities. The house is freehold, modest in plot size and around 952 sq ft, making it a manageable, affordable option for first-time buyers looking to move quickly into a convenient town setting.
Buyers should note a few material facts: the walls are original solid brick (no retrofit insulation assumed), double glazing is present but installation date is unknown, and parking is on-street with a permit system. Crime levels in the area are above average, which may concern some purchasers. The compact garden and overall layout mean maintenance is low, but there is potential to improve energy efficiency and modernise further if desired.
Overall this is a straightforward, characterful home suited to someone seeking immediate occupancy or a rental investment with clear scope to add value through insulation and cosmetic updates. Council tax is inexpensive, broadband and mobile signals are good, and local schools and amenities are within easy reach.
2 bedroom terraced house for sale in Grovelands Road, Reading, Berkshire, RG30 — £345,000 • 2 bed • 2 bath • 1021 ft²
2 bedroom terraced house for sale in Connaught Road, Reading, United Kingdom, RG30 — £330,000 • 2 bed • 1 bath • 801 ft²
2 bedroom terraced house for sale in St. Johns Street, Reading, Berkshire, RG1 — £325,000 • 2 bed • 1 bath • 744 ft²
2 bedroom terraced house for sale in Edgehill Street, Reading, RG1 — £375,000 • 2 bed • 2 bath • 856 ft²
2 bedroom terraced house for sale in Reading University / Hospital Area, Berkshire, RG1 — £300,000 • 2 bed • 1 bath • 669 ft²
2 bedroom terraced house for sale in Kensington Road, Reading, RG30 — £330,000 • 2 bed • 1 bath • 747 ft²


















































































