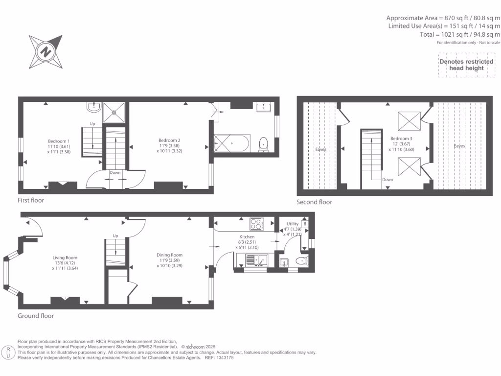
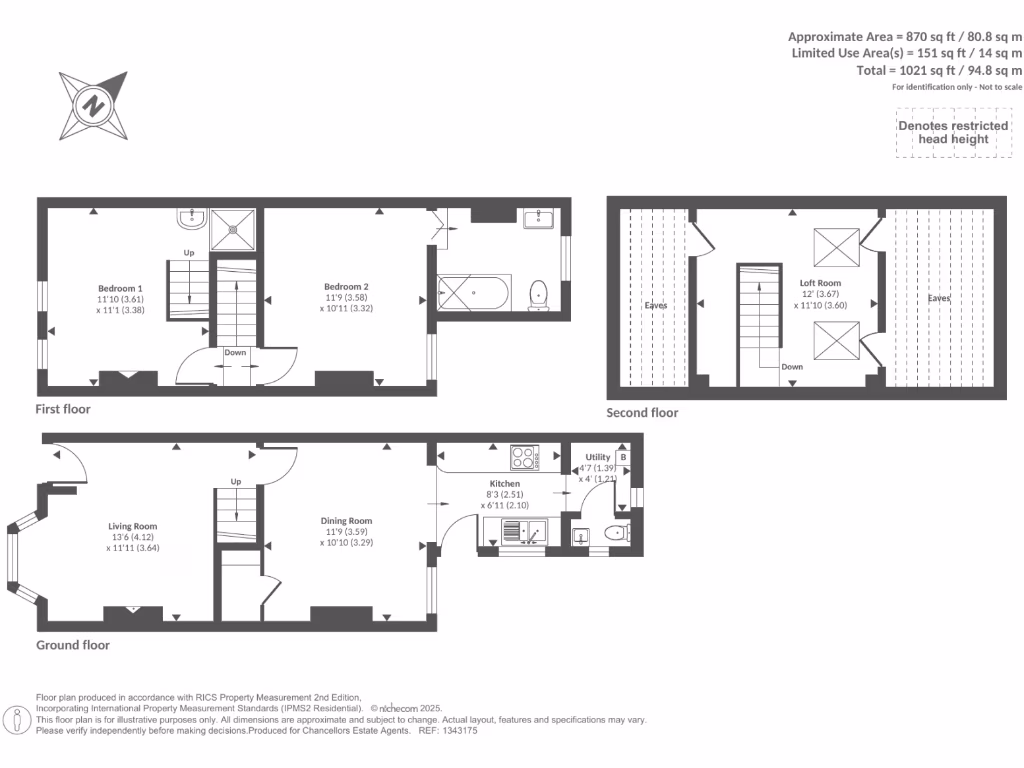
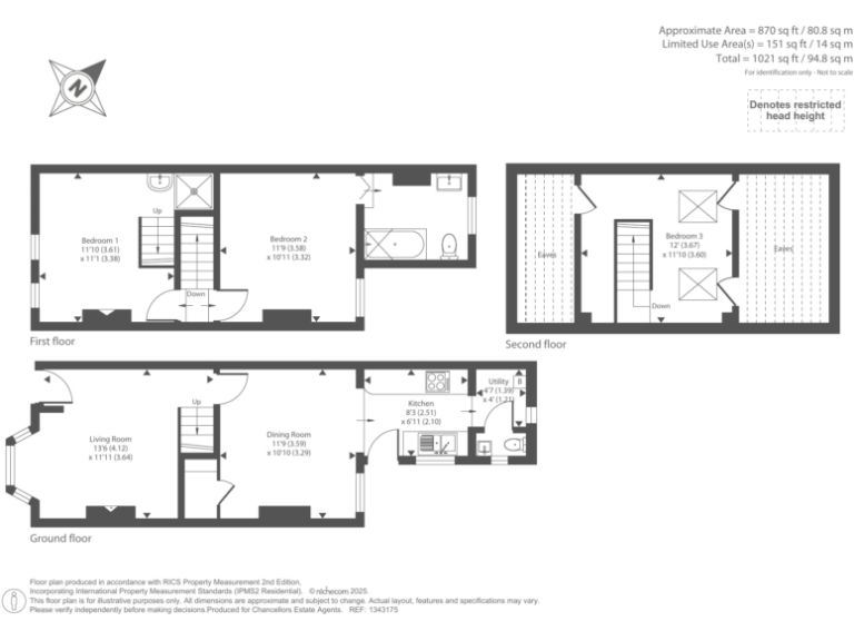
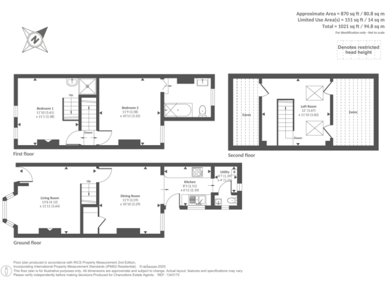
Minutes from Reading centre with a secluded garden and flexible loft space.
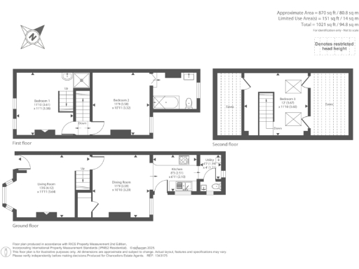
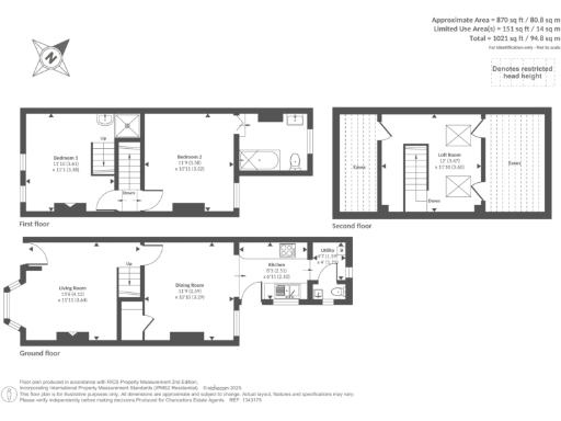
Two double bedrooms, master with modern en-suite
Loft with staircase — versatile office or guest space
Two reception rooms plus kitchen and utility area
Private, secluded garden on a small plot
Original floorboards, bay windows and high ceilings
Downstairs cloakroom with underfloor heating (toilet only)
Solid brick walls likely uninsulated — consider insulation work
Freehold, affordable council tax, close to Reading station
This Victorian mid-terrace marries period character with practical modern upgrades across two generous double bedrooms. Original floorboards, bay windows and high ceilings retain charm while a modern en-suite and a second bedroom shower offer contemporary convenience. A loft accessed by a staircase provides versatile extra space for a home office or guest room.
Downstairs the layout includes two separate reception rooms, a kitchen with natural slate flooring and a utility area, plus a downstairs cloakroom with underfloor heating. A private, secluded garden provides outdoor space despite the small plot. Broadband speeds are fast and mobile signal is excellent, making the house well suited to remote working.
Important practical points: the property dates from c.1900–1929 and the original solid brick walls are assumed to have no cavity insulation, which may affect heating costs. The plot is compact and some owners may wish to upgrade insulation or modernise systems over time. The home is freehold with affordable council tax and easy access to Reading town centre, The Oracle and Reading mainline station, appealing to commuters and first-time buyers seeking character with potential.
2 bedroom terraced house for sale in St. Johns Street, Reading, Berkshire, RG1 — £325,000 • 2 bed • 1 bath • 744 ft²
2 bedroom terraced house for sale in Edgehill Street, Reading, RG1 — £375,000 • 2 bed • 2 bath • 856 ft²
2 bedroom terraced house for sale in Sherwood Street, Reading, RG30 — £285,000 • 2 bed • 1 bath • 663 ft²
2 bedroom end of terrace house for sale in Garnet Street, Reading, Berkshire, RG1 — £325,000 • 2 bed • 2 bath • 823 ft²
2 bedroom terraced house for sale in Henry Street, Reading, RG1 — £300,000 • 2 bed • 1 bath • 797 ft²
2 bedroom terraced house for sale in Kensington Road, Reading, Berkshire, RG30 — £350,000 • 2 bed • 2 bath • 756 ft²


























































































