Chain-free period home with two ensuites and a small courtyard.
Central Plymouth location, short walk to amenities and transport
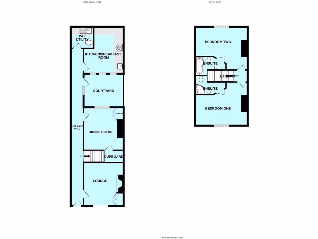
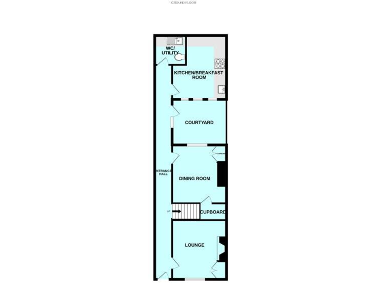
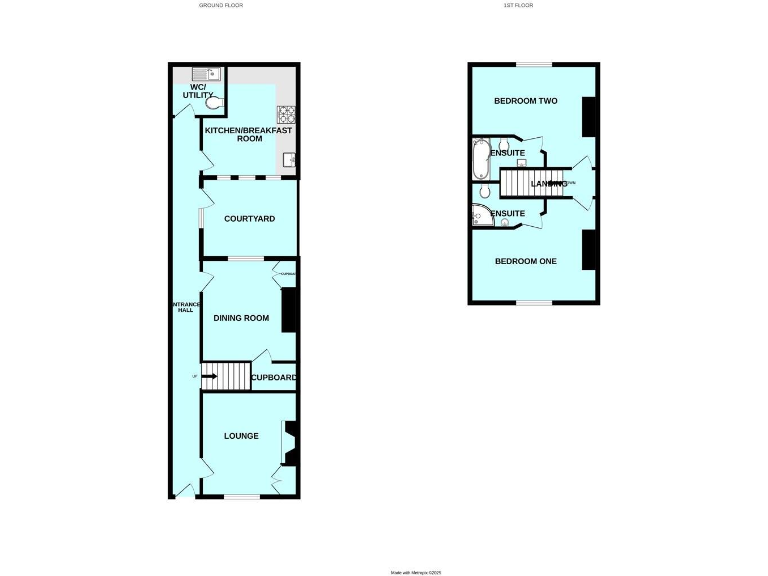
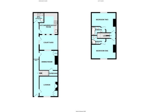
A spacious-feeling two-bedroom semi in central Plymouth, offered chain-free and ready for immediate occupation. The layout is traditional and practical: an entrance hall leads to a lounge, separate dining room and a large kitchen/breakfast room with skylight. Both first-floor double bedrooms have ensuite facilities, a rare convenience in homes of this size.
The property sits on a small enclosed courtyard that provides private outdoor space for a table, planters or storage. Modern conveniences include double glazing, a mains gas boiler with radiators and fast broadband and excellent mobile signal — useful for home working or streaming. At around 958 sq ft, the house feels larger than many inner-city alternatives.
Important considerations: the property is in a very deprived area with a very high local crime rate, which may affect security, insurance and resale for some buyers. The building’s stone walls are likely uninsulated (assumed), so buyers should budget for potential insulation or energy-efficiency improvements. The plot and courtyard are small and there is no off-street parking.
This home suits a first-time buyer or investor who wants central access to Plymouth’s amenities, handy transport links and compact outside space, while accepting the neighbourhood challenges and possible improvement works. Council tax band B and the lack of a chain are practical benefits for a swift move or letting setup.
2 bedroom house for sale in Adelaide Street, Stonehouse, Plymouth, PL1 — £190,000 • 2 bed • 1 bath • 1206 ft²
2 bedroom terraced house for sale in 3 Commercial Place Plymouth. Well presented Cottage style Home, in fabulous central location , PL4 — £210,000 • 2 bed • 1 bath • 563 ft²
3 bedroom terraced house for sale in North Hill, Plymouth, PL4 — £190,000 • 3 bed • 1 bath • 883 ft²
2 bedroom terraced house for sale in Anstis Street, Plymouth, PL1 — £150,000 • 2 bed • 1 bath • 496 ft²
2 bedroom terraced house for sale in Constance Place, Plymouth, PL1 — £290,000 • 2 bed • 1 bath • 806 ft²
2 bedroom semi-detached house for sale in Adelaide Street Ope, Plymouth, PL1 — £160,000 • 2 bed • 1 bath • 517 ft²






























































