Vacant, chain-free Victorian terrace near Plymouth University — ready for investors.
Vacant and chain-free, ready for immediate sale or re-letting
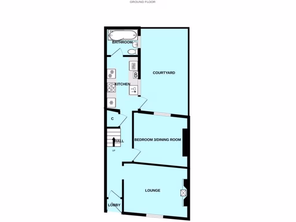
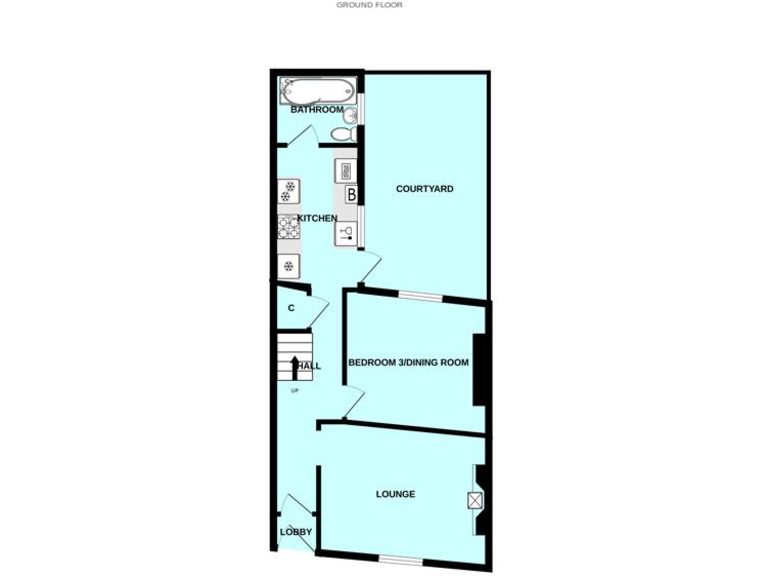
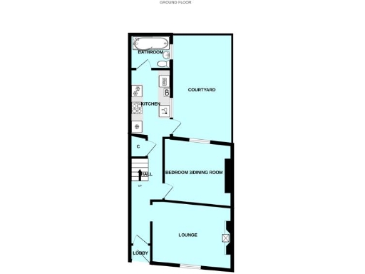
A solid period mid-terrace in North Hill offering straightforward rental or owner-occupier potential. The property is vacant and sold chain-free, with a recent rental history of circa £18,000 per annum — attractive for investors seeking immediate re-letting or landlords wanting a quick turnaround. Its location is highly convenient: short walks to Plymouth University, the city centre and local amenities.
Accommodation is well presented with gas central heating, uPVC double glazing and a modern fitted kitchen and bathroom. The ground floor has a generous lounge and a flexible dining room/bedroom three; upstairs provides two good-sized bedrooms, the large principal room offering potential to subdivide for extra income or to suit different household needs. Externally there is an enclosed walled courtyard with useful store and services to the rear.
Important considerations: the property lies in a deprived area with a high local crime score, which will affect tenant demand and rental values for some demographic groups. The building is Victorian with granite walls likely uninsulated and the double glazing predates 2002; further insulation and energy-efficiency work may be advisable to reduce running costs and improve long-term value. Overall, this is a practical, low-entry freehold purchase for investors or buyers comfortable with inner-city conditions and modest upgrade work.
3 bedroom terraced house for sale in Melbourne Place, Plymouth, Devon, PL1 — £150,000 • 3 bed • 1 bath • 872 ft²
7 bedroom end of terrace house for sale in North Street, TF, Plymouth, PL4 — £290,000 • 7 bed • 2 bath • 834 ft²
2 bedroom terraced house for sale in Chedworth Street, Plymouth. A Two Bedroom Investment Property. , PL4 — £150,000 • 2 bed • 1 bath • 677 ft²
2 bedroom semi-detached house for sale in Union Place, Plymouth, PL1 — £169,950 • 2 bed • 2 bath • 958 ft²
5 bedroom terraced house for sale in North Hill, Plymouth, PL4 — £385,000 • 5 bed • 2 bath • 2003 ft²
3 bedroom terraced house for sale in Cheltenham Place, Plymouth, PL4 — £220,000 • 3 bed • 1 bath • 1228 ft²


































































