Spacious family living with private garden backing fields and excellent commuter links.
Four bedrooms including main with en-suite
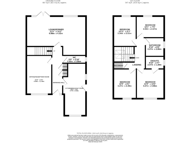
A well-proportioned four-bedroom detached home offering practical family accommodation and a rare rear outlook directly onto open countryside. The large lounge/diner opens onto a private garden, creating easy indoor–outdoor living, while a separate front-facing kitchen/breakfast room and ground-floor office provide flexible space for daily family life and home working.
All four bedrooms are on the first floor, including a main bedroom with en-suite and a naturally lit family bathroom, making the layout straightforward for family routines. The property benefits from double glazing (fitted post-2002), mains gas central heating and a decent-sized plot with off-street driveway parking to the front.
Location is a strong practical asset: around 1.7 miles from Harpenden station and under ten minutes’ drive to the M1 J9, offering straightforward commuter links. Nearby primary schools are well-regarded and local village amenities add community appeal.
A few factual points to note: the area records above-average crime and sits within a more deprived local profile, and council tax is above average. Constructed in the 1950s–60s, the house presents solid bones but may benefit from cosmetic updating to reflect modern tastes. Overall this is a sensible family home with countryside views and room to personalise.
4 bedroom detached house for sale in Dunstable Road, Caddington, Luton, Bedfordshire, LU1 — £600,000 • 4 bed • 3 bath • 1509 ft²
5 bedroom detached house for sale in Manor Road, Caddington, Luton, Bedfordshire, LU1 — £650,000 • 5 bed • 3 bath • 1900 ft²
5 bedroom detached house for sale in Pickford Road, Markyate, St. Albans, Hertfordshire, AL3 — £1,425,000 • 5 bed • 2 bath • 2704 ft²
4 bedroom detached house for sale in St. Albans Road, Sandridge, St. Albans, Hertfordshire, AL4 — £900,000 • 4 bed • 2 bath • 1256 ft²
3 bedroom semi-detached house for sale in Mancroft Road, Aley Green, Luton, Bedfordshire, LU1 — £450,000 • 3 bed • 1 bath • 774 ft²
4 bedroom detached house for sale in Lybury Lane, Redbourn, St. Albans, Hertfordshire, AL3 — £675,000 • 4 bed • 2 bath • 1058 ft²


















































