Affordable three-bedroom terrace with cellar and low-maintenance yard, ideal for first-time buyers..
Three bedrooms over three floors, principal bedroom with built-in wardrobes
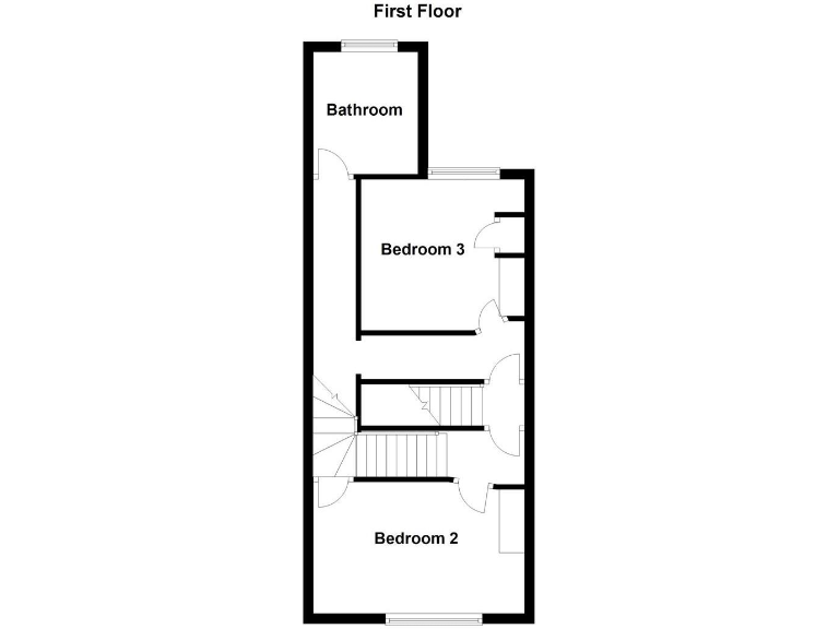
A practical three-bedroom mid-terrace arranged over three floors, suited to a first-time buyer or investor seeking rental potential. The ground floor offers a living room leading to a modern kitchen/diner with integrated appliances and access to a useful cellar for storage. Two bedrooms occupy the first floor with the principal bedroom on the second floor benefiting from built-in wardrobes and velux windows.
Outside is a low-maintenance concrete rear yard with a shed and rear gate; on-street parking is available to the front. The property sits in Normanton with good transport links (rail and M62 nearby) and local amenities close by, including several primary schools rated Good or Outstanding.
Practical considerations: the house is solid-brick (circa 1900–1929) and likely lacks cavity wall insulation, the EPC is D (64), and there is no off-street parking. The layout is compact with a small plot and average-sized rooms, so buyers should expect modest space rather than expansive family accommodation. Overall this is an affordable freehold opportunity to buy, update and add value in a well-connected town location.
3 bedroom end of terrace house for sale in Newfield Court, Normanton, WF6 — £165,000 • 3 bed • 1 bath • 1378 ft²
3 bedroom terraced house for sale in Gilcar Street, Normanton, WF6 — £150,000 • 3 bed • 1 bath • 780 ft²
3 bedroom terraced house for sale in Castleford Road, Normanton, WF6 — £155,000 • 3 bed • 1 bath • 1131 ft²
3 bedroom end of terrace house for sale in Dalefield Avenue, Normanton, WF6 — £160,000 • 3 bed • 2 bath • 829 ft²
2 bedroom terraced house for sale in Cambridge Street, Normanton, WF6 — £140,000 • 2 bed • 1 bath • 1109 ft²
3 bedroom town house for sale in Gilcar Villas, Normanton, WF6 — £225,000 • 3 bed • 2 bath • 820 ft²


























































