Three-storey live/work property near shops, school and M20 access.
Mixed-use layout: commercial ground floor with residential above
Freehold townhouse, built 2007–2011, double glazed, gas central heating
Approx. 1,733 sq ft across three storeys, seven-room layout
Allocated off-street parking accessed via rear gate
Low-maintenance rear decking and artificial lawn garden
Former B1 use now class E — confirm permitted commercial use
Small plot size; internal rooms small to medium in scale
Appliances/services not tested — recommend independent checks
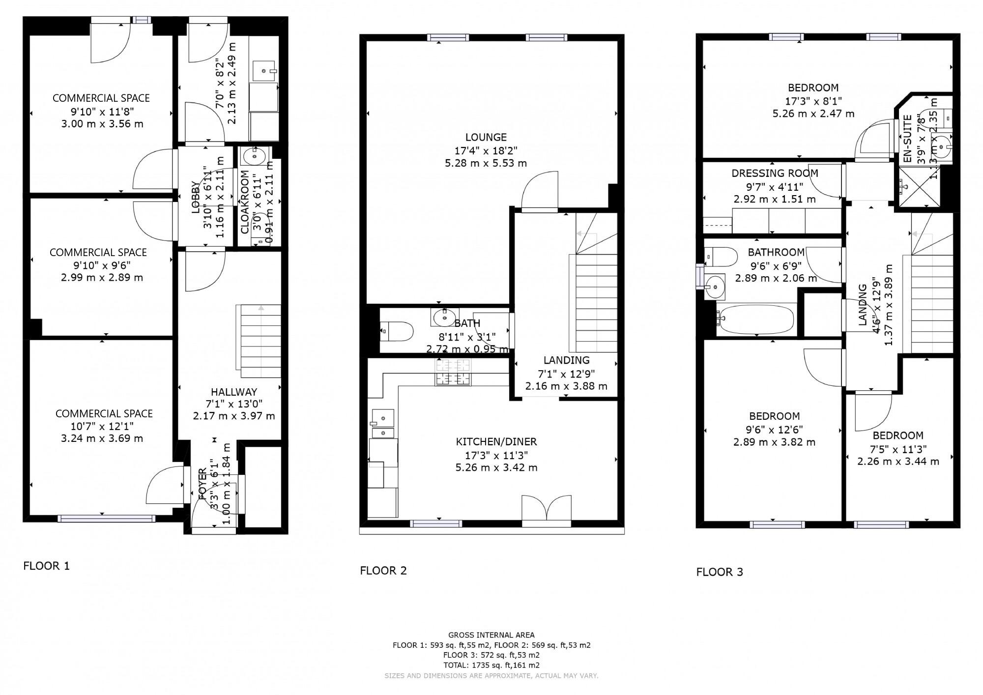
Set over three storeys, this versatile freehold townhouse offers a rare mixed-use layout: commercial accommodation to the ground floor with residential living above. The first-floor living room benefits from a full-height window and Juliet balcony, while the top floor provides three bedrooms, a dressing room and an en-suite to the principal bedroom. Constructed between 2007–2011, the property has modern fixtures, double glazing and gas central heating.
Positioned in Repton Park, the location is aimed at multi-ethnic professionals and families and sits close to a primary school, Waitrose, local shops, bus routes and junction 9 of the M20. The development includes play areas and open space, and the area scores as very affluent with fast broadband and excellent mobile signal — useful for home-working or running a small business from the ground floor.
Practical features include an allocated off-street parking space accessed via a rear gate, a virtually zero-maintenance decked garden with artificial lawn, and reasonable room sizes across seven rooms. The ground floor has previously been used as B1 business use and is now in E use; buyers should verify permitted uses for their intended commercial activity. Appliances and services have not been tested and should be independently checked.
This property will suit an investor seeking rental or business income, or an owner-occupier wanting live/work flexibility in a well-served development. Note the small plot size, average local crime level, and moderate council tax banding when assessing running costs and long-term suitability.
3 bedroom terraced house for sale in Sir John Fogge Avenue, ASHFORD, Kent, TN23 — £325,000 • 3 bed • 2 bath • 1053 ft²
4 bedroom terraced house for sale in Jack Dunbar Place, TN23 3GQ, TN23 — £375,000 • 4 bed • 2 bath • 867 ft²
4 bedroom semi-detached house for sale in Laurence Hamilton Lane, Ashford, TN23 — £425,000 • 4 bed • 3 bath • 1463 ft²
3 bedroom end of terrace house for sale in Laurence Hamilton Lane, Repton Park, Ashford, TN23 — £300,000 • 3 bed • 2 bath • 332 ft²
3 bedroom semi-detached house for sale in John Haselden Crescent, Ashford, TN23 — £380,000 • 3 bed • 3 bath • 936 ft²
3 bedroom detached house for sale in 3 Bedroom Detached, Repton Park, TN23 — £375,000 • 3 bed • 2 bath • 770 ft²


































































































