TN23 3GQ - 4 bedroom terraced house for sale in Jack Dunbar Place, TN2…

View on Property Piper

4 bedroom terraced house for sale in Jack Dunbar Place, TN23 3GQ, TN23

Summary - 13 JACK DUNBAR PLACE ASHFORD TN23 3GQ

4 bed 2 bath Terraced

**Standout Features:**
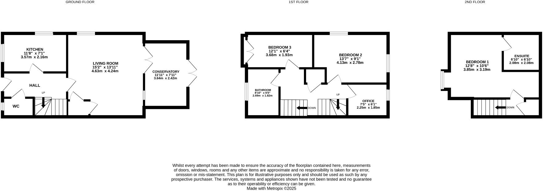
- Modern mid-terraced townhouse, three storeys
- 4 bedrooms, including a stunning top floor master with en-suite
- Generous kitchen and lounge/diner with sun room
- Low-maintenance garden and private parking (2 spaces + garage)
- Located in desirable Repton Park, walking distance to amenities

**Concise Summary:**
Discover this stunning four-bedroom mid-terrace townhouse situated in the sought-after Repton Park area, ideal for families and first-time buyers seeking a combination of space and modern living. With accommodation spread over three floors, the highlight is a generously sized top floor principal bedroom complete with its own en-suite shower and ample built-in storage. The bright and airy kitchen overlooks the front green, while the expansive lounge/diner, enhanced by double doors leading to a sun-room, creates a perfect space for entertaining.

This home also features a low-maintenance garden for added privacy, along with two designated off-street parking spots and a garage for convenience. Positioned near top-rated primary schools, Waitrose supermarket, and local amenities, it offers both comfort and accessibility. Note that the property is in excellent condition, though the garden is compact, perfect for those who prefer minimal upkeep. Don’t miss out on this exceptional opportunity to secure a modern home in an affluent area—schedule your viewing today!

Property Details

Brochure Descriptions

Image Descriptions

Floorplan Description

Rooms

Textual Property Features

Detected Visual Features

EPC Details

Nearby Schools

Nearest Bars And Restaurants

,,,,}

Nearest General Shops

,,}

Nearest Grocery shops

,,}

Nearest Supermarkets

,,}

Nearest Religious buildings

,,}

Nearest Medical buildings

,,,}

Nearest Leisure Facilities

,,,,}

Nearest Tourist attractions

,,}

Nearest Train stations

,,,,}

Nearest Bus stations and stops

,,,,}

Nearest Hotels

,,}

Tags

Local Market Stats

Similar Properties

Meta

High Res Images

Compatible Images

Low res Images

Thumbnails

Raw Images

High Res Floorplan Images

Compatible Floorplan Images

Low res Floorplan Images

FloorplanImages Thumbnail

Raw Floorplan Images