Character-filled family home with modern finishes and private courtyard garden.
- Unique three-storey barn conversion in conservation area
- Two en-suite bedrooms plus family bathroom
- Recently refurbished with oak flooring and quality fittings
- Air source heating installed for efficient heating
- Walled, fenced courtyard garden; small, low-maintenance plot
- Dedicated off-road gravelled parking for one vehicle
- Average broadband speeds; area classified as deprived
- Multi-level layout may challenge limited mobility needs
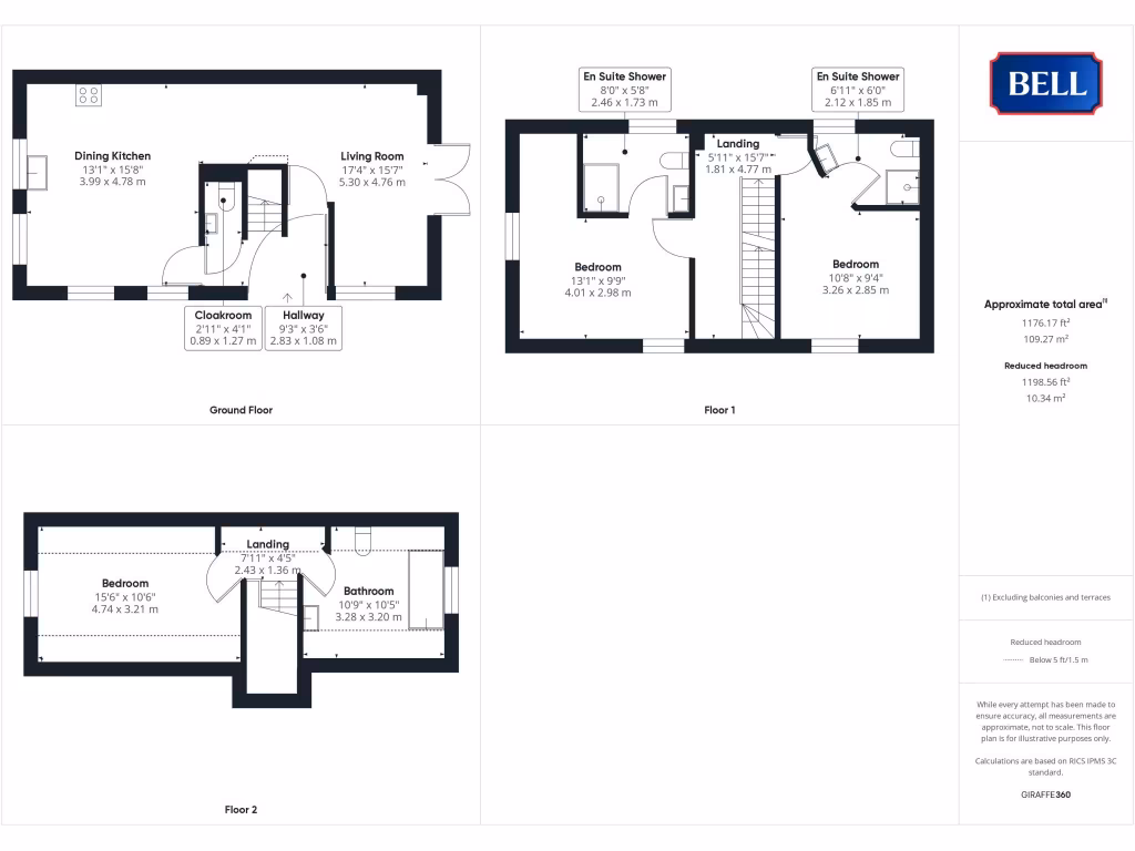
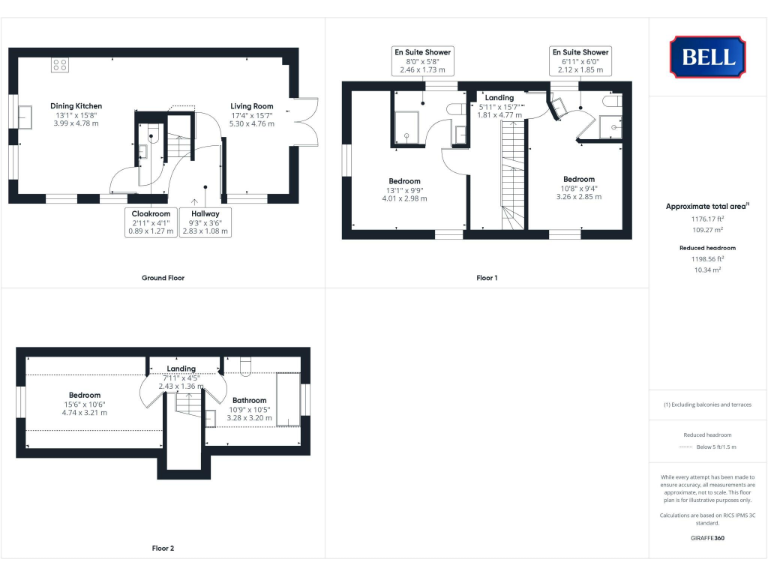
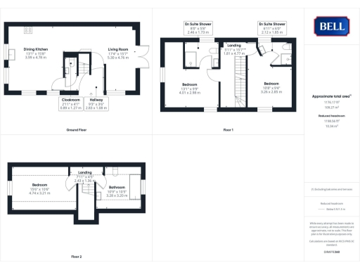
Bramley Barn is a distinctive three-storey barn conversion set in Wragby’s conservation area. Substantially rebuilt and reconfigured in the 21st century, the property blends original features — arched coach-house doors, exposed iron ties and wide openings — with contemporary fittings such as oak floors, a quality dining kitchen and stylish bathrooms.
The layout suits a small family or professionals who want character with low-maintenance modern systems. Accommodation includes a generous living room, a dining kitchen, cloakroom, three bedrooms (two with en suites) and a family bathroom. An air source heat pump recently installed provides an energy-efficient heating source.
Outside is a walled, fenced courtyard-style garden and a dedicated gravelled parking space. The plot is small, so outdoor space is compact but private and easy to maintain. The property’s location in a well-served village offers bus links to Lincoln and coastal towns and nearby primary schools with Good Ofsted ratings.
Practical notes: the house sits in a small town/town-fringe area with average broadband speeds and an overall deprived area classification; mobile signal is excellent. The conversion is newly renovated and presented in turn-key condition, but the compact plot and multi-storey layout may not suit those needing extensive gardens or single-level living.
3 bedroom semi-detached house for sale in Fen Road, Owmby-by-spital, LN8 — £250,000 • 3 bed • 2 bath • 1119 ft²
3 bedroom barn conversion for sale in The Barns, Westlaby, Snelland, LN3 — £425,000 • 3 bed • 2 bath • 2093 ft²
3 bedroom semi-detached house for sale in Old Barn Court, Ludford, LN8 — £220,000 • 3 bed • 1 bath • 1167 ft²
4 bedroom detached house for sale in Sycamore Barn, Spridlington Road, Faldingworth, Market Rasen, LN8 — £595,000 • 4 bed • 3 bath • 2790 ft²
1 bedroom detached house for sale in The Barn, 45A West Street, Horncastle, LN9 — £325,000 • 1 bed • 2 bath • 1711 ft²
3 bedroom detached house for sale in Silver Street, Wragby, Market Rasen, LN8 — £315,000 • 3 bed • 2 bath • 1600 ft²






























































