Characterful single‑storey living in a peaceful village with private courtyard parking.
Barn conversion with exposed beams and stone walls
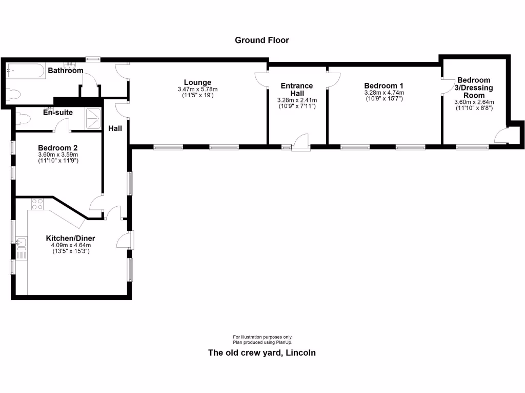
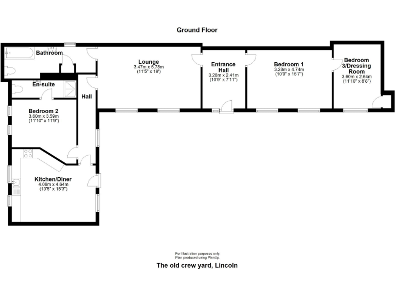
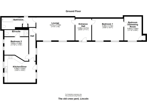
A charming converted 1800s barn offering spacious, single‑storey living in a quiet village setting. The current owners have completed extensive, high‑standard renovations: new roof to the kitchen wing, modernised electrics, new oil tank and smart triple‑glazed windows, so the home feels both characterful and comfortable from day one. Exposed beams, quarry tiles and stone walls give strong period character while engineered oak and a contemporary kitchen deliver practical, modern living.
The layout works well for families, downsizers or professionals seeking a rural base: a generous lounge, large kitchen/diner, two double bedrooms (one with en‑suite) and a third bedroom that functions as a dressing room or office. A south‑facing enclosed courtyard provides private outdoor space and off‑street parking accessed via double gates — useful in a village where drive space can be limited.
Practical considerations are straightforward: heating is oil‑fired with a recently fitted tank, council tax sits in Band C and the property is offered with no onward chain. Energy performance is EPC C. Broadband speeds are slow in this remoter community, which may affect regular home‑working; mobile signal is excellent. Overall, the house suits buyers who value character, recent refurbishment and a peaceful countryside location but who can accept rural connectivity limits and oil heating.
3 bedroom barn conversion for sale in The Barns, Westlaby, Snelland, LN3 — £425,000 • 3 bed • 2 bath • 2093 ft²
3 bedroom barn conversion for sale in Bramley Barn, Market Place, Wragby, LN8 — £209,950 • 3 bed • 3 bath • 1176 ft²
4 bedroom detached house for sale in Sycamore Barn, Spridlington Road, Faldingworth, Market Rasen, LN8 — £595,000 • 4 bed • 3 bath • 2790 ft²
7 bedroom barn conversion for sale in The Chestnuts Barn & Annex with 4 acres, Wickenby Road, Lissington, Lincoln, LN3 — £800,000 • 7 bed • 3 bath • 4103 ft²
3 bedroom barn conversion for sale in Heapham, Gainsborough, Lincolnshire, DN21 5PT, DN21 — £289,950 • 3 bed • 2 bath • 1744 ft²
3 bedroom barn conversion for sale in The Corner House, Kingsway, Nettleham, Lincoln, LN2 — £365,000 • 3 bed • 2 bath • 1517 ft²










































































