Compact period flat with garden and share of freehold, ideal for first buyers or investors.
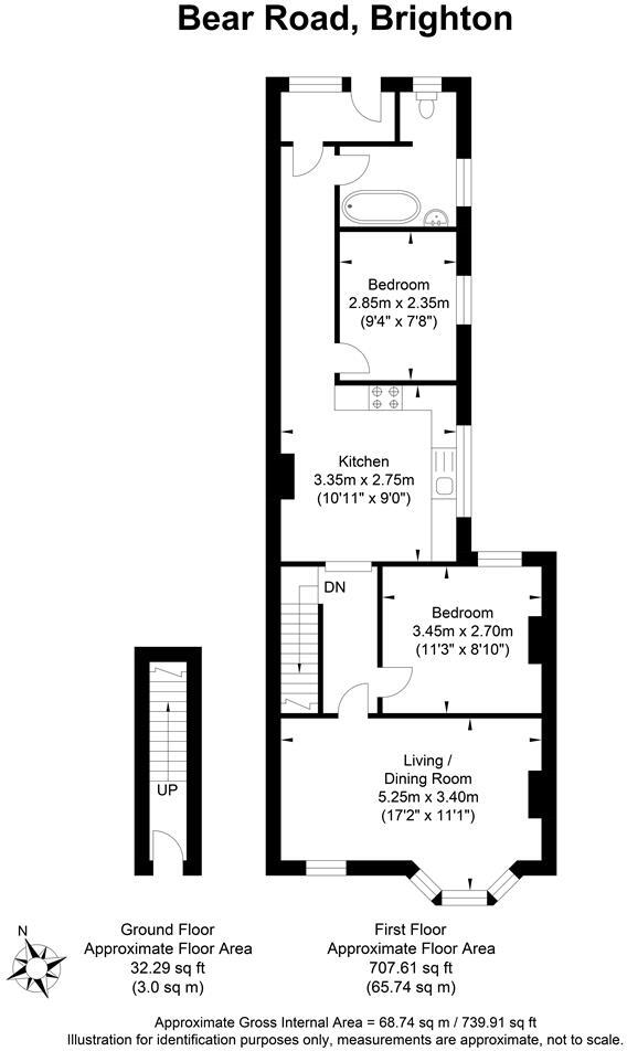
First-floor two-bedroom apartment with high ceilings and bay window character
Share of freehold provides more control over management and costs
Private garden—rare for terraces, but modest in size
Loft space offers extra storage or conversion potential (subject to consents)
Solid brick walls likely without cavity insulation—energy upgrades recommended
Double glazing installed before 2002 may be less efficient than modern units
Compact 707 sq ft footprint—efficient but not spacious for large families
Vendor suited, allowing for a potentially quick completion
Set over the first floor of a Victorian mid-terrace, this two-bedroom apartment combines period character with a contemporary kitchen and a rare private garden for this setting. The home offers solid room proportions, high ceilings and bay-window street appeal, plus a loft for storage or future adaptation.
Practical buyers will value the share of freehold, mains gas heating with boiler and radiators, and generally fast broadband and excellent mobile signal. Accommodation is compact (approximately 707 sq ft) and arranged in a linear, efficient plan that suits couples, sharers or investors seeking a centrally located Brighton home.
Notable points to inspect include the property’s solid brick walls (likely without cavity insulation) and double glazing fitted before 2002; these indicate potential energy-efficiency improvements could be beneficial. The garden is modest rather than expansive, and the flat’s footprint is relatively compact compared with larger family homes.
Overall this is a solid, well-located period apartment offering immediate occupation or straightforward letting potential. Buyers wanting to improve energy performance or reconfigure space will find scope in the loft and internal layout, while those seeking a low-maintenance city base will appreciate the sensible running costs and nearby amenities.
2 bedroom ground floor flat for sale in Bear Road, Brighton, BN2 — £300,000 • 2 bed • 1 bath • 503 ft²
1 bedroom flat for sale in Bear Road, Brighton, BN2 — £240,000 • 1 bed • 1 bath • 700 ft²
1 bedroom apartment for sale in Bates Road, Brighton, BN1 — £300,000 • 1 bed • 1 bath • 358 ft²
2 bedroom apartment for sale in Warleigh Road, Brighton, BN1 — £280,000 • 2 bed • 1 bath • 754 ft²
2 bedroom flat for sale in Ditchling Road, Brighton, East Sussex, BN1 — £375,000 • 2 bed • 1 bath • 571 ft²
2 bedroom flat for sale in Ladysmith Road, Brighton, BN2 — £300,000 • 2 bed • 1 bath • 602 ft²






























