Freehold lot with planning for three detached bungalows in a quiet cul‑de‑sac.
Freehold parcel with planning for three 3‑bedroom detached bungalows
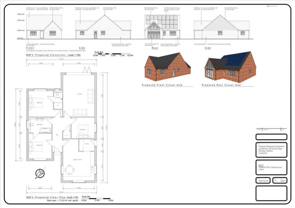
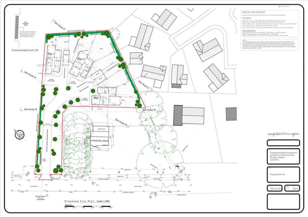
A rare single‑lot opportunity on the village fringe, this freehold parcel benefits from full planning permission (application 24/0935/FUL) for three detached three‑bedroom bungalows with garages. Set at the end of a small cul‑de‑sac, two plots enjoy largely unobstructed open views over adjoining fields, offering a quiet semi‑rural aspect while remaining easily accessible from Walcott Road.
The permission delivers straightforward new‑build product: single‑storey modern bungalows with garages and private gardens, suitable for owner‑occupiers or a small local developer. Mobile signal is excellent and local primary and secondary schools have good Ofsted ratings, supporting family occupation. Parking and private garage provision are included in the approved scheme.
Buyers should note practical constraints: the wider area records slower broadband speeds and local area deprivation is higher than average, which may affect appeal to some buyers. The site is offered as one lot only and no internal measurements or total GIA are provided; purchasers should satisfy themselves on plot sizes, service connections and build costs. Viewing and pre‑application contractor costings are advised before exchange.
Plot for sale in High Street, Billinghay, LN4 — £350,000 • 1 bed • 1 bath
Land for sale in Skirth Road, Billinghay, Lincoln, LN4 — £450,000 • 1 bed • 1 bath
3 bedroom semi-detached bungalow for sale in High Street, Billinghay, LN4 — £550,000 • 3 bed • 1 bath • 916 ft²
Plot for sale in Kirkby Lane, Kirkby-on-Bain, Woodhall Spa, LN10 — £145,000 • 4 bed • 3 bath
Land for sale in High Street, Helpringham, NG34 — £75,000 • 1 bed • 1 bath
Plot for sale in 25 High Street, Helpringham, Sleaford, Lincolnshire, NG34 — £120,000 • 1 bed • 1 bath






















