Generous 0.2–0.25 acre plots with full planning in a sought-after village.
Full planning permission for detached family homes (ref 02598/25/FUL)
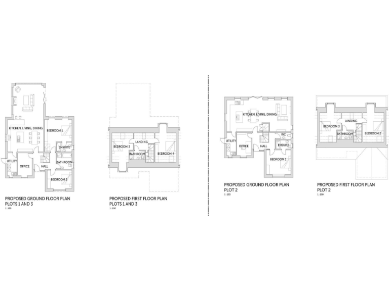
Three generous 0.2–0.25 acre building plots on the edge of sought-after Kirkby-on-Bain, offered with full planning permission (East Lindsey DC ref 02598/25/FUL). Each consented detached dwelling provides flexible family accommodation — three or four double bedrooms, up to three bath/shower rooms, a large open-plan kitchen/living/dining room, separate second reception and detached garage. Plots sit with south-facing rear gardens and private drives, backing onto open arable fields for lasting rural outlooks and privacy.
The location will appeal to families seeking village life: a high-achieving primary school, a well-regarded local pub, village church and easy access to Woodhall Spa (c.3 miles) with shops, supermarket and services. Mains water and electricity are available nearby and the village has very low crime, making these plots suitable for new family homes or purchasers seeking a development/investment opportunity with clear planning in place.
Buyers must allow for the material requirements: a private drainage system will be needed and purchasers should satisfy themselves on connection costs for services. Broadband speeds in the area are very slow and mobile signal is average — important for those working from home. Plots were previously field land, so initial groundwork and utility connections will be required before construction.
Available immediately. Pricing guidance is shown from £145,000 (Plot 2) with Plots 1 and 3 offered at £155,000 each. A viewing of the site is recommended to assess orientation, boundaries and access before commitment.
Plot for sale in East Road, Tetford, LN9 — £130,000 • 4 bed • 1 bath • 2422 ft²
Plot for sale in Main Road, Hagworthingham, Spilsby, PE23 — £130,000 • 5 bed • 3 bath • 2265 ft²
Plot for sale in Building Plot, East Road, Tetford, LN9 — £80,000 • 1 bed • 1 bath • 1958 ft²
4 bedroom detached house for sale in Foster Close, Timberland, Lincoln, Lincolnshire, LN4 — £400,000 • 4 bed • 2 bath • 1910 ft²
Land for sale in Building Plot 2, Fen Road, Stickford, Boston, Lincolnshire, PE22 8HA, PE22 — £100,000 • 1 bed • 1 bath
Land for sale in Building Plot 1, Fen Road, Stickford, Boston, Lincolnshire, PE22 8HA, PE22 — £100,000 • 1 bed • 1 bath














































































