G73 3RG - 4 bedroom semidetached house for sale in 59 Springfield Par…

View on Property Piper

4 bedroom semi-detached house for sale in 59 Springfield Park Road, Burnside, G73 3RG, G73

Summary - 59, SPRINGFIELD PARK ROAD G73 3RG

4 bed 2 bath Semi-Detached

Turn-key four-bedroom family home with large garden and huge outbuilding.
Extended Victorian semi with bay windows and period character
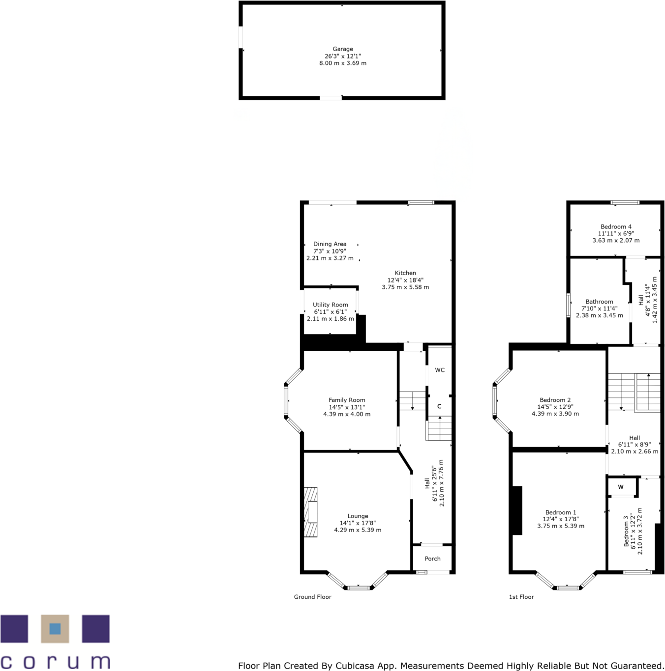
This extended Victorian semi offers spacious family living across two floors, recently renovated and ready to move into. The ground floor features two reception rooms and a superb open-plan kitchen/diner with bi-fold doors, ideal for family meals and entertaining. A useful utility room and WC add everyday convenience.

Upstairs provides four bedrooms and a large family bathroom; two bedrooms are particularly generous. The property benefits from gas central heating, double glazing and contemporary decor throughout, plus a large outbuilding to the rear for storage or workshop use. Driveway parking and landscaped, enclosed gardens give safe outdoor space for children and pets.

Practical considerations include an Energy Efficiency Rating of D and council tax noted as above average. The wider area is described as very deprived which may concern some buyers; however the location is well served by local shops, Burnside station nearby and good road links. This home suits growing families seeking a turn-key period villa with modern living spaces and significant storage/garage potential in the rear outbuilding.

Property Details

Brochure Descriptions

Image Descriptions

Floorplan Description

Rooms

Textual Property Features

Target Audience

AI Tags

Detected Visual Features

Nearest Bars And Restaurants

,,,,}

Nearest General Shops

,,}

Nearest Grocery shops

,,}

Nearest Supermarkets

,,}

Nearest Religious buildings

,,}

Nearest Medical buildings

,,,}

Nearest Airports

,}

Nearest Leisure Facilities

,,,,}

Nearest Tourist attractions

,,}

Nearest Train stations

,,,,}

Nearest Bus stations and stops

,,,,}

Nearest Hotels

,,}

Tags

Local Market Stats

Similar Properties

Meta

High Res Images

Compatible Images

Low res Images

Thumbnails

Raw Images

High Res Floorplan Images

Compatible Floorplan Images

Low res Floorplan Images

FloorplanImages Thumbnail

Raw Floorplan Images