Spacious family home with period detail and a full-width dining kitchen.
Corner plot with gardens front, side and rear
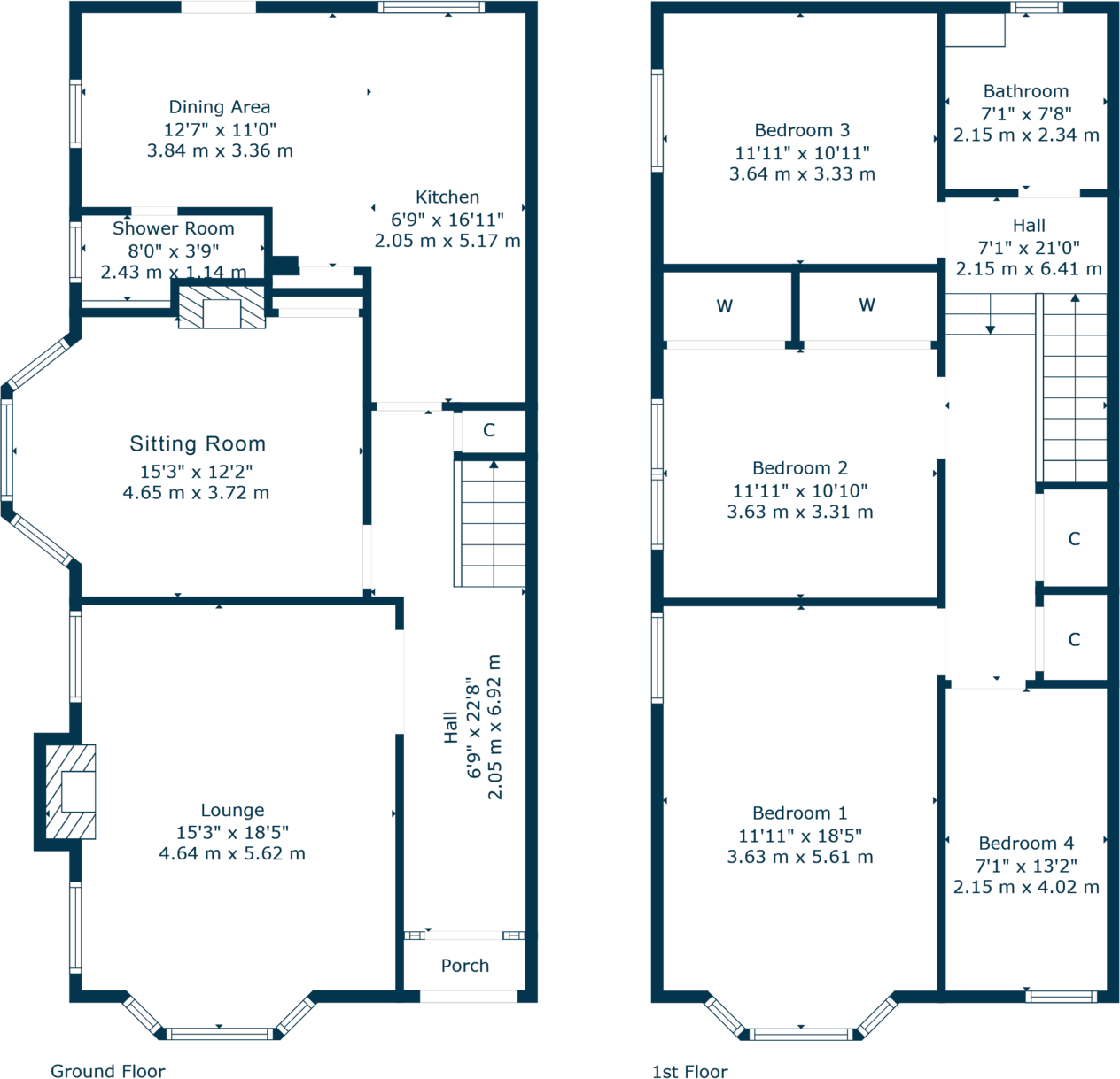
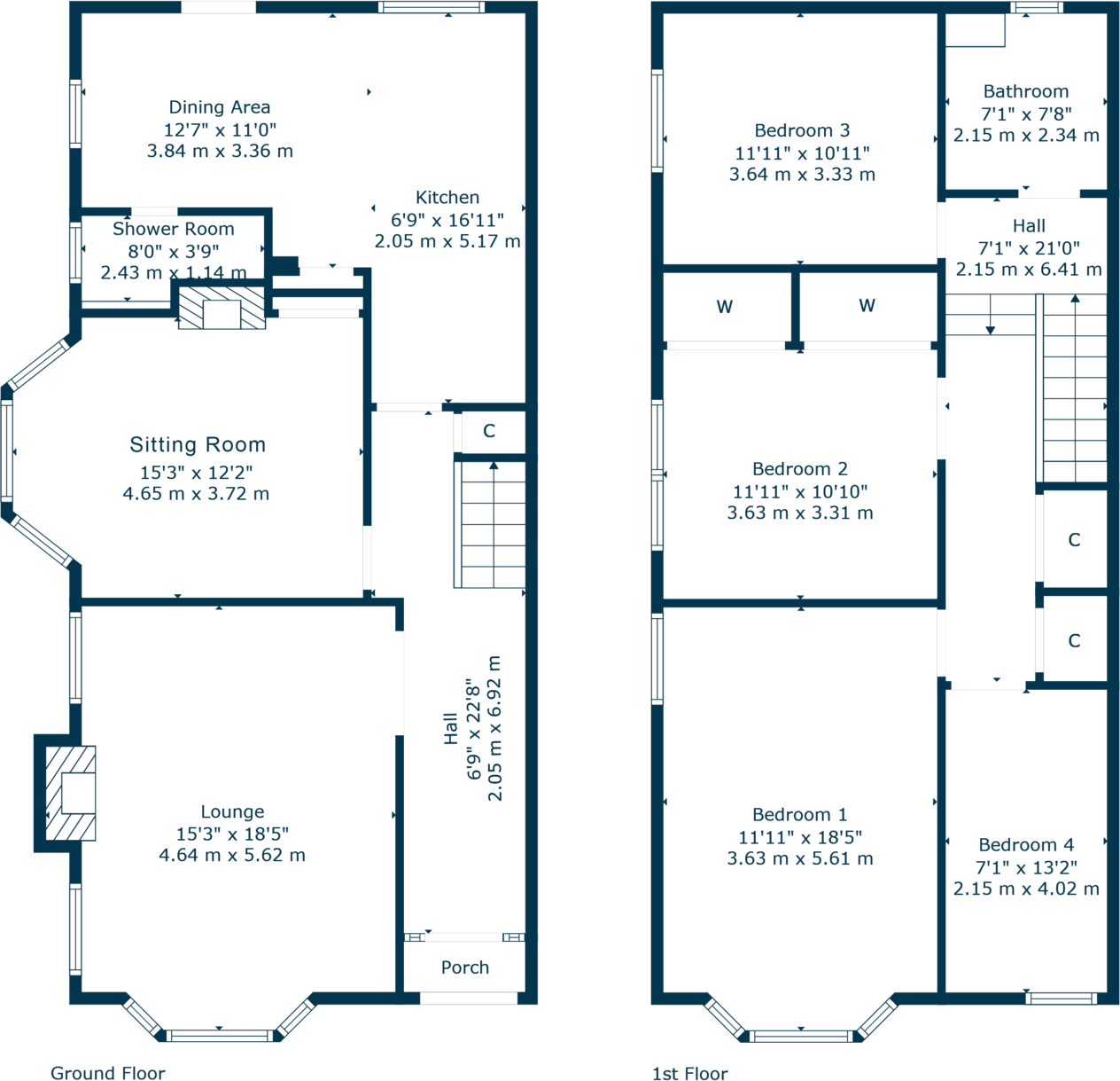
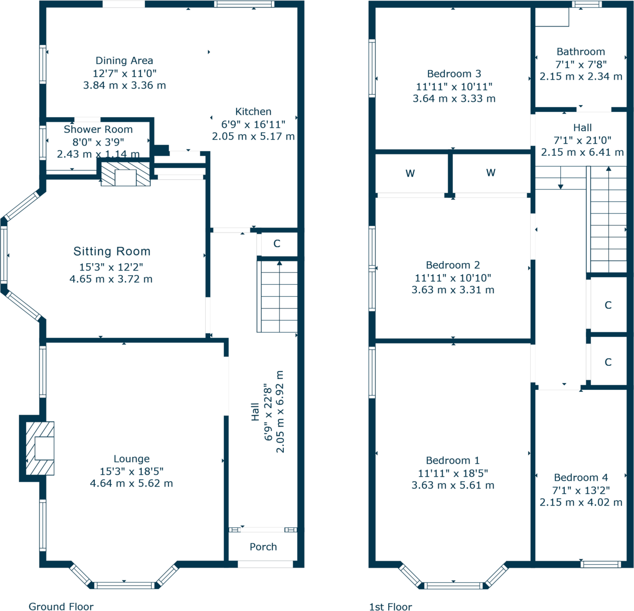
Set on a quiet Southside corner plot, this stone-built Victorian semi offers flexible family living across a generous footprint. The house has four bedrooms, two reception rooms and a full-width integrated dining kitchen that opens onto private, well-kept gardens to the front, side and rear.
Recent improvements include a new roof covering (2017), sash & case double-glazed windows with guarantee (2018) and a gas boiler fitted in 2021. The home retains period features — high ceilings, bay windows, ornate cornices and working fireplaces — while benefiting from modern conveniences and tasteful décor throughout.
Practical points for buyers: the property currently has an Energy Efficiency Rating of D and council tax is above average. The immediate area is classified as deprived despite being popular with highly qualified professionals, so buyers should weigh local socio‑economic indicators alongside strong transport links, nearby parks and thriving Shawlands/ Crossmyloof amenities.
Overall this is a substantial, well-maintained family home that will suit buyers seeking period character, roomy accommodation and a large, enclosed garden, with sensible future potential for further modernisation where desired.
4 bedroom semi-detached house for sale in 220 Titwood Road, Pollokshields, G41 4BQ, G41 — £625,000 • 4 bed • 2 bath • 2572 ft²
3 bedroom semi-detached house for sale in 109 Kenilworth Avenue, Waverley Park, G41 3RD, G41 — £460,000 • 3 bed • 2 bath • 1550 ft²
4 bedroom semi-detached house for sale in 11 Rodger Drive, Rutherglen, Glasgow, G73 — £425,000 • 4 bed • 2 bath • 1389 ft²
4 bedroom semi-detached house for sale in 5 Pentland Road, Mansewood, G43 2AR, G43 — £395,000 • 4 bed • 2 bath • 2325 ft²
4 bedroom semi-detached house for sale in 9 Thorn Drive, Bearsden, G61 4ND, G61 — £765,000 • 4 bed • 2 bath • 2024 ft²
4 bedroom semi-detached house for sale in 125 Kenilworth Avenue, Waverley Park, G41 3RD, G41 — £550,000 • 4 bed • 2 bath • 2012 ft²






































































































