Large listed Georgian building with planning approved for bungalow plus five-bedroom B&B — chain free..
Planning permission granted: 2-bed bungalow + 5-bed B&B with café
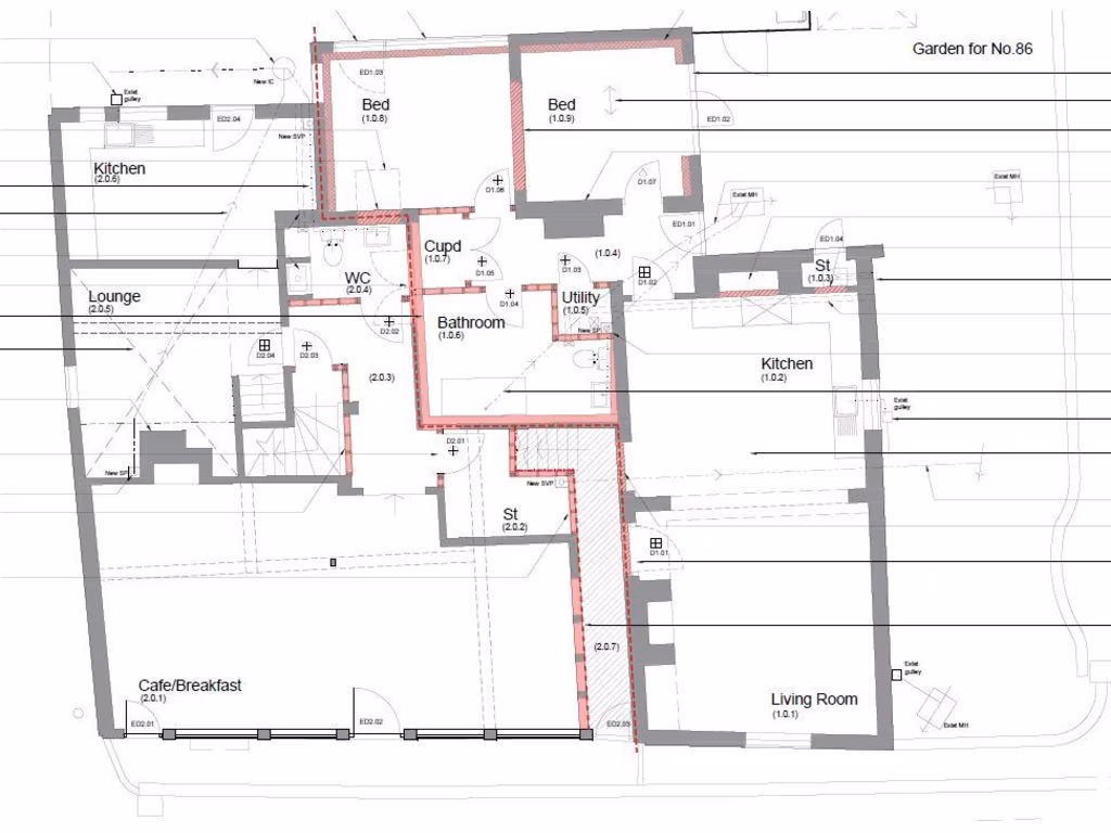
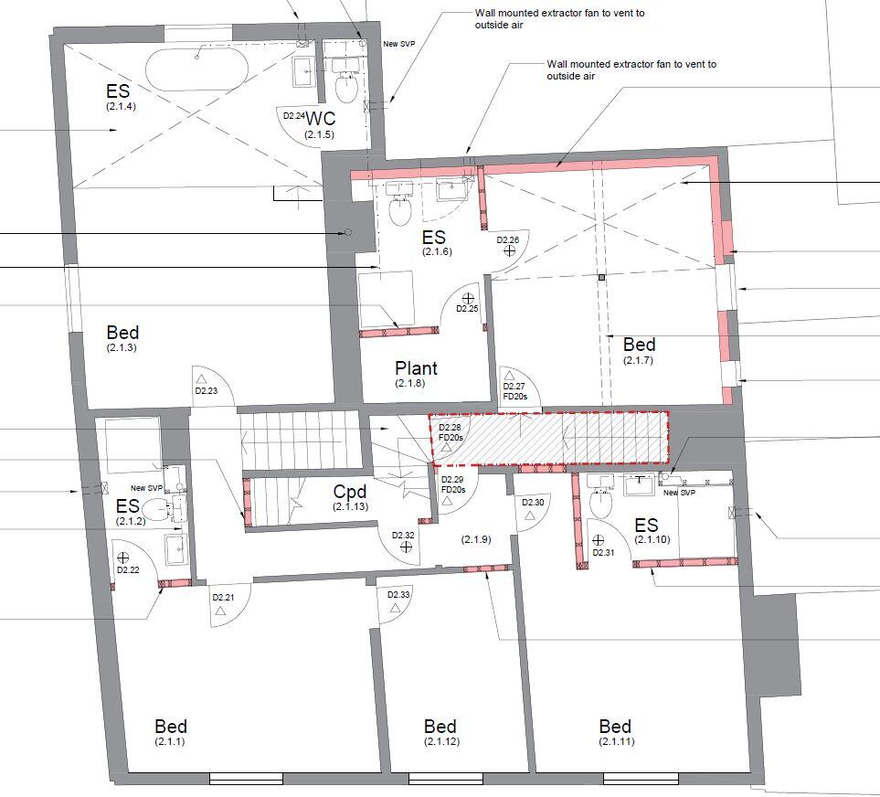
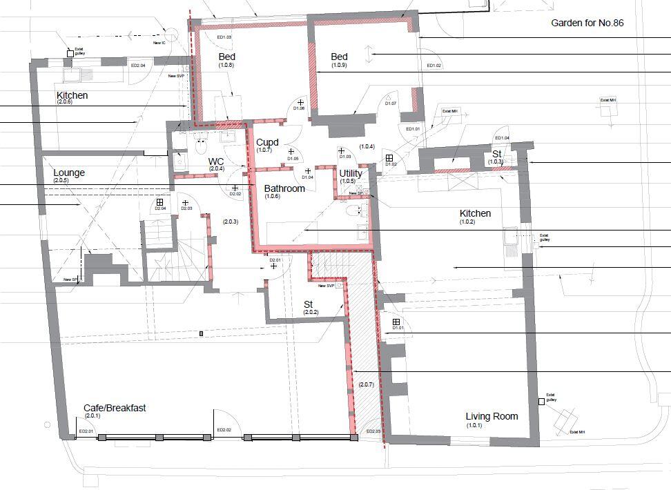
A substantial Georgian corner building in Sudbury presented as a clear investor opportunity. Recent planning permission allows division into a two‑bedroom self-contained bungalow and a five‑bedroom bed & breakfast with private lounge and café to the front, creating immediate commercial income potential in a central town location. The property is offered freehold and chain free, with off‑street parking, a timber carport/workshop and a south‑easterly walled garden.
The building retains many original features — high ceilings, sash windows, exposed floorboards and a prominent shop frontage overlooking Friars Street — offering strong character appeal for guests or occupants. The large overall footprint (approx. 3,854 sq ft) and multi‑storey layout provide flexible layouts and scope to deliver distinct residential and commercial units as per the granted consent.
Buyers should note the site is Grade II listed; that status will complicate works and require listed‑building consents. The interior requires modernization and conversion work to implement the planning, and there is currently only one bathroom recorded for the whole building. Services are connected but were not tested; an EPC is TBC. Council tax band E and the listed status are material constraints for refurbishment budgets and timescales.
This is a sizeable, character‑rich project suited to an investor or experienced developer who can manage listed‑building consent, oversee refurbishment and operate or let a boutique B&B with ancillary café. For those prepared to take on the work, the combination of central location, planning consent and existing commercial frontage offers a rare chance to create a prominent hospitality and residential income asset in Sudbury.
3 bedroom end of terrace house for sale in Sudbury, Suffolk, CO10 — £425,000 • 3 bed • 2 bath • 1587 ft²
5 bedroom detached house for sale in Sudbury, Suffolk, CO10 — £925,000 • 5 bed • 3 bath • 4427 ft²
4 bedroom semi-detached house for sale in Friars Street, Sudbury, Suffolk, CO10 — £450,000 • 4 bed • 2 bath • 1922 ft²
3 bedroom terraced house for sale in Cross Street, Sudbury, CO10 — £290,000 • 3 bed • 1 bath • 926 ft²
1 bedroom terraced house for sale in Ballingdon Street, Sudbury, Suffolk, CO10 — £165,000 • 1 bed • 1 bath • 558 ft²
4 bedroom terraced house for sale in Ballingdon Street, Sudbury, CO10 — £375,000 • 4 bed • 1 bath • 1164 ft²






































































