EH53 0FN - 4 bed spacious calderwood family home in Livingston, EH53 0…

View on Property Piper

4 bedroom detached house for sale in Off Snowdrop Path, East Calder, EH53 0FN, EH53

Summary - Off Snowdrop Path, East Calder, EH53 0FN EH53 0FN

4 bed 1 bath Detached

High-spec new build with solar, garage and bi-fold doors to garden.
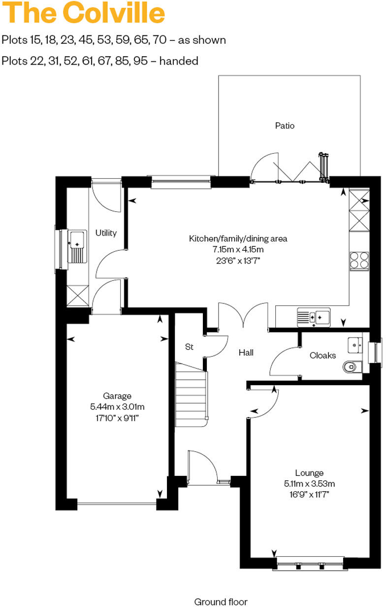
1,685 sq ft detached family home with separate study
This detached four-bedroom new-build (1,685 sq ft) offers spacious family accommodation with a separate study and flexible living zones. The ground floor’s open-plan studio-designed kitchen, family/dining room and bi-fold doors lead to a sheltered rear garden, while a separate lounge provides a quieter retreat.

Specification is a clear selling point: German studio kitchen with Siemens appliances, solar panels, EV charger, 1.7m rear fence, integral single garage, utility room and generous built-in storage. The home is backed by a 10-year NHBC warranty and short-term after-sales support.

Practical considerations are straightforward: this is a fixed-price listing, ideal for buyers who want certainty over purchase. Some local costs and community charges should be noted — council tax is described as quite expensive and management/service arrangements vary in the paperwork provided. The exact tenure is not confirmed in the supplied information.

Location is family-focused: Calderwood offers a new primary school, village square and local café close by, with Almondell Country Park and strong commuter links to Edinburgh and Glasgow. However, the wider area data flags very high deprivation — buyers should assess local services and future resale implications in light of that.

Property Details

Brochure Descriptions

Image Descriptions

Floorplan Description

Rooms

Textual Property Features

Target Audience

AI Tags

Detected Visual Features

Nearest Bars And Restaurants

,,,,}

Nearest General Shops

,,}

Nearest Grocery shops

,,}

Nearest Supermarkets

,,}

Nearest Religious buildings

,,}

Nearest Medical buildings

,,,}

Nearest Airports

}

Nearest Leisure Facilities

,,,,}

Nearest Tourist attractions

,,}

Nearest Train stations

,,,,}

Nearest Bus stations and stops

,,,,}

Nearest Hotels

,,}

Tags

Local Market Stats

Similar Properties

Meta

High Res Images

Compatible Images

Low res Images

Thumbnails

Raw Images

High Res Floorplan Images

Compatible Floorplan Images

Low res Floorplan Images

FloorplanImages Thumbnail

Raw Floorplan Images