**Standout Features:**
- **Location:** Prime Kew Road, a vibrant urban area.
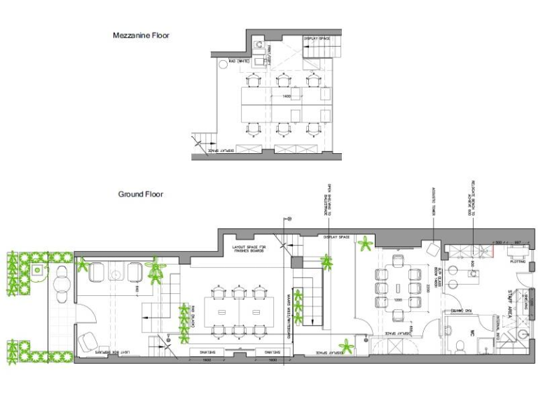
- **Space:** 1-bedroom commercial unit with a modern facade and ample natural light.
- **Size:** Large total area of 1,342 sq ft, ideal for various businesses.
- **Flexibility:** Suitable for Class E use—offices, retail, restaurants, and more.
- **Access:** Rear access from Evelyn Gardens and modern fixtures including WC and shower.
- **Community:** Surrounded by Michelin-starred restaurants and a diverse local mix.
**Potential Concerns:**
- **Crime Rate:** Above-average crime rate in the area, which should be factored in.
- **Plot Size:** Small plot size could limit outdoor space and expansion options.
### Summary Description:
Located in the bustling Kew Road area of London, this versatile commercial space presents a unique opportunity for both investors and business owners. The property features a striking modern facade on a charming traditional building, with expansive glass windows that welcome natural light into the imaginative split-level layout. Spanning 1,342 sq ft, it offers ample room to accommodate a variety of businesses, from restaurants to retail—ideal for capitalizing on the thriving local community and affluent demographic.
With planning use under Class E, the opportunities are plentiful, allowing you to tailor the space to your vision. Enjoy the convenience of nearby amenities, including quality schools and a blend of vibrant cafes and shops, while benefiting from excellent mobile and broadband connections.
While the property is in a lively urban setting, it's important to note the above-average crime rate in the area. The small plot size may also present limitations on outdoor expansions. However, this unique offering won’t last long—secure your place in this coveted location today and unleash the potential of this dynamic space!
High street retail property for sale in 86 Kew Road, Richmond, TW9 2PQ, TW9 — £750,000 • 1 bed • 1 bath • 1706 ft²
Land for sale in Royal Parade, Richmond, TW9 — £510,000 • 1 bed • 1 bath • 893 ft²
Commercial property for sale in Ham Street, Richmond, TW10 — £140,000 • 1 bed • 1 bath • 798 ft²
Commercial property for sale in 127 Sheen Lane, London, England, SW14 — £230,000 • 1 bed • 1 bath
Office for sale in 63D Sandycombe Road, Kew, Richmond, TW9 2EP, TW9 — £620,000 • 1 bed • 1 bath • 1514 ft²
9 bedroom detached house for sale in Ennerdale Road, Kew, Richmond,TW9 — £2,750,000 • 9 bed • 12 bath • 4295 ft²


































































