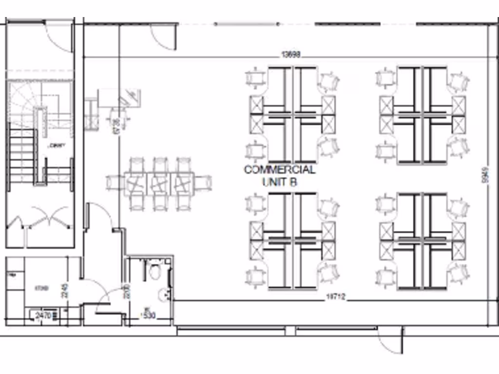
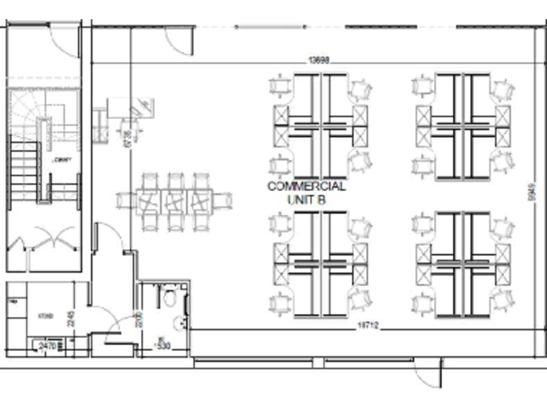
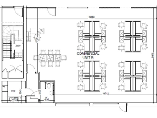
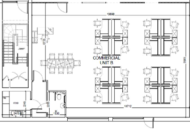
Bright, energy-efficient 1,514 sq ft freehold office in gated Kew mews, EPC A..
- 1,514 sq ft ground-floor open-plan commercial unit
- Constructed 2021; new air-conditioning and LED lighting
- EPC A (very energy efficient)
- One allocated off-street parking space
- Single WC only; may limit some occupier requirements
- High-quality fit-out: underfloor trunking, kitchen, laminate floors
- Secure gated mews location with good natural light
- Excellent transport links to Kew Gardens and A316/M3/M25
A high-spec ground-floor commercial unit in a secure gated mews, offered freehold at £505,000. Constructed in 2021 and fitted to a modern standard, the space delivers 1,514 sq ft of bright open-plan workspace with new air-conditioning, LED lighting and three-compartment underfloor trunking—ready for immediate occupation or letting.
The property benefits from an A-rated EPC, double glazing, underfloor heating and one allocated off-street parking space. Located 0.5 miles from North Sheen and Kew Gardens stations and with quick access to the A316/M3/M25, the location suits professional occupiers and investors seeking strong local connectivity and tenant demand in an affluent area.
Fit-out quality is a clear strength: laminate wood-effect floors, a well-appointed kitchen and contemporary industrial styling create flexible space for offices, a showroom or studio. The gated development and pleasant external planting add security and kerb appeal in this inner-city cosmopolitan pocket of Richmond.
Notable constraints are factual: the unit has a single WC and only one allocated parking space, which may restrict certain occupier types or require management where staff/clients exceed that provision. The layout is ground-floor and open-plan, so uses requiring multiple separate rooms or significant subdivision would need fit-out works. Tenure is freehold, which suits long-term investors or owner-occupiers.
Office for sale in 98 Kew Road, London, TW9 2PQ, TW9 — £499,000 • 1 bed • 1 bath • 1342 ft²
Land for sale in Royal Parade, Richmond, TW9 — £510,000 • 1 bed • 1 bath • 893 ft²
Office for sale in Richmond Road, Twickenham, TW1 — £550,000 • 1 bed • 1 bath • 935 ft²
High street retail property for sale in 86 Kew Road, Richmond, TW9 2PQ, TW9 — £750,000 • 1 bed • 1 bath • 1706 ft²
2 bedroom apartment for sale in Sandycombe Road, Kew, Surrey, TW9 — £650,000 • 2 bed • 2 bath • 853 ft²
Office for sale in 36B Rosedale Road, Richmond, TW9 2SX, TW9 — £1,000,000 • 1 bed • 1 bath • 1357 ft²










































