Private landscaped garden with LED lighting and porcelain patio
Open-plan living with bi-fold doors and strong indoor-outdoor flow
Bespoke kitchen, quartz worktops, high-spec Fisher & Paykel and Bosch appliances
Zoned underfloor heating throughout plus air conditioning installed
Chain free sale; Share of Freehold with a new 999-year lease
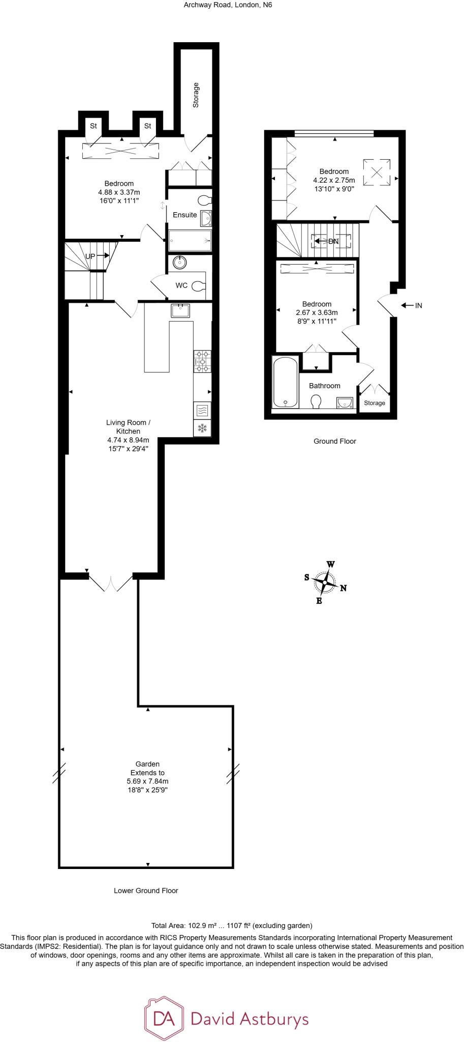
Approximately 1,107 sq ft — three bedrooms, two bathrooms
Solid brick building (pre-1900) assumed without cavity insulation
Service charge adhoc; council tax band TBC
Set within an architect-designed conversion on Archway Road, this split-level three-bedroom apartment combines contemporary fittings with classic period bones. A back-to-brick renovation has created bright open-plan living that flows through bi-fold doors to a private, landscaped garden — ideal for family relaxation or small-scale entertaining.
The kitchen is bespoke with quartz worktops and high-spec appliances. The principal bedroom includes built-in storage and an ensuite; two further bedrooms provide space for children, guests or a home office. Comfort features include zoned underfloor heating and air conditioning throughout, and the property is offered chain free with a 999-year lease and share of freehold.
Location is a strong selling point: Highgate Station is only 0.3 miles away and the home sits close to Highgate Village, Hampstead Heath and several well-regarded independent schools. The apartment’s size (approx. 1,107 sq ft) and contemporary finish make it suitable for growing families or professionals seeking easy access to green space and transport.
Buyers should note a few practical points: the building’s solid brick construction dates from before 1900 and is assumed to have no cavity insulation, which may affect long-term energy performance. Service charges are handled on an adhoc basis and council tax banding is TBC. The private garden is well-presented but modest in size.
3 bedroom flat for sale in Archway Road, London, N6 — £925,000 • 3 bed • 3 bath • 1331 ft²
3 bedroom flat for sale in Cromwell Avenue, Highgate, N6 — £1,195,000 • 3 bed • 2 bath • 930 ft²
2 bedroom flat for sale in Hornsey Lane Gardens, Highgate, N6 — £730,000 • 2 bed • 2 bath • 803 ft²
2 bedroom apartment for sale in Archway Road, Highgate, N6 — £650,000 • 2 bed • 2 bath • 974 ft²
3 bedroom apartment for sale in Bisham Gardens, Highgate Village, N6 — £1,300,000 • 3 bed • 1 bath • 1200 ft²
3 bedroom property for sale in Archway Road, London, N6 — £700,000 • 3 bed • 1 bath • 783 ft²










































































