Extended kitchen, garage and sizeable garden — ready to move into.
Two double bedrooms with fitted wardrobes in main bedroom
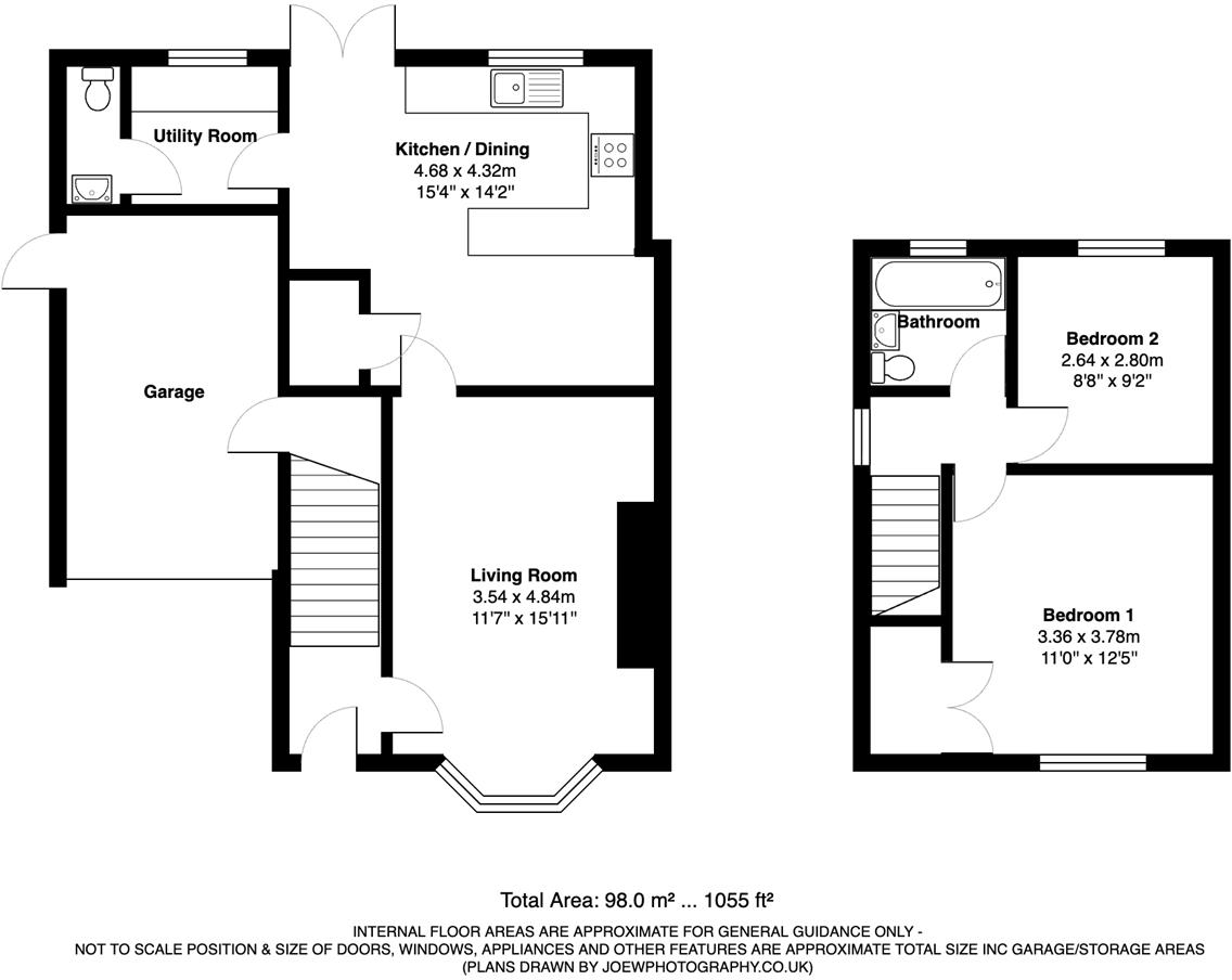
This well-presented two-bedroom semi-detached house on Homefield Road offers practical family accommodation and immediate move-in condition. The extended dining kitchen, separate utility and guest cloakroom give genuine everyday convenience, while the double-glazed windows and gas central heating provide efficient year-round comfort. The property sits on a decent plot with a generous rear garden, paved patio, and a gravel driveway that provides off-street parking for several cars plus an attached single garage for storage.
The layout suits a young family or downsizer seeking space close to Bilbrook village amenities, good schools and direct rail links to Wolverhampton and Birmingham. Room proportions feel generous for the overall footprint, and neutral décor with laminate flooring makes updating straightforward. Broadband and mobile coverage are strong and the area has low crime and an affluent profile.
Notable practical points: the house was built in the 1930s–40s with solid brick walls that likely lack cavity wall insulation, so external or internal insulation upgrades could be considered to improve energy performance. The property is about 618 sq ft with two bedrooms and a single family bathroom, so space may feel limited for larger families. The home is offered freehold at a guide price of £275,000 and is in Council Tax Band B.
3 bedroom semi-detached house for sale in Bilbrook Road, Bilbrook Codsall, Wolverhampton, WV8 — £350,000 • 3 bed • 1 bath • 948 ft²
3 bedroom semi-detached house for sale in 43 Lane Green Road, Codsall, Wolverhampton, WV8 1LR, WV8 — £375,000 • 3 bed • 2 bath • 1397 ft²
4 bedroom semi-detached house for sale in 7 Duck Lane, Codsall, Wolverhampton, WV8 1HZ, WV8 — £335,000 • 4 bed • 1 bath • 1371 ft²
5 bedroom semi-detached house for sale in Brooklyn Grove, Bilston, WV14 — £285,000 • 5 bed • 1 bath • 819 ft²
3 bedroom end of terrace house for sale in Brookfield Road, Codsall, WV8 — £265,000 • 3 bed • 1 bath • 892 ft²
3 bedroom semi-detached house for sale in Birmingham New Road, Bilston, WV14 — £300,000 • 3 bed • 1 bath • 691 ft²






















































