Village location beside nature reserve and commuter links.
Double-fronted detached stone farmhouse with lots of character
A double-fronted stone farmhouse set in the heart of Fairburn, a short walk from the nature reserve and village amenities. The house offers traditional character — exposed beams, decorative fireplaces and a spacious farmhouse-style kitchen with a multi-fuel stove — arranged over multiple levels including a basement and large utility/second kitchen.
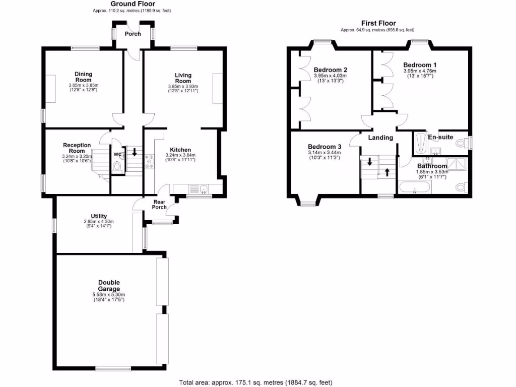
Practical benefits include a large block-paved driveway and an electric-doored double garage, elevated countryside views and easy access to the A1 for commuters. The property is sold chain-free and comes with three good-sized bedrooms, an ensuite to the principal bedroom and a family bathroom with a separate shower cubicle.
Buyers should note the EPC rating is E and the solid stone walls are assumed to be uninsulated, so energy upgrades may be needed. The house shows the honest maintenance and improvement opportunities typical of period homes — ideal for someone wanting character with scope to improve thermal efficiency and modernise where desired.
This is a rare, versatile village home for a family seeking country walks and excellent primary schooling nearby, or for buyers wanting a character-filled property with parking, garage and commuter links.
4 bedroom detached house for sale in Manor Court, Fairburn, Knottingley, North Yorkshire, WF11 — £415,000 • 4 bed • 1 bath • 1408 ft²
4 bedroom detached house for sale in Manor Court, Fairburn, Knottingley, WF11 9NY, WF11 — £425,000 • 4 bed • 2 bath • 1215 ft²
4 bedroom detached house for sale in Hillcrest, Silver Street, Fairburn, Knottingley, North Yorkshire, WF11 — £750,000 • 4 bed • 3 bath • 3294 ft²
4 bedroom detached house for sale in Beckfield Lane, Knottingley, WF11 9JP, WF11 — £475,000 • 4 bed • 2 bath • 1719 ft²
3 bedroom semi-detached house for sale in Top House Farm Mews, Knottingley, West Yorkshire, WF11 — £230,000 • 3 bed • 1 bath • 1032 ft²
4 bedroom detached house for sale in The Green, Sharlston Common, Wakefield, WF4 — £650,000 • 4 bed • 2 bath • 1206 ft²






































































































