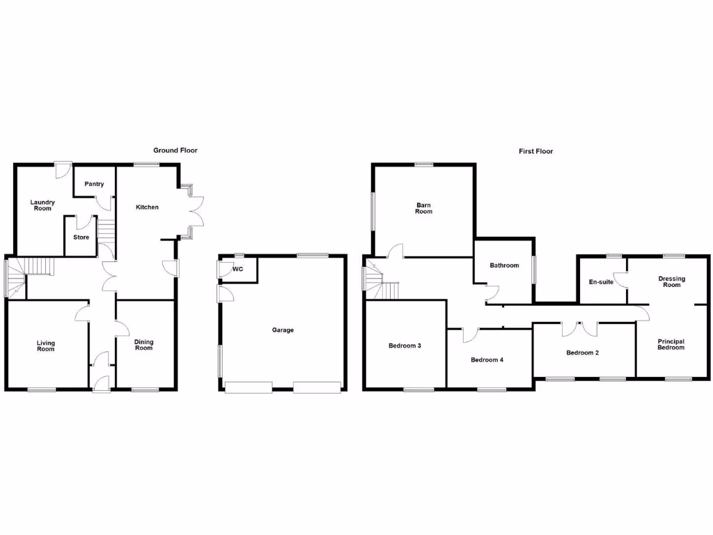
Grade II listed four-bedroom country house on a huge plot with barn room and double garage..
- Grade II listed period detached home facing the village green
- Four/five bedrooms; principal with dressing room and en suite
- Atmospheric barn room with vaulted beams and exposed stone
- Large farmhouse kitchen with double doors to stone patio
- Huge mature plot, double garage, sweeping driveway and turning area
- EPC D55; slow broadband; council tax band F (expensive)
- Chain free; listed status will restrict alterations and complicate works
- Some period fireplaces not currently in use; may need specialist work
A distinguished period detached home set on a very large plot facing the village green in a sought-after rural enclave. The house retains extensive character: exposed beams, stone and brick walls, mullioned windows and several feature fireplaces, arranged over substantial reception spaces including a vaulted barn room that creates dramatic family living.
The principal bedroom includes a dressing room and en suite; three further double bedrooms and a large family bathroom complete the first floor. A farmhouse-style kitchen with double doors opens onto a sheltered stone patio and lawned gardens. Practical spaces include a generous laundry/boot room, walk-in pantry, double garage and broad driveway with turning area.
Notable positives include double glazing (mostly post-2002), mains gas central heating, low local crime and excellent mobile signal. The property is chain-free and comes with a virtual tour available.
Important considerations: the house is Grade II listed which will restrict permitted alterations and may complicate repairs. The EPC is D55 and broadband speeds are reported slow. Council tax is in a high band. Some period features (open fireplaces) are not currently in use and may require specialist maintenance or upgrade for modern use.
5 bedroom detached house for sale in Hill Top Farm, The Green, Sharlston Common, Wakefield, West Yorkshire, WF4 — £799,995 • 5 bed • 3 bath • 3111 ft²
5 bedroom detached house for sale in Hall Lane, Chapelthorpe, Wakefield, West Yorkshire, WF4 — £760,000 • 5 bed • 2 bath • 1809 ft²
5 bedroom detached house for sale in The Old Vicarage, Howroyd Lane, Whitley, Dewsbury, West Yorkshire, WF12 — £1,350,000 • 5 bed • 3 bath • 5102 ft²
4 bedroom detached house for sale in Albion Road, Thornhill Edge, Dewsbury, WF12 — £380,000 • 4 bed • 2 bath • 2067 ft²
4 bedroom semi-detached house for sale in Park View Farm, Botany Lane, Lepton, HD8 — £625,000 • 4 bed • 2 bath • 1216 ft²
3 bedroom farm house for sale in Bedford Farm Court, Crofton, Wakefield, WF4 — £425,000 • 3 bed • 2 bath • 1191 ft²














































































