**Standout Features:**
- Stunning elevated views of Pwllheli harbor and coastline
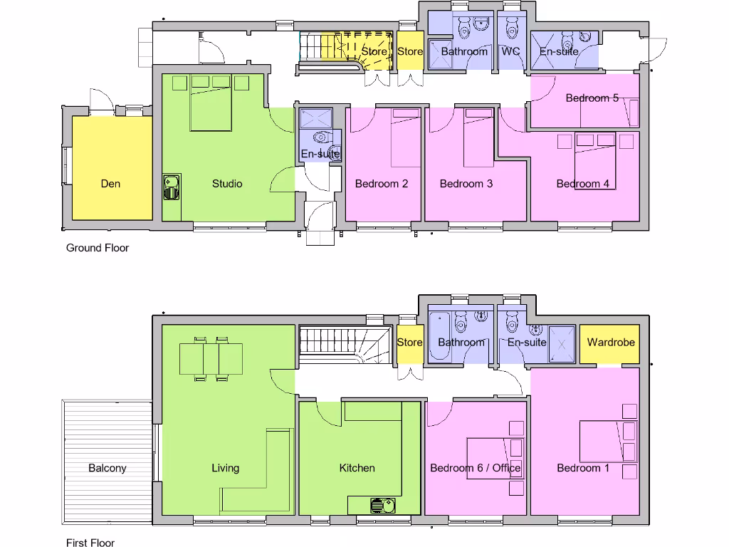
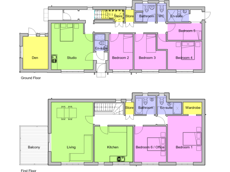
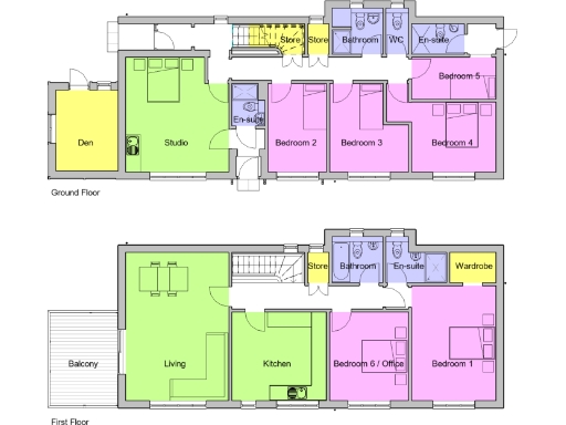
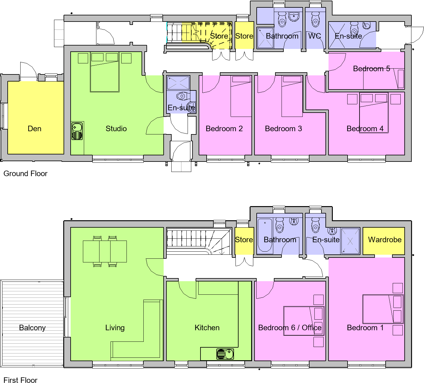
- Unique 6-bedroom, 5-bathroom detached property
- Versatile layout with potential for guest accommodation or a studio apartment
- Planning permission granted for balcony enlargement and workshop construction
- Spacious layout with 12 rooms and contemporary design
- Off-street parking for up to four cars
**Summary:**
Discover "Llawendy," a captivating 6-bedroom family home located just a short walk from Pwllheli’s town center. Set in a sought-after area with breathtaking views of the harbor and coastline, this modern property boasts a unique mix of living spaces, including potential guest accommodations with private entrances. The versatile design allows for easy transformation, while granted planning permission until December 2026 opens up further opportunities to expand and enhance your living experience with a new balcony and workshop.
The property features a spacious layout with a total of 1,588 square feet, blending comfort with the potential for customization. Enjoy gas central heating and double-glazing throughout, ensuring a cozy environment. While the area is noted for high crime rates and moderate deprivation, it offers excellent mobile signal and fast broadband, catering to today’s connectivity needs.
With off-street parking and a large plot size, Llawendy is perfect for families seeking both space and a peaceful ambiance. This gem won't last long in the market—envision creating joyful memories here and exploring the possibilities that await!
6 bedroom detached house for sale in Lleyn Street, Pwllheli, Gwynedd, LL53 — £365,000 • 6 bed • 3 bath • 1023 ft²
3 bedroom town house for sale in Lleyn Street, Pwllheli, LL53 — £289,000 • 3 bed • 3 bath • 1810 ft²
4 bedroom detached house for sale in Yr Hen Lys, Pwllheli, Gwynedd, LL53 — £270,000 • 4 bed • 3 bath • 1461 ft²
2 bedroom terraced house for sale in Brookfield Terrace, Pwllheli, Gwynedd, LL53 — £189,995 • 2 bed • 1 bath • 1058 ft²
2 bedroom terraced house for sale in Glyn Y Mor, Llanbedrog, Gwynedd, LL53 — £240,000 • 2 bed • 1 bath • 756 ft²
4 bedroom terraced house for sale in Victoria Parade, Pwllheli, Gwynedd, LL53 — £325,000 • 4 bed • 3 bath • 2203 ft²






























































