**Standout Features:**
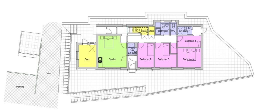
- Large detached family home with 6 bedrooms and 3 bathrooms
- Stunning views of Pwllheli Harbour and coastline
- Self-contained studio apartment offering flexibility for guests or rental income
- Modernized throughout with open plan living and dining space
- Planning permission to extend the balcony and construct a workshop (valid until 07/12/2026)
- Ample off-street parking and beautifully paved patio garden
**Potential Concerns:**
- High local crime rate
- Expensive council tax
- Property built with cavity walls but lacks insulation (assumed)
Welcome to "Llawendy," your future joyful home in the heart of Pwllheli. This spacious detached property offers an incredible 6 bedrooms—a perfect setup for a growing family or potentially lucrative rental space. Every inch reflects modern renovations, from the airy open-plan living and dining area that spills onto a balcony with breathtaking coastal views, to the fully equipped kitchen ideal for entertaining. The self-contained studio presents endless possibilities, making it a versatile addition amid the tranquil surroundings.
Take advantage of the generous outdoor patio garden, providing a private oasis for relaxation or gatherings. The off-street parking offers convenience for family and friends. With planning permission in place for future enhancements, including an extended balcony and workshop, this property is ripe for personalization. However, do keep in mind the high local crime rate and expensive council tax.
This property stands as an exclusive opportunity for families seeking their dream home or investors interested in high rental potential. Act now to secure your slice of paradise—properties with such remarkable views and versatility do not stay on the market long!
6 bedroom detached house for sale in Lleyn Street, Pwllheli, LL53 — £365,000 • 6 bed • 5 bath • 1588 ft²
4 bedroom detached house for sale in Yr Hen Lys, Pwllheli, Gwynedd, LL53 — £270,000 • 4 bed • 3 bath • 1461 ft²
6 bedroom detached house for sale in Garndolbenmaen, Gwynedd, LL51 — £365,000 • 6 bed • 4 bath • 3028 ft²
2 bedroom terraced house for sale in Brookfield Terrace, Pwllheli, Gwynedd, LL53 — £189,995 • 2 bed • 1 bath • 1058 ft²
4 bedroom terraced house for sale in Victoria Parade, Pwllheli, Gwynedd, LL53 — £325,000 • 4 bed • 3 bath • 2203 ft²
2 bedroom terraced house for sale in Glyn Y Mor, Llanbedrog, Gwynedd, LL53 — £240,000 • 2 bed • 1 bath • 756 ft²






















































































































