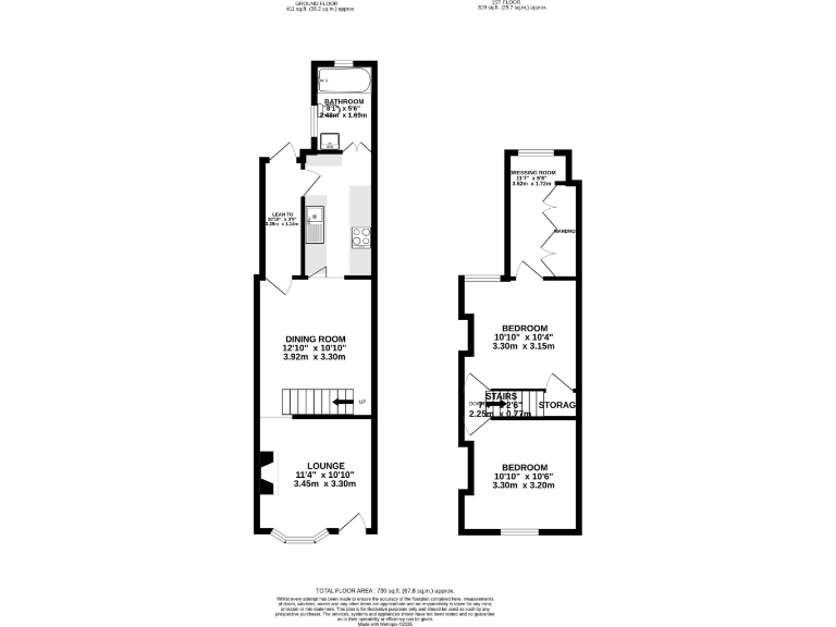
Period charm with recent updates — ideal for commuters and small families.
Two double bedrooms plus dressing room/nursery
Separate lounge with bay window and feature fireplace
Dining room leading to kitchen, useful family layout
Modern bathroom fitted 2023; redecorated throughout
Full rewire completed in 2021 (reduced electrical work risk)
South‑west facing rear garden with patio, lawn and shed
Small plot and average internal footprint for this terraced house
Solid brick walls likely uninsulated — potential energy improvements
Set on London Colney’s historic High Street, this mid-terrace period home blends original character with recent practical updates. The bay-fronted lounge with feature fireplace and separate dining room give classic proportions, while a modern bathroom (fitted 2023) and a full rewire in 2021 reduce short-term maintenance needs. The house is decorated throughout and ready to move into, ideal for commuters and small families.
Two double bedrooms plus an extra dressing room or nursery provide flexible accommodation for a growing family or for home working. The south‑west facing rear garden is a pleasant, sunlit retreat with patio and lawn, timber shed and rear access — a useful outdoor space despite the modest plot.
Built between the 1930s–1940s with solid brick walls, the home has scope for further improvement and energy upgrades (walls assumed uninsulated). There is just one bathroom and the overall footprint is average for this type of terrace, so buyers expecting larger rooms or multiple bathrooms should note the modest proportions.
Positioned within walking distance of shops, pubs and good primary and secondary schools, and only a few miles from St Albans mainline station, this property suits first‑time buyers or young families seeking a characterful, well‑located home with room to personalise and improve over time.
2 bedroom terraced house for sale in High Street, London Colney, St. Albans, Hertfordshire, AL2 — £425,000 • 2 bed • 1 bath • 851 ft²
2 bedroom terraced house for sale in Branch Road, Park Street, St. Albans, Hertfordshire, AL2 — £400,000 • 2 bed • 1 bath • 673 ft²
5 bedroom semi-detached house for sale in Carlisle Avenue, St. Albans, Hertfordshire, AL3 — £1,300,000 • 5 bed • 3 bath • 1666 ft²
3 bedroom terraced house for sale in Cell Barnes Lane, St. Albans, Hertfordshire, AL1 — £550,000 • 3 bed • 1 bath • 1000 ft²
2 bedroom end of terrace house for sale in Seaton Road, London Colney, St. Albans, AL2 — £400,000 • 2 bed • 1 bath • 668 ft²
2 bedroom terraced house for sale in Temperance Street, St. Albans, Hertfordshire, AL3 — £525,000 • 2 bed • 1 bath • 650 ft²


















































