**Standout Features:**
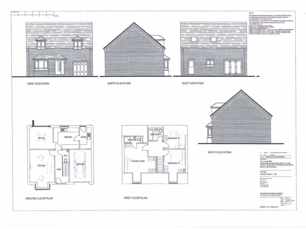
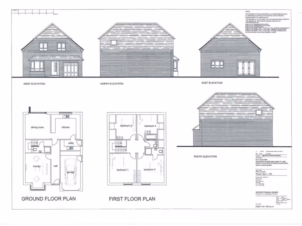
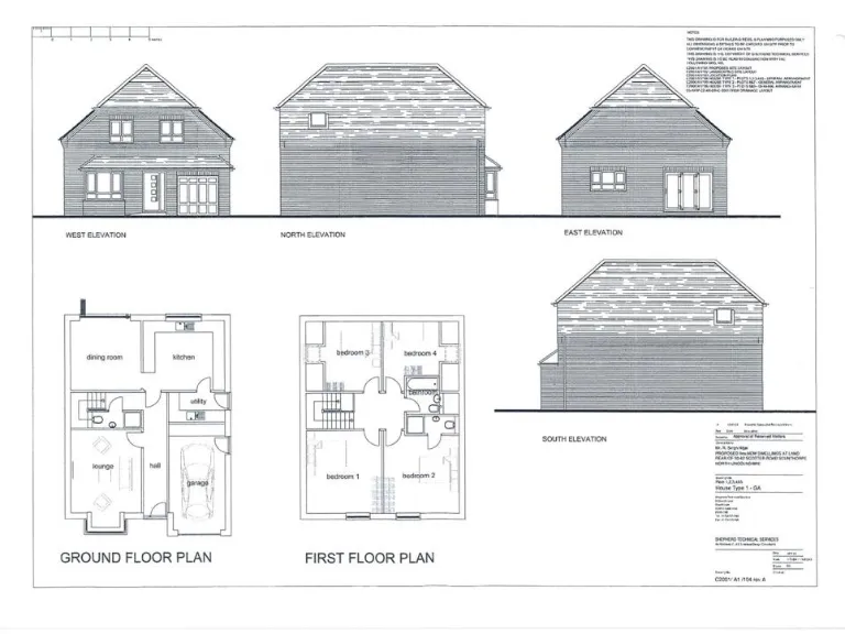
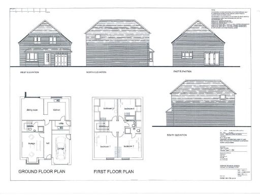
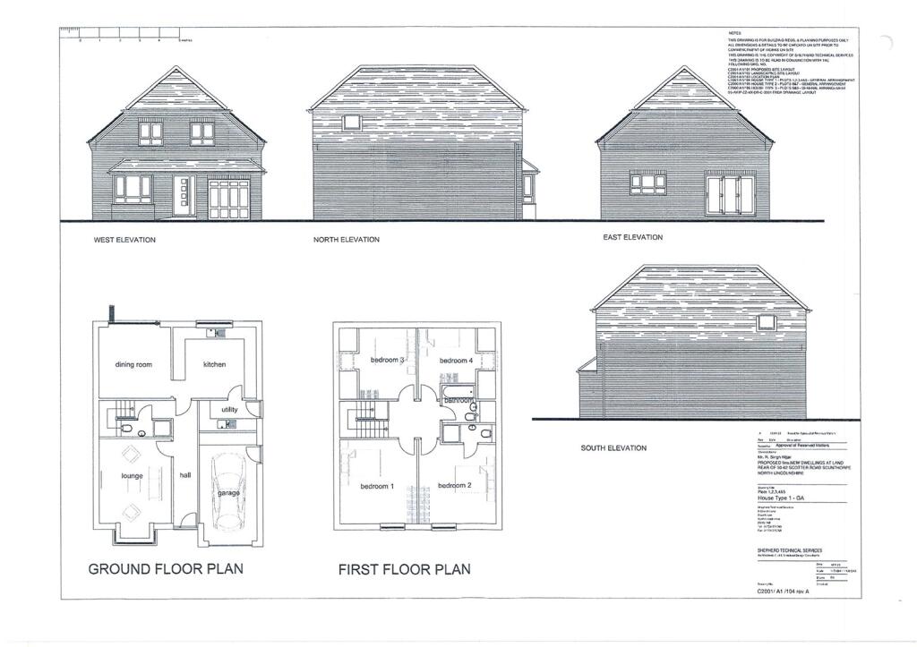
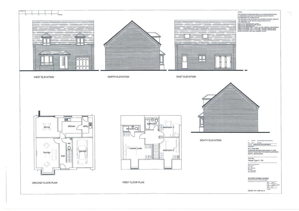
- **Outline Planning Permission** for 9 detached dormer bungalows (3 and 4 beds)
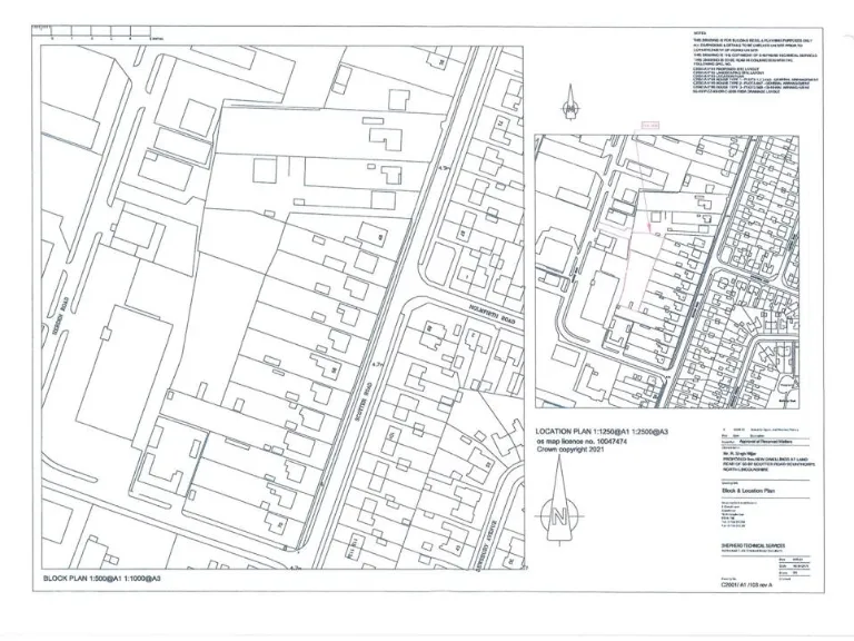
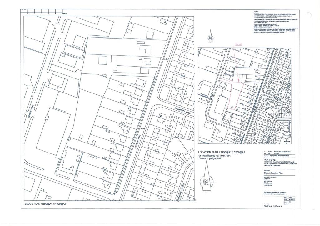
- **Very large plot** of approximately 0.75 acres
- **Prime location** on the north-west outskirts of town near Berkeley Estate
- Low crime rate and fast broadband speeds
- Ideal for local builders or developers seeking a promising investment
**Notable Concerns:**
- Site currently appears neglected and unkempt
- Potential redevelopment may require significant initial clearing or cleanup
Discover an outstanding development opportunity located in a sought-after neighbourhood just outside of town. This expansive plot grants **Outline Planning Permission for the construction of 9 stylish, detached dormer bungalows**—a project likely to attract considerable buyer interest. Priced at **£475,000**, the site spans approximately **0.75 acres**, presenting an ideal canvas for builders looking to capitalize on the area's appeal and amenities, including schools rated "Good" and outstanding leisure facilities.
While the site currently needs attention, its low crime rate and excellent mobile and broadband connectivity make it an attractive long-term investment in a growing community. Take advantage of this rare chance to convert a neglected area into a desirable residential development, and secure your future in this vibrant locale. Contact us today to arrange a viewing and start planning your next project; opportunities like this don't last long!
Parking for sale in South View Avenue, Scunthorpe, North Lincolnshire, DN17 — £500,000 • 1 bed • 1 bath
Plot for sale in Station Road, Hibaldstow, Brigg, DN20 — £395,000 • 1 bed • 1 bath
Land for sale in Development Land, Off Lea Road, Gainsborough, DN21 — £450,000 • 1 bed • 1 bath
Land for sale in Habrough Road, Immingham, North East Lincs, DN40 — £400,000 • 1 bed • 1 bath
Plot for sale in Eastoft Road, Crowle, Lincolnshire, DN17 — £360,000 • 1 bed • 1 bath
Land for sale in West Street, West Butterwick, DN17 — £600,000 • 1 bed • 1 bath






































