**Standout Features:**
- Individual plot of over 2.6 acres with planning permission for a large detached dwelling (3,600 sq ft).
- Located in a beautiful riverside setting with ample space for development.
- Close proximity to walking and cycling trails, enhancing outdoor lifestyle.
- Available additional land (6.84 acres) for an extra £100,000.
**Potential Concerns:**
- Presence of Japanese Knotweed, though treated.
- CIL charge of £40,616.04 may apply.
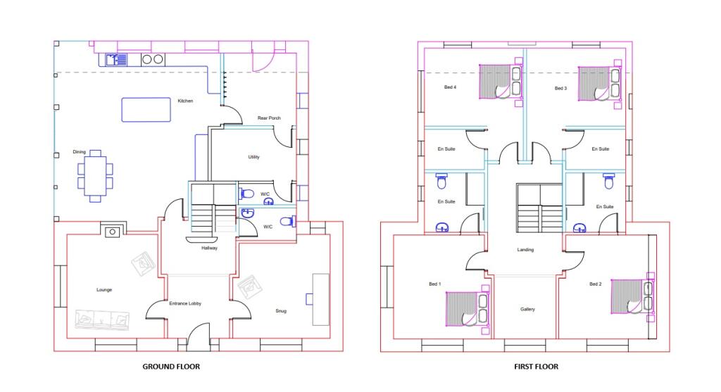
Nestled in the enchanting Pentewan Valley, this expansive building plot in Polgooth offers a unique opportunity to create your dream home. Spanning over 2.6 acres, the site comes with planning permission for a sizable detached residence, enhancing its appeal to both families and investors. With a generous 3,600 sq ft proposed layout, future owners can enjoy luxurious living spaces, including four en-suite bedrooms, a spacious open-plan kitchen dining area, and inviting lounges—all set within a tranquil countryside backdrop.
The picturesque location not only offers lush views of the surrounding landscape but also easy access to trails for walking, riding, and cycling, making it an ideal haven for outdoor enthusiasts. Local amenities like a convenience store and public house are just a stone's throw away, ensuring a convenient lifestyle in this low-crime area.
In addition, potential buyers have the option to acquire more land to expand their estate. While the plot has been prepped for building, interested parties should note the existing Japanese Knotweed, which has been treated, and the applicability of a CIL charge. With the serene beauty and growth potential this plot promises, it truly embodies an exceptional investment opportunity not to be missed. Act quickly to secure your slice of countryside paradise!
Plot for sale in Polgooth, PL26 — £300,000 • 1 bed • 1 bath
Plot for sale in Polgooth, St Austell, PL26 — £200,000 • 1 bed • 1 bath
Plot for sale in 40 Trenance Road, St. Austell, PL25 — £225,000 • 1 bed • 1 bath
Land for sale in Bodmin Road, St. Austell, PL25 — £130,000 • 1 bed • 1 bath
Plot for sale in Kestle Farm, Ladock, TR2 — £325,000 • 1 bed • 1 bath • 1850 ft²
Plot for sale in Portloe, The Roseland Peninsula, TR2 — £410,000 • 4 bed • 3 bath • 1603 ft²






























