Quiet leafy street near top local schools, ready to modernise and personalise.
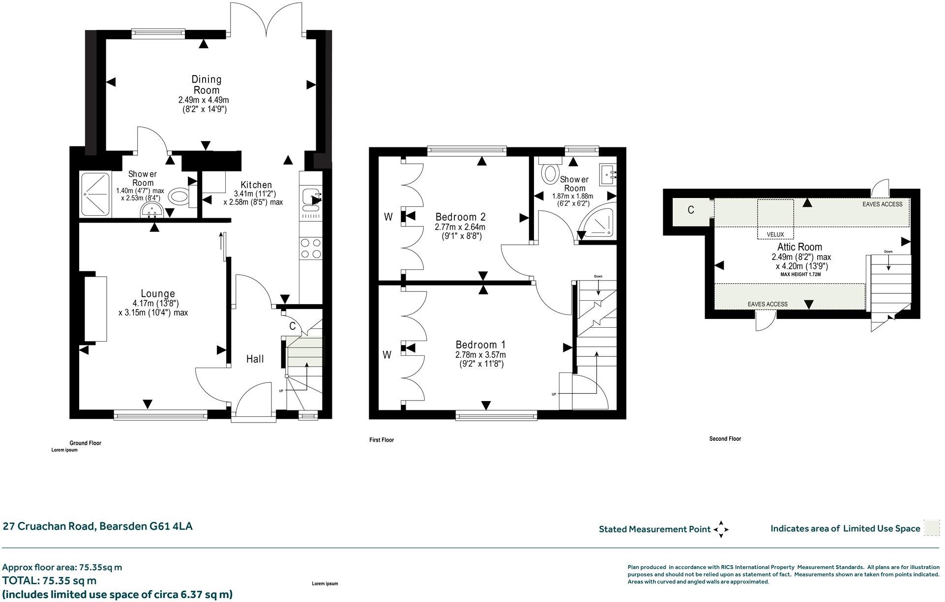
Extended two-bedroom terraced villa with attic room for extra space
South-facing rear garden with good outdoor space
Located in Bonnaughton with leafy views and quiet street setting
Close to Baljaffray Primary and Bearsden Academy catchments
Gas central heating and PVCu double glazing already installed
Requires internal modernisation and cosmetic refurbishment
Area shows relative deprivation — consider longer-term value factors
Freehold tenure, EPC Band C, Council Tax Band D
This extended two-bedroom terraced villa in Bonnaughton offers a practical family home with clear potential. The property sits on a quiet, leafy street with open green views, south-facing rear garden and easy access to Baljaffray Primary and Bearsden Academy — strong draws for families.
Internally the layout is flexible: lounge, dining room, kitchen, two double bedrooms, two shower rooms and a floored, lined attic room suitable as an ancillary bedroom or home office. Gas central heating and PVCu double glazing are already in place, reducing immediate outlay on basic systems.
The house does show signs of age and would benefit from modernization in areas to fully realise its value — cosmetic updating and some interior refurbishment are likely required. The wider local area is described as comfortable suburbia but the immediate statistical area indicates relative deprivation, which buyers should factor into long-term value expectations.
For buyers seeking a family home near good schools or an investor wanting a property with rental demand and uplift potential, this villa presents a straightforward purchase with scope to improve and personalise.
2 bedroom terraced house for sale in 10 Dornoch Road, Bearsden, G61 1LW, G61 — £210,000 • 2 bed • 1 bath • 829 ft²
3 bedroom semi-detached house for sale in Iain Road, Bearsden, G61 — £335,000 • 3 bed • 2 bath • 1142 ft²
3 bedroom semi-detached house for sale in 20 Tinto Road, Bearsden, G61 4EG, G61 — £270,000 • 3 bed • 1 bath • 926 ft²
4 bedroom detached house for sale in 14 Lubnaig Gardens, Bearsden, G61 4QX, G61 — £360,000 • 4 bed • 1 bath • 1044 ft²
2 bedroom semi-detached house for sale in Forth Road, Bearsden, G61 — £250,000 • 2 bed • 1 bath • 737 ft²
4 bedroom detached house for sale in 6 Kilpatrick Drive, Bearsden, G61 4RH, G61 — £395,000 • 4 bed • 3 bath • 1431 ft²






























































































