Affordable family home with garden, good transport links and clear renovation potential..
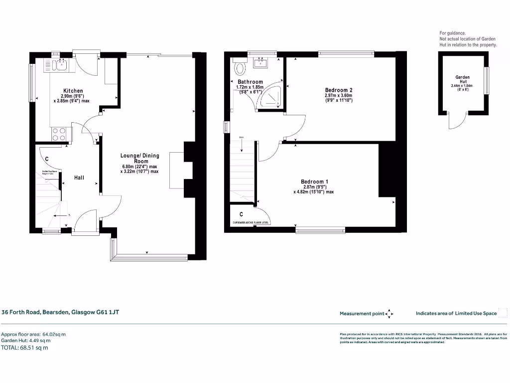
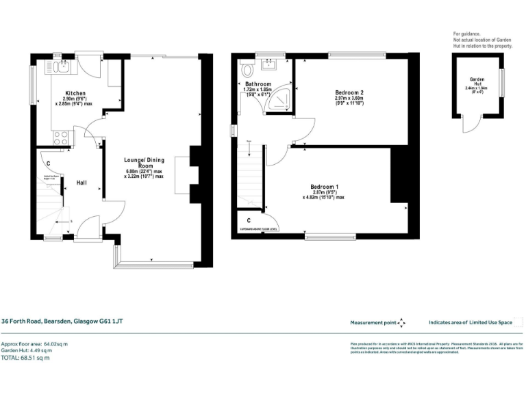
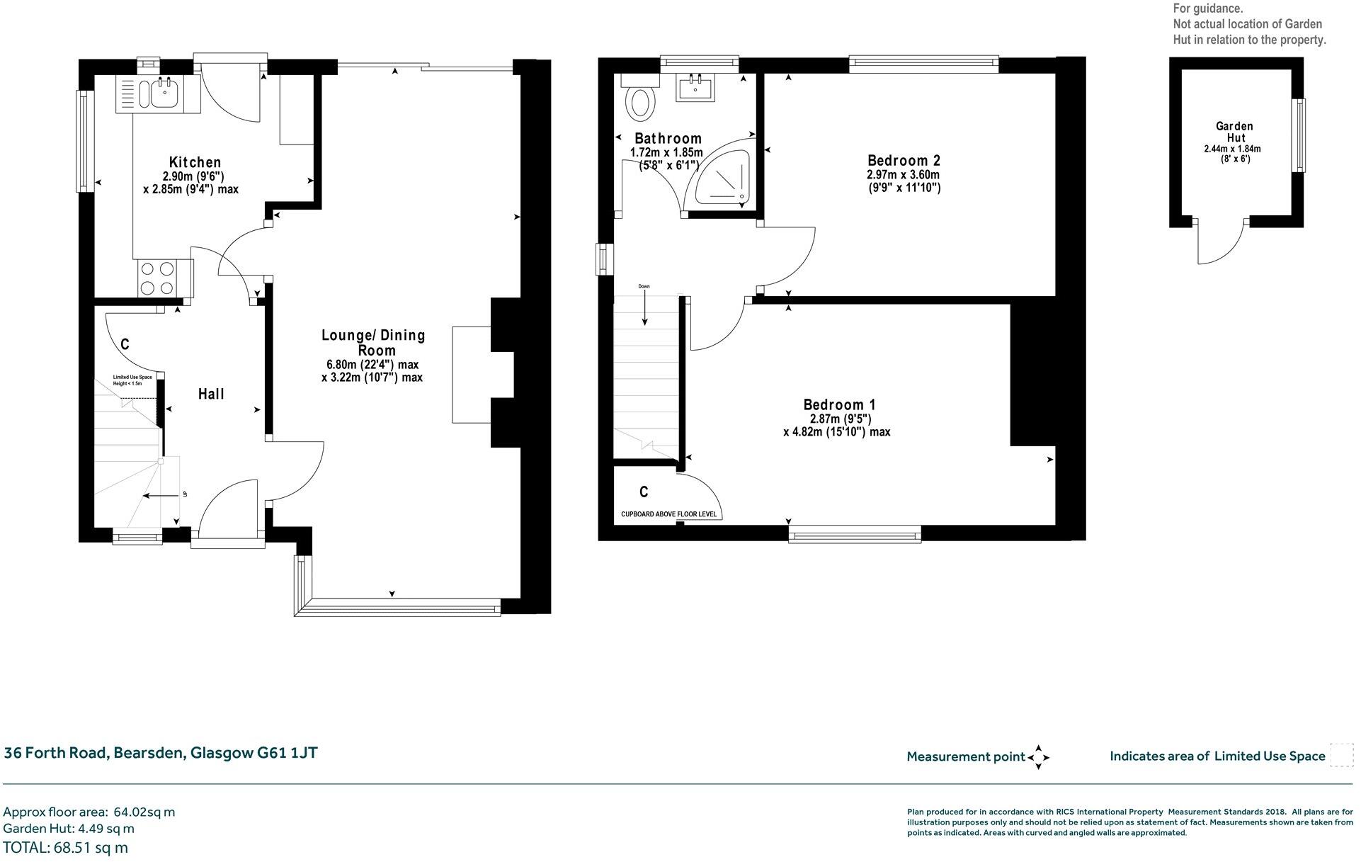
- Two double bedrooms and upstairs shower room
- Open-plan lounge/diner with French doors to garden
- Driveway parking for up to three cars
- Front and rear gardens, attic access for storage
- Double glazing and gas central heating installed
- Pebble-dash exterior shows wear; cosmetic updating needed
- Garage damp reported; garage/parking may need repair
- EPC Band D, Council Tax Band D; area shows high deprivation
This two-bedroom semi-detached villa sits in Bearsden’s Stonedyke district, offering a practical family layout across two storeys. The ground floor has an open-plan lounge/dining room with French doors onto the rear garden, a fitted kitchen with gas hob and double oven, and useful under-stair storage. Upstairs are two double bedrooms and a shower room; there is also a hatch to the attic for extra storage.
Outside, the property has front and rear gardens and a driveway with space for up to three cars. Double glazing and gas central heating are already installed. The house presents clear renovation potential — cosmetic updating and some remedial work are needed to refresh the pebble-dash exterior and address damp reported around the garage area.
Location is a key strength: Colquhoun Park, nearby primary schooling and regular rail links from Westerton station place the house within easy reach of Glasgow’s West End and city centre. Bearsden Cross and local amenities are a short drive away. EPC and council tax are both Band D.
This home will suit buyers looking for an affordable entry into Bearsden or an investor seeking a renovation project with parking and outdoor space. Be upfront about the upkeep: external wear, garage damp and general updating are realistic costs to factor into any offer.
3 bedroom semi-detached house for sale in 10 Falloch Road, Bearsden, G61 1LH, G61 — £235,000 • 3 bed • 1 bath • 926 ft²
2 bedroom semi-detached house for sale in Scott Drive, Bearsden, G61 — £195,000 • 2 bed • 2 bath • 947 ft²
3 bedroom semi-detached house for sale in 32 St. Andrews Drive, Bearsden, G61 4NW, G61 — £275,000 • 3 bed • 2 bath • 721 ft²
2 bedroom house for sale in Deveron Road, Bearsden, G61 — £145,000 • 2 bed • 1 bath • 621 ft²
3 bedroom semi-detached house for sale in 16 Allander Road, Bearsden, G61 1LT, G61 — £265,000 • 3 bed • 1 bath • 904 ft²
5 bedroom semi-detached house for sale in 21 Allander Road, Bearsden, G61 1LT, G61 — £385,000 • 5 bed • 3 bath • 1679 ft²






















































































