Rare listed barn on 0.9 acres — cash buyers only, major renovation required.
Grade II listed barn — conversion potential, but restrictions apply
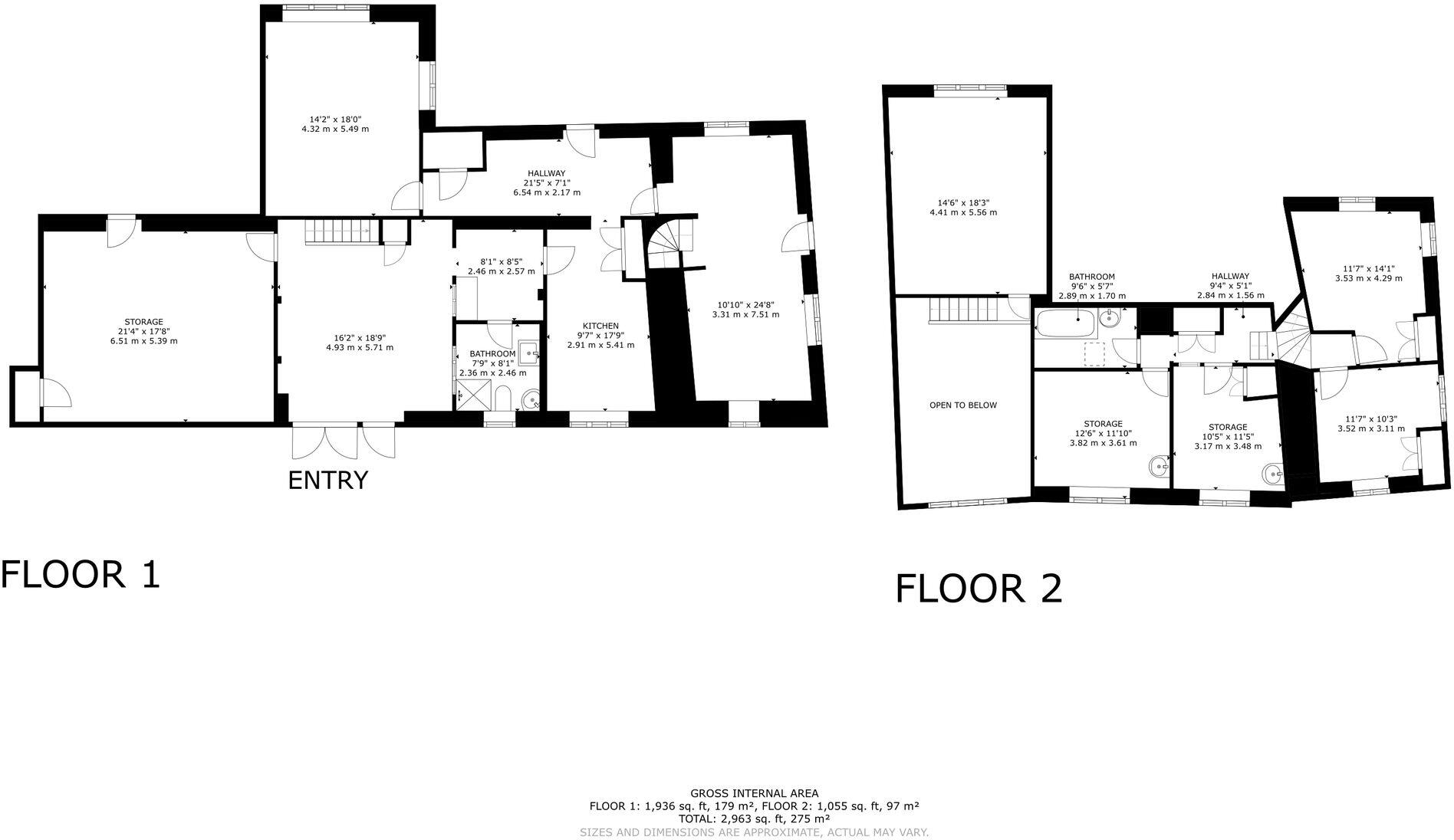
A rare Grade II listed barn on the edge of Hailey, offered as a substantial conversion project on about 0.9 acres. The site comprises a recently refurbished 2-bedroom cottage annexe and a larger 4-bedroom barn that retains character features such as exposed beams and vaulted ceilings. The cottage is habitable; the barn requires significant renovation to reach its potential.
This freehold property is best suited to cash buyers familiar with historic conversions. Listed status will constrain alterations and likely add cost and timescale; any conversion will require listed-building consent and specialist building work. The barn’s sizeable footprint (approx. 3,694 sq ft and about 21 rooms overall) and the very large, private plot present strong scope for creating a distinctive family home or a high-value dwelling split, subject to permissions.
Practical positives include off-street parking, hardstanding to the rear, fast broadband, very low local crime and good nearby schools—making the location attractive for families once works are complete. The property sits in a prosperous rural area close to Witney, with countryside privacy but accessible local amenities.
Important drawbacks are clear: the barn needs substantial renovation, listed-status complications will limit changes, and the sale is strictly for cash buyers. Council tax is described as quite expensive. Prospective purchasers should factor specialist contractors, conservation advice and possible higher-than-average refurbishment costs into their budgets.
5 bedroom barn conversion for sale in Fulbrook, Burford, Oxfordshire, OX18 — £995,000 • 5 bed • 2 bath • 2062 ft²
Barn conversion for sale in Residential Development Opportunity, West Hanney, OX12 — £1,000,000 • 1 bed • 1 bath
Land for sale in Broughton Poggs, Filkins, Lechlade, Oxfordshire, GL7 — £700,000 • 2 bed • 1 bath
4 bedroom barn conversion for sale in Chilswell Lane, Boars Hill, Oxford, OX1 — £1,595,000 • 4 bed • 4 bath • 2873 ft²
7 bedroom house for sale in Woodstock, Oxfordshire, OX20 — £1,750,000 • 7 bed • 3 bath • 2196 ft²
4 bedroom barn conversion for sale in The Green, Drayton, OX14 — £900,000 • 4 bed • 2 bath • 2411 ft²






















































































































