Spacious Victorian two-double with rare private roof terrace and strong local amenities.
Chain free two-double apartment, 915 sqft
Share of freehold; service charge £450 (below average)
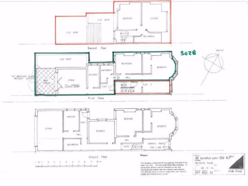
Private roof terrace under construction — confirm completion details
High ceilings, large windows, original period features
Solid brick walls likely without insulation — energy upgrades possible
One bathroom only for two double bedrooms
Excellent Lordship Lane amenities and Dulwich Park nearby
Fast rail links to Central London from East Dulwich Station
Set on the top floor of a handsome Victorian conversion, this chain-free two-double apartment offers 915 sq ft of well-proportioned living in the heart of East Dulwich. High ceilings and large windows bring natural light into the living room and bedrooms, while original period features give character and scope for sympathetic updating.
The apartment is share of freehold with a below-average service charge (£450), and a private roof terrace is currently under construction — soon to provide rare outdoor space for this type of property. The location is a major strength: Lordship Lane’s cafés, shops and restaurants are moments away, Dulwich Park is nearby, and East Dulwich Station provides fast commuter links into central London.
Practical points to note: the building dates from the early 20th century and walls are likely solid brick with no added insulation (energy upgrades possible). There is one bathroom serving two double bedrooms, and the roof terrace is not yet complete, so timing and final specification should be confirmed. This apartment suits buyers seeking period character, generous space and renovation potential in a family-friendly commuter neighbourhood.
2 bedroom apartment for sale in Lordship Lane, London, SE22 — £450,000 • 2 bed • 2 bath • 800 ft²
2 bedroom flat for sale in Lordship Lane, London, SE22 — £550,000 • 2 bed • 1 bath • 531 ft²
2 bedroom apartment for sale in Landcroft Road, East Dulwich, London, SE22 — £700,000 • 2 bed • 2 bath • 833 ft²
2 bedroom flat for sale in East Dulwich Road, London, SE22 — £575,000 • 2 bed • 1 bath • 668 ft²
3 bedroom flat for sale in Upland Road, East Dulwich, SE22 — £825,000 • 3 bed • 2 bath • 1064 ft²
2 bedroom flat for sale in Lordship Lane, East Dulwich, SE22 — £595,000 • 2 bed • 1 bath • 1000 ft²






























