Two-bedroom conversion with garden access and short walk to stations.
Large 963 sq ft first-floor period conversion with high ceilings
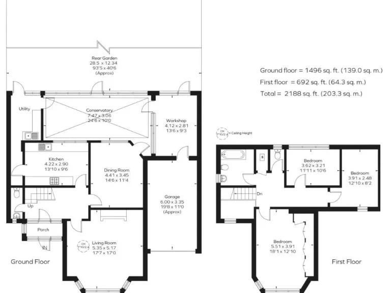
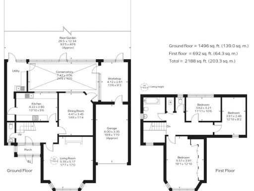
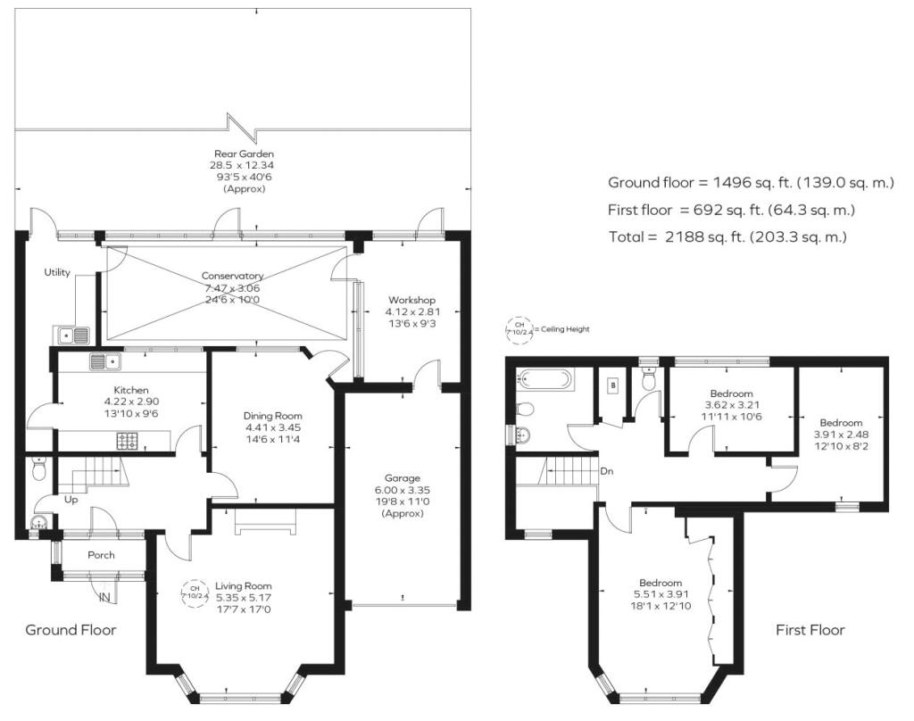
This bright, well-proportioned two-bedroom first-floor conversion occupies a generous 963 sq ft in a Victorian semi on Lewisham Hill. High ceilings, large bay windows and a spacious 18'4" reception create an airy feel; the reception flows to a contemporary kitchen/diner with integrated appliances and direct access to the communal garden — convenient for indoor/outdoor living and families who want outside space in central Lewisham.
Both bedrooms are proper doubles; the principal bedroom benefits from built-in wardrobes and an en-suite shower room, while there is a second modern bathroom. The layout and size make the flat suitable as a family home or a buy-to-let for commuters, with Lewisham mainline and DLR a short walk away and Blackheath, Greenwich Park and local shopping nearby.
Practical points to check: the property is share of freehold but lease length, ground rent and service charge details are not provided and should be confirmed with a solicitor. The area records higher-than-average crime and local deprivation metrics, which may concern some buyers. The building dates from the 1930s–40s, has solid brick walls with internal insulation and double glazing of unknown installation date — potential buyers should consider future maintenance and energy-efficiency upgrades.
Overall this is a spacious, characterful period flat with strong transport links, outdoor access and move-in-ready presentation, balanced by the need to verify lease and charges and to factor local area and maintenance considerations into any offer.
2 bedroom apartment for sale in Lewisham Hill, Lewisham, London, SE13 — £575,000 • 2 bed • 1 bath • 713 ft²
2 bedroom apartment for sale in Lewisham Hill, London, SE13 — £450,000 • 2 bed • 1 bath • 800 ft²
2 bedroom apartment for sale in Clarendon Rise, London, SE13 — £400,000 • 2 bed • 1 bath • 567 ft²
1 bedroom flat for sale in Burnt Ash Hill, Lee, London, SE12 — £300,000 • 1 bed • 1 bath • 482 ft²
2 bedroom flat for sale in Cressingham Road, London, SE13 — £350,000 • 2 bed • 1 bath • 603 ft²
2 bedroom flat for sale in Granville Park, Blackheath, London, SE13 — £525,000 • 2 bed • 1 bath • 622 ft²






























































