New-build, low-maintenance living with garden and parking.
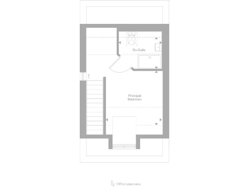
Three bedrooms across three floors, principal bedroom with en-suite
This newly built three-bedroom, three-storey semi-detached house offers contemporary living designed for first-time buyers seeking low-maintenance, energy-efficient accommodation. The top-floor principal bedroom occupies the whole level and includes an en-suite, while the open-plan kitchen/diner opens via French doors onto the garden, creating good indoor-outdoor flow for day-to-day living and entertaining.
The home comes with a 10-year NHBC warranty, off-street parking and fast broadband and mobile signal — practical benefits for modern living. The development offers online pre-reservation and a modest annual service charge of £134.59. Plot details indicate freehold tenure for the available units.
Buyers should note the property is compact internally (approximately 592 sq ft) and some rooms — notably the third bedroom — are small. Crime in the immediate area is above average, and council tax banding is not yet confirmed. These factors are important for buyers weighing long-term suitability and local costs.
Overall, this is a straightforward new-build option for first-time buyers who prioritise a brand-new finish, low running costs and convenient digital services, while accepting a compact internal footprint and the local area caveats.
3 bedroom detached house for sale in Boroughbridge Road,
Upper Poppleton,
YO26 6BE, YO26 — £409,995 • 3 bed • 1 bath • 681 ft²
3 bedroom semi-detached house for sale in Boroughbridge Road,
Upper Poppleton,
YO26 6BE, YO26 — £329,995 • 3 bed • 1 bath • 558 ft²
4 bedroom detached house for sale in Boroughbridge Road,
Upper Poppleton,
YO26 6BE, YO26 — £507,995 • 4 bed • 1 bath • 921 ft²
5 bedroom detached house for sale in Boroughbridge Road,
Upper Poppleton,
YO26 6BE, YO26 — £579,995 • 5 bed • 1 bath • 966 ft²
4 bedroom detached house for sale in Boroughbridge Road,
Upper Poppleton,
YO26 6BE, YO26 — £579,995 • 4 bed • 1 bath • 755 ft²
4 bedroom detached house for sale in Boroughbridge Road,
Upper Poppleton,
YO26 6BE, YO26 — £549,995 • 4 bed • 1 bath • 989 ft²










































