New-build on Langley Gate with garage, garden and NHBC warranty ideal for growing families.
- New-build with 10-year NHBC warranty
- French doors from kitchen/family room to garden
- Integral (single) garage and driveway parking
- Two bedrooms with en-suite plus dressing area
- Compact internal footprint (approx 966 sq ft)
- Separate laundry room and downstairs WC
- Service charge £134.59 annually (below average)
- Local area affluent but above-average crime rate
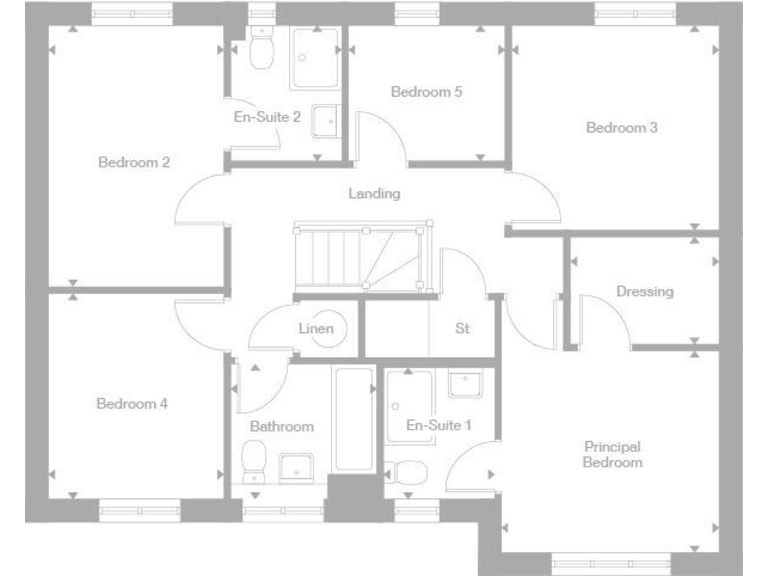
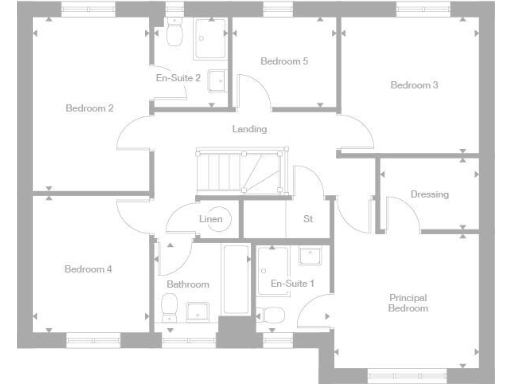
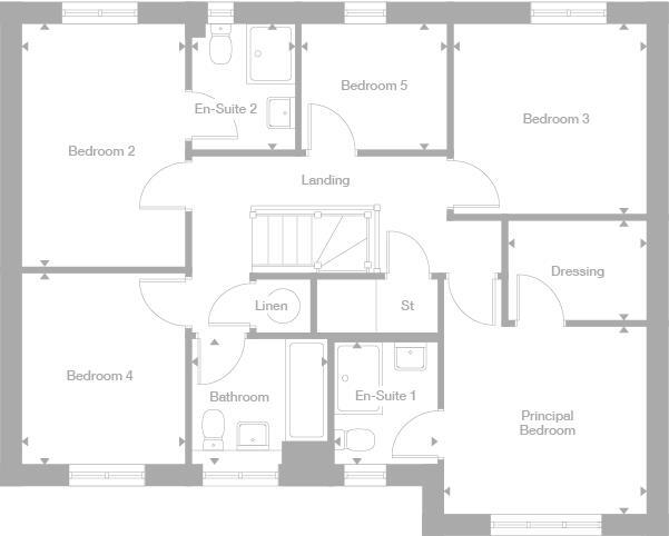
A newly built five-bedroom house on Langley Gate offering modern family living with a 10-year NHBC warranty and energy-efficient features. The property includes an integral garage, private garden and French doors linking the open-plan kitchen/family area to the outside, ideal for summer entertaining.
Internally the layout is compact: a lounge with a feature bay, separate laundry room, downstairs WC and two en-suite bedrooms plus a dressing area to the principal bedroom. While the plot is generous, the internal floorspace is relatively small for a five-bedroom home (approximately 966 sq ft), so room sizes are modest.
Practical benefits include fast broadband, excellent mobile signal and a below-average annual service charge. Note the location is in a very affluent, small-town suburb with above-average local crime statistics—worth factoring into family planning. Online pre-reservation and purchase incentives are available on selected plots.
4 bedroom detached house for sale in Boroughbridge Road,
Upper Poppleton,
YO26 6BE, YO26 — £464,995 • 4 bed • 1 bath • 719 ft²
4 bedroom detached house for sale in Boroughbridge Road,
Upper Poppleton,
YO26 6BE, YO26 — £499,995 • 4 bed • 1 bath • 855 ft²
4 bedroom detached house for sale in Boroughbridge Road,
Upper Poppleton,
YO26 6BE, YO26 — £504,995 • 4 bed • 1 bath • 719 ft²
4 bedroom detached house for sale in Boroughbridge Road,
Upper Poppleton,
YO26 6BE, YO26 — £514,995 • 4 bed • 1 bath • 862 ft²
4 bedroom detached house for sale in Boroughbridge Road,
Upper Poppleton,
YO26 6BE, YO26 — £489,995 • 4 bed • 1 bath • 733 ft²
3 bedroom semi-detached house for sale in Boroughbridge Road,
Upper Poppleton,
YO26 6BE, YO26 — £329,995 • 3 bed • 1 bath • 558 ft²


















































































